Spacious family home with garden and parking in Bromley Common.
Three bedrooms; two doubles with fitted wardrobes
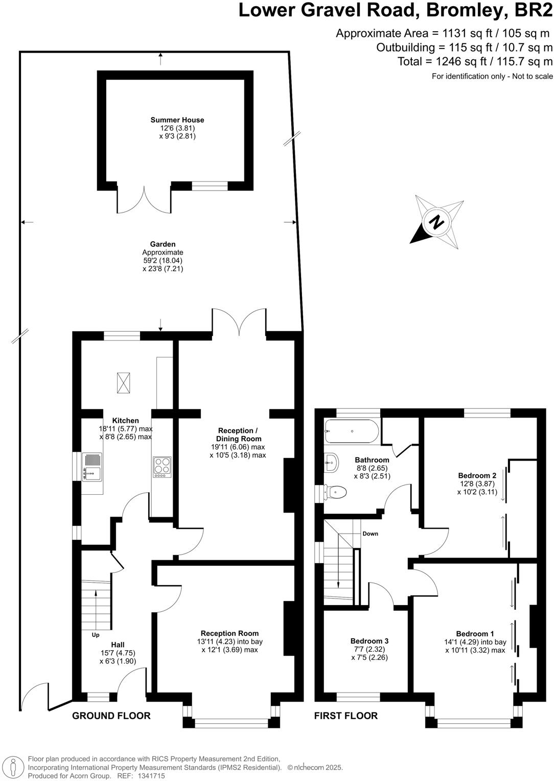
This well-presented three-bedroom semi-detached house on Lower Gravel Road offers a blend of 1930s character and recent renovation, ideal for a growing family. The entrance hall leads to two reception rooms and a fitted kitchen, with upstairs providing two double bedrooms with built-in wardrobes and a good-sized single. The property is finished to a high standard throughout and benefits from fast broadband and excellent mobile signal — useful for home working.
Outside, the low-maintenance 60ft rear garden and off-street parking for several cars provide practical family outdoor space and vehicle storage. Built in the 1930s, the home retains period bay-window features and solid brick construction, while recent refurbishment means much of the interior is ready to move into. There is scope to extend into the loft, subject to usual planning consents, offering potential to increase living space and value.
Buyers should note a few material points: the property sits in a medium flood-risk area and the solid brick walls are assumed to have no insulation, which could affect running costs despite the modern boiler and radiators. Council tax sits above average and there is a single family bathroom. These are important practical considerations but do not detract from the strong location and overall ready-to-live-in condition.
Positioned on a quiet, tree-lined road in Bromley Common, the house is close to local shops, Locksbottom amenities, and well-regarded schools including Darrick Wood. Bromley town centre and mainline services into central London are a short drive or bus ride away, making this a convenient family home with further extension potential.
3 bedroom semi-detached house for sale in Lower Gravel Road, Bromley, BR2 — £575,000 • 3 bed • 1 bath • 1038 ft²
3 bedroom semi-detached house for sale in Copthorne Avenue, Bromley, Kent, BR2 — £500,000 • 3 bed • 1 bath • 829 ft²
3 bedroom semi-detached house for sale in Princes Plain, Bromley, BR2 — £575,000 • 3 bed • 1 bath • 1045 ft²
3 bedroom semi-detached house for sale in Cherry Orchard Road, Bromley, Kent, BR2 — £620,000 • 3 bed • 1 bath • 1252 ft²
3 bedroom semi-detached house for sale in Gravel Road, Bromley, Kent, BR2 — £625,000 • 3 bed • 1 bath • 1182 ft²
3 bedroom semi-detached house for sale in Barnhill Avenue, Bromley, BR2 — £650,000 • 3 bed • 2 bath • 846 ft²






















































































