Secure, sociable one-bedroom retirement living in Walton town centre, with full onsite facilities..
South-facing view over well-kept communal gardens
Lift access and first-floor location for easy access
On-site management, 24-hour emergency monitoring
Residents’ bistro, lounge and salon for social living
All-electric heating (room heaters) — consider running costs
No allocated parking; on-street parking only
High annual service charge: £12,586.01
Leasehold for 992 years (long lease)
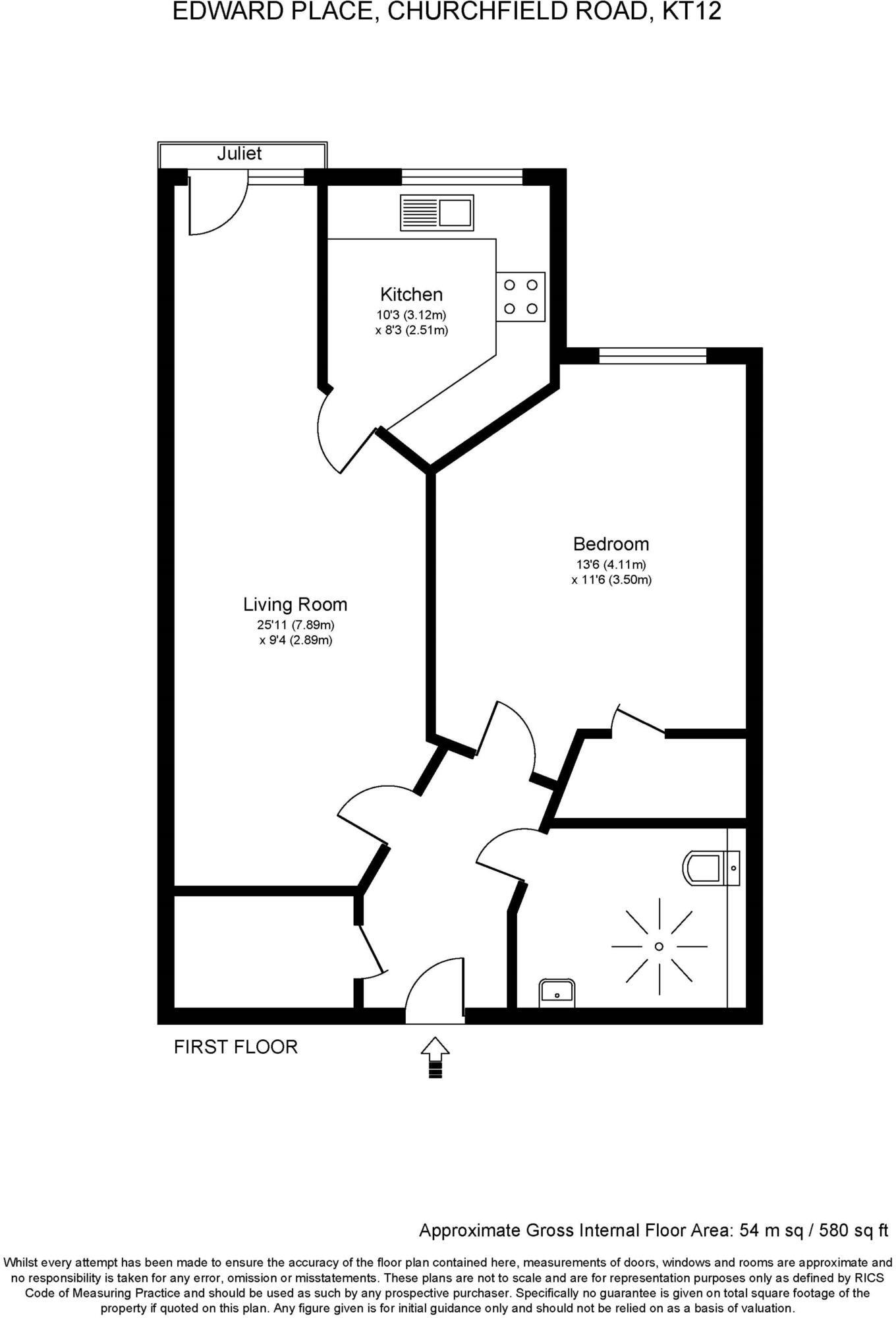
This first-floor, one-bedroom retirement apartment at Edward Place offers secure, social living for homeowners aged 70 and over. Set within a modern assisted-living development in Walton-on-Thames town centre, the flat overlooks well-maintained communal gardens with a pleasant south-facing aspect and benefits from lift access to all floors.
The apartment has a large reception room, modern fitted kitchen, fully tiled walk-in shower room, built-in bedroom wardrobes and a useful hallway storage cupboard. The development provides on-site management, 24-hour emergency monitoring, a residents’ bistro and an elegant communal lounge — useful for socialising and daily meals without leaving home.
Practical points to note: the property runs on all-electric heating via room heaters and has no allocated parking (on-street only). The service charge is high at £12,586.01 pa and ground rent is £435 pa, though the lease is exceptionally long (992 years remaining).
Edward Place is conveniently placed for Walton’s shops, transport links and riverside amenities, with fast broadband and strong mobile coverage. The apartment suits someone seeking low-maintenance, community-focused retirement living with flexible care options on-site.
1 bedroom retirement property for sale in Edward Place, Walton On Thames, KT12 — £325,000 • 1 bed • 1 bath • 592 ft²
2 bedroom retirement property for sale in Edward Place, Walton On Thames, KT12 — £475,000 • 2 bed • 2 bath • 862 ft²
1 bedroom apartment for sale in Churchfield Road, Walton-On-Thames, KT12 — £280,000 • 1 bed • 1 bath • 614 ft²
1 bedroom apartment for sale in Churchfield Road, Walton-On-Thames, KT12 2FR, KT12 — £325,000 • 1 bed • 1 bath • 581 ft²
1 bedroom retirement property for sale in Churchfield Road, Walton-On-Thames, KT12 — £280,000 • 1 bed • 1 bath • 580 ft²
2 bedroom retirement property for sale in Manor Place, Walton On Thames, KT12 — £175,000 • 2 bed • 2 bath • 740 ft²


































































