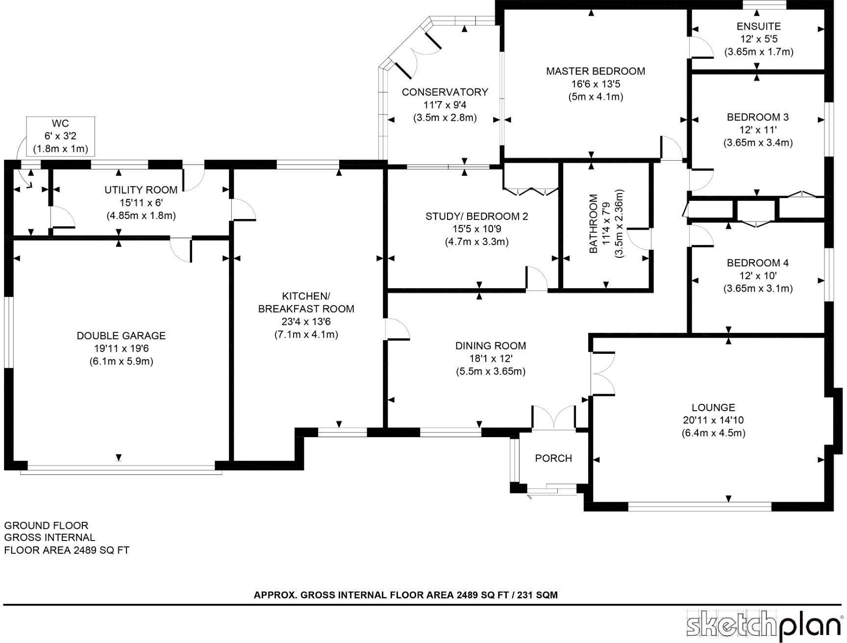
Large detached bungalow with huge garden and garage — ideal renovation project for commuters..
Four double bedrooms and flexible reception layout
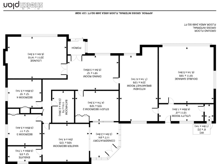
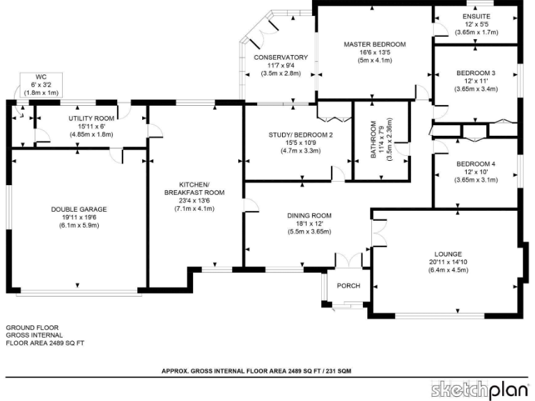
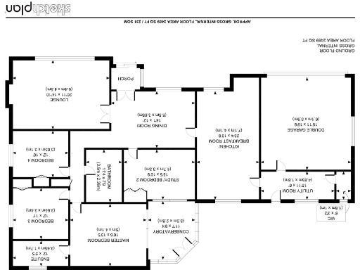
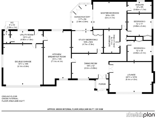
Set in the peaceful Cheshire hamlet of Dutton, this spacious 4-bedroom detached bungalow sits on a very large plot and offers immediate scope for improvement. The single-storey layout includes two reception rooms (or flexible use as extra bedrooms), a double garage and a well-kept traditional garden — ideal for families wanting room to grow without stairs.
Positioned less than 1.5 miles from the M56 (junction 11), the property is convenient for commuters travelling to Chester, Liverpool or Manchester. Local essentials are close by — a Spar with post office counter, Aldi, and larger supermarkets within a short drive — and nearby primary schools include two rated Good by Ofsted.
Several improvements have already been made, but the bungalow needs renovation and presents a clear opportunity to personalise finishes and reconfigure spaces. Practical considerations: there is only one bathroom, broadband speeds are slow, and tenure details are not provided. Mobile signal is excellent and the area is affluent with low crime.
This is a solid project for a family seeking generous single-level living in a prospering countryside setting, or for a buyer wanting sizable outdoor space and scope to add value through targeted refurbishment.
4 bedroom detached house for sale in Redacre Close, Dutton, Warrington, Cheshire, WA4 — £380,000 • 4 bed • 2 bath • 1387 ft²
4 bedroom detached house for sale in Redacre Close, Dutton, Warrington, WA4 — £425,000 • 4 bed • 2 bath • 1562 ft²
4 bedroom detached house for sale in Rembury Place, Dutton, Cheshire, WA4 — £450,000 • 4 bed • 2 bath • 1472 ft²
4 bedroom detached bungalow for sale in Lessingham Road, Widnes, WA8 — £370,000 • 4 bed • 2 bath
3 bedroom detached bungalow for sale in Croston Close, Widnes, WA8 — £400,000 • 3 bed • 2 bath • 1420 ft²
4 bedroom bungalow for sale in Dunstan Lane, Burton, Neston, CH64 — £700,000 • 4 bed • 2 bath • 1601 ft²






















































