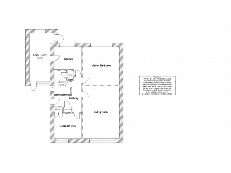
Discover the perfect blend of comfort and convenience in this charming two-bedroom semi-detached bungalow, ideally situated on a sought-after cul-de-sac in Newton Hall, Durham. Boasting no upper chain, this property is a fantastic opportunity for both first-time buyers and those looking to downsize. Standout features include a spacious living room, fitted kitchen, utility room/store, and well-sized bedrooms, complemented by a modern shower room.
Enjoy the tranquil atmosphere of a west-facing rear garden, ideal for relaxation or entertaining, while the block-paved driveway offers off-street parking for convenience. The bungalow benefits from double glazing and mains gas heating, providing good energy efficiency with an EPC rating of C. While the interior decor could benefit from modernization, this invites personal touches to create your perfect home. With an excellent local community, schools rated 'Good', and low crime rates, this property provides a secure and inviting setting. Viewings are highly recommended to seize this opportunity; schedule yours today!















































