Spacious family home with generous driveway and mature gardens.
Wraparound extension creating large open-plan living space
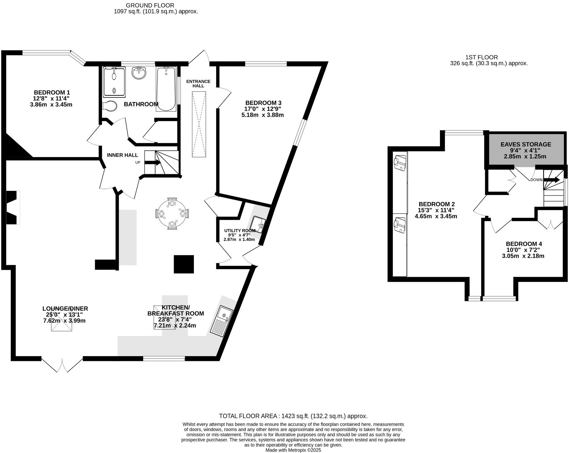
This substantially extended semi‑detached bungalow offers versatile family living across ground and first floors. The wraparound extension creates a bright open‑plan kitchen/breakfast room and generous 28' lounge/diner that open to an established rear garden and patio — ideal for indoor‑outdoor family use and entertaining. Two bedrooms on the ground floor and two on the first floor suit multi‑generational households or flexible home‑office arrangements.
The kitchen is well fitted with granite worktops, integrated dishwasher and a Rangemaster cooker; a useful utility room houses the mains gas boiler. The property benefits from double glazing, plentiful built‑in storage and a large driveway that accommodates several cars. The plot is a decent size with mature shrub borders and multiple seating areas.
Practical considerations: this is a probate sale, so a grant of probate will be required before exchange. There is a single family bathroom serving four bedrooms, which may prompt reconfiguration for some buyers. EPC rating is C and Council Tax Band D. Overall, the home suits families seeking a spacious, characterful house with modern extended living and good local amenities and schools.
5 bedroom semi-detached bungalow for sale in Beech Road, Fareham - Bungalow With Detached Annexe, PO15 — £500,000 • 5 bed • 4 bath • 1681 ft²
4 bedroom bungalow for sale in Place House Close, Fareham, Hampshire, PO15 — £435,000 • 4 bed • 1 bath • 977 ft²
4 bedroom detached bungalow for sale in Coombe Farm Avenue, Fareham, PO16 — £550,000 • 4 bed • 4 bath • 1220 ft²
3 bedroom detached bungalow for sale in Wickham Road, Fareham, PO17 — £450,000 • 3 bed • 3 bath • 1592 ft²
2 bedroom bungalow for sale in Dalewood Road, Fareham, Hampshire, PO15 — £375,000 • 2 bed • 1 bath • 865 ft²
3 bedroom detached bungalow for sale in Dorset Close, Horndean, PO8 9JG, PO8 — £450,000 • 3 bed • 1 bath






































































































