Prime boutique retail pitch with immediate income and reversion potential.
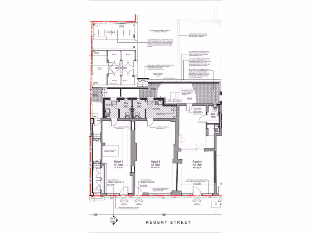
Three adjoining retail units; fully let to independent traders
A compact, well-located retail investment comprising three adjoining ground-floor shops on Regent Street, Royal Leamington Spa. The units are fully let to independent occupiers with a combined passing rent of £59,000 per annum, increasing to £59,500 in June 2026 and £60,000 in June 2027. The asset is offered freehold as a single lot (offers in excess of £715,000) or individually on a long leasehold (980 years). The building was converted in 2010 and benefits from rear access via Kenilworth Street and User Class E planning flexibility.
The location is a key strength: Regent Street is a sought-after boutique retail pitch close to the Parade, with high footfall, strong independent trading and an affluent catchment boosted by students, tourists and the town’s established digital/gaming cluster. Transport links are excellent, with direct rail services to London and Birmingham and straightforward motorway access.
Investment positives include immediate income from three trading tenants, VAT election (TOGC anticipated), and scope for reversionary rental growth at forthcoming lease events. Legal and purchaser costs are assumed at 5% in the pricing guidance. Material considerations: leases are short-to-medium term so income is not long-dated, the property is located in a locality recorded with very high crime levels, and the asset is a small-to-medium town-centre floorplate (1,512 sq ft) which may limit larger occupiers. Prospective buyers should also note the property is sold subject to existing tenancies and is elected for VAT.
High street retail property for sale in 67 Regent Street, Leamington Spa, Warwickshire, CV32 5DX, CV32 — £325,000 • 1 bed • 1 bath • 956 ft²
High street retail property for sale in 21B George Street, Leamington Spa, CV31 1HA, CV31 — £75,000 • 1 bed • 1 bath
Commercial property for sale in 30 The Parade, Leamington Spa, Warwickshire, CV32 4DN, CV32 — £795,000 • 1 bed • 1 bath • 3388 ft²
High street retail property for sale in 118 Parade & 63 Bedford Street, Leamington Spa, Warwickshire, CV32 4AQ, CV32 — £1,500,000 • 1 bed • 1 bath • 5993 ft²
High street retail property for sale in 48 Brook Street, Warwick, CV34 4BL, CV34 — £235,000 • 1 bed • 1 bath • 1053 ft²
Commercial property for sale in 13 Warwick Road, Kenilworth, Warwickshire, CV8 1HD, CV8 — £145,000 • 1 bed • 1 bath • 683 ft²


































































