Spacious 1930s semi with large kitchen/diner, extra garden plot and west-facing outdoor space.
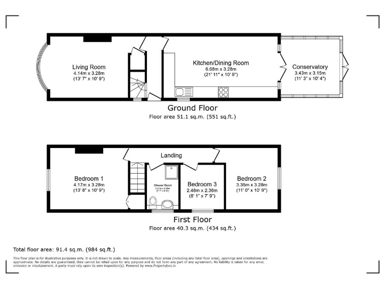
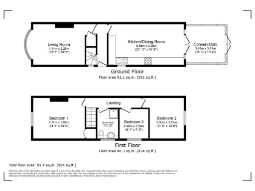
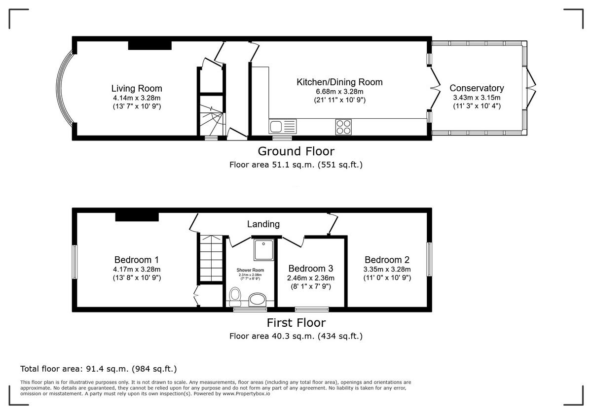
Three-bedroom 1930s semi with original period features
This 1930s semi-detached house blends original character with a recently upgraded interior, making it an appealing family home near Brinton Park. The cosy bay-fronted living room retains period features such as picture rails and an open cast-iron fireplace, while a generous 22' kitchen/diner and conservatory provide contemporary family space and direct garden access.
The property sits behind a double-width tarmac driveway with off-street parking and extends into a surprisingly large rear garden that includes an additional plot now on the title. The west-facing garden and slabbed patio offer afternoon and evening sun, raised beds, and a greenhouse — attractive for gardeners and families who need outdoor space and safe play areas.
Practical upgrades include UPVC double glazing throughout and a modern Worcester Bosch combination boiler installed April 2025, plus a comprehensive range of integral kitchen appliances. Broadband and mobile coverage are strong, local primary and secondary schools are highly rated nearby, and Kidderminster town centre is only a short drive away.
Notable points to consider: the property sits on solid brick walls likely without cavity insulation, so further insulation works could improve efficiency. Externally there are some maintenance needs to the rendered facade and grounds. The house offers one family shower room (updated), three bedrooms (two doubles and a single/study) and represents a well-updated, characterful home with scope to personalise further.
3 bedroom semi-detached house for sale in BLAKEBROOK, Kidderminster, DY11 6AR, DY11 — £300,000 • 3 bed • 2 bath • 958 ft²
3 bedroom semi-detached house for sale in Beauchamp Avenue, Kidderminster, DY11 — £250,000 • 3 bed • 1 bath • 701 ft²
3 bedroom semi-detached house for sale in Connaught Avenue, Kidderminster, Worcestershire, DY11 — £280,000 • 3 bed • 2 bath • 1346 ft²
3 bedroom semi-detached house for sale in Baldwin Road, Kidderminster, Worcestershire, DY10 — £300,000 • 3 bed • 1 bath • 793 ft²
4 bedroom semi-detached house for sale in Adam Street, Kidderminster, DY11 — £290,000 • 4 bed • 2 bath • 1023 ft²
3 bedroom semi-detached house for sale in Worcester Road, Kidderminster, Worcestershire, DY10 — £170,000 • 3 bed • 2 bath • 765 ft²






































































