Move-in-ready four-bedroom home near Bicester Village station and local schools..
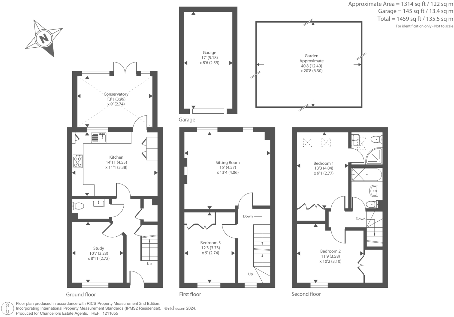
Four bedrooms with master en-suite and flexible family accommodation
Recently refitted modern kitchen with island and under-cabinet lighting
Extended with conservatory; private enclosed rear garden
Single garage plus off-street parking for convenience
Within 0.5 miles of Bicester Village station; good commuter links
Newly renovated but buyers should check snagging and finish dates
Conflicting listing details: semi-detached vs end-terrace and bedroom count
Double glazing present; installation date and some element ages unknown
This renovated four-bedroom family home in Langford Village blends modern fixtures with practical living spaces. A recently refitted kitchen and an extended conservatory offer usable, light-filled ground-floor rooms; the master bedroom benefits from an en-suite for added convenience. The property sits on a decent plot with an enclosed rear garden, single garage and off-street parking—practical for families and commuters.
Position is a strong selling point: the house is within 0.5 miles of Bicester Village station, under a mile from Bicester town centre, and close to local green space and well-regarded primary schools. Built around 1996–2002, the home uses mains gas central heating and double glazing (installation date not specified), and the neighbourhood is described as affluent and family-oriented with fast broadband and excellent mobile signal.
Buyers should note a few matters for clarity and due diligence. Listing information contains inconsistencies about whether the house is a semi-detached property or an end-terrace, and one description elsewhere refers to three rather than four bedrooms—these points should be confirmed. The property is newly renovated and generally well presented, but the age of some elements (glazing, roof) and any remaining snagging from the refurbishment should be checked.
Overall this is a practical, move-in-ready family home in a popular Langford Village location, well suited to commuters and families seeking nearby schools and amenities. Confirm layout details and finish dates during viewing to ensure it meets specific space and maintenance expectations.
4 bedroom detached house for sale in Bicester, Oxfordshire, OX26 — £475,000 • 4 bed • 2 bath • 1219 ft²
2 bedroom end of terrace house for sale in Bicester, Oxfordshire, OX26 — £299,500 • 2 bed • 1 bath • 731 ft²
4 bedroom detached house for sale in Kestrel Way, Bicester, OX26 — £575,000 • 4 bed • 2 bath • 1314 ft²
4 bedroom house for sale in Corncrake Way, Bicester, Oxfordshire, OX26 — £420,000 • 4 bed • 2 bath • 1219 ft²
3 bedroom terraced house for sale in New Langford Village, Bicester, Oxfordshire, OX26 — £350,000 • 3 bed • 1 bath • 929 ft²
4 bedroom detached house for sale in Merlin Way, Bicester, Oxfordshire, OX26 — £525,000 • 4 bed • 2 bath • 1307 ft²


















































































