Renovated family house with garden, office and extension potential.
Three generous double bedrooms with built-in storage
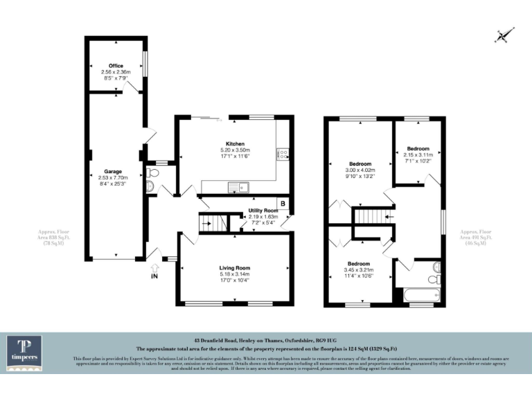
This newly renovated three-bedroom detached house sits in a desirable Henley-on-Thames residential road and is ready to move straight into. The ground floor features a welcoming hall with oak flooring, a bright front reception room, a large re-fitted kitchen/breakfast room with quartz worktops, and sliding doors that open onto a sunny patio and well-kept lawn — ideal for family outdoor time.
Practical living is well considered: plentiful built-in storage, a large utility/boiler room, downstairs cloakroom, driveway parking and an extended garage that now includes a home office or study — useful for remote working. Upstairs are three generous double bedrooms and a modern family bathroom with rainfall shower over the bath.
The location is a major draw for families: excellent local schools (including highly regarded Gillotts School), riverside walks, independent shops and good rail/road links to Reading, Oxford and London. There is scope to increase living space subject to planning permission if you want to extend.
Notable practical points: the property has only one bathroom for three double bedrooms, the glazing was installed before 2002 so thermal performance may be lower than new units, and council tax is above average. The listing notes a high local crime statistic; buyers should satisfy themselves about neighbourhood safety and carry out independent checks on services and appliances as they have not been tested.
3 bedroom semi-detached house for sale in Henley on Thames, Oxfordshire, RG9 — £725,000 • 3 bed • 2 bath • 1398 ft²
3 bedroom detached house for sale in Henley -On-Thames, Oxfordshire, RG9 — £849,950 • 3 bed • 1 bath • 1270 ft²
3 bedroom link detached house for sale in Elizabeth Road, RG9 1RA, RG9 — £750,000 • 3 bed • 2 bath • 1228 ft²
3 bedroom detached house for sale in Gravel Hill, Henley-on-Thames, Oxfordshire, RG9 — £995,000 • 3 bed • 2 bath • 1591 ft²
4 bedroom detached house for sale in Cromwell Road, Henley On Thames, RG9 — £1,000,000 • 4 bed • 2 bath • 1546 ft²
4 bedroom link detached house for sale in St. Katherines Road, Henley-On-Thames, RG9 — £875,000 • 4 bed • 1 bath • 1760 ft²


























































