Large family semi with garage, big garden and central Ossett convenience.
Three bedrooms, two doubles, family bathroom upstairs
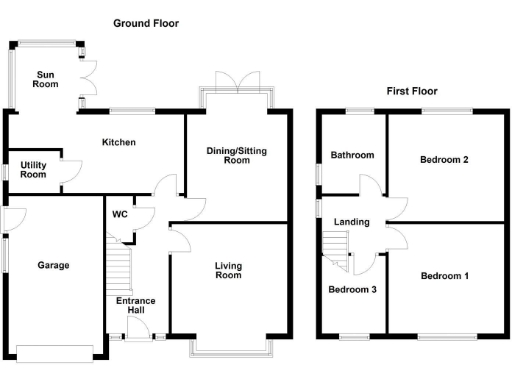
Well-proportioned Victorian semi with generous living spaces and a large private garden — an appealing family home in central Ossett. The ground floor flows from a bay-fronted living room to a spacious dining/sitting room and an extended farmhouse-style kitchen with sunroom and useful utility. Three first-floor bedrooms (two doubles) and a family bathroom complete comfortable accommodation over two floors.
Outside, block-paved off-street parking leads to a brick-built garage and an elevated front garden. The rear lawned garden is substantial for the plot, with flagged and timber-framed patio areas and established borders ideal for children and outdoor entertaining. The property benefits from uPVC double glazing, gas central heating and a good-sized footprint (approx. 1,253 sq ft).
Positioned close to shops, bus links and several primary and secondary schools (including good-rated local options), this house suits a growing family wanting convenience and outdoor space. Practical features include integrated storage, pantry/utility and scope to personalise the interior further.
Notable practical points: the Energy Performance Certificate is awaited, and the local crime level is reported as high — prospective buyers should consider security and request the EPC when viewing. Overall, this semi-detached home offers strong family potential with immediate usability and opportunities to update to individual taste.
3 bedroom terraced house for sale in South Parade, Ossett, WF5 — £180,000 • 3 bed • 1 bath • 689 ft²
3 bedroom semi-detached house for sale in Swithenbank Street, Ossett, WF5 — £210,000 • 3 bed • 1 bath • 1884 ft²
3 bedroom semi-detached house for sale in Maple Court, Ossett, WF5 — £275,000 • 3 bed • 2 bath • 926 ft²
3 bedroom detached house for sale in Dewsbury Road, Ossett, WF5 — £220,000 • 3 bed • 1 bath • 1378 ft²
3 bedroom semi-detached house for sale in Grove Street, Ossett, WF5 — £200,000 • 3 bed • 1 bath • 980 ft²
3 bedroom house for sale in Queens Drive, Ossett, WF5 — £265,000 • 3 bed • 1 bath • 883 ft²


























































