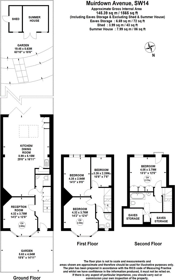
Renovated period home with loft conversion and south-facing garden, ideal for families..
- Newly renovated four-bedroom period end-terrace
- Large open-plan kitchen/dining with skylights and bi-folds
- South-facing landscaped garden with garden studio and shed
- Loft conversion provides principal bedroom and modern bathroom
- Double glazing, pressurised water and mains gas central heating
- Solid brick walls assumed uninsulated; insulation may be needed
- Small overall plot despite generous rear garden dimensions
- Council Tax Band D; fast broadband and excellent mobile signal
This newly renovated four-bedroom period home sits on the Parkside of East Sheen, freshly modernised while retaining original character such as bay windows, fireplaces and high ceilings. The ground floor features a large open-plan kitchen/dining extension with skylights, bi-folds and a zinc roof, creating a bright family hub that opens onto a south-facing landscaped garden with a versatile garden studio.
Accommodation is arranged over three floors: a bay-fronted living room and extended kitchen/dining on the ground floor; three bedrooms and a refitted wet-room on the first floor; and a loft conversion providing a large master bedroom with a modern bathroom and eaves storage. Practical upgrades include double glazing, pressurised water, mains gas central heating with boiler and radiators, CAT6 cabling and bespoke built-in storage.
Notable positives are plentiful: a sizeable open-plan living area, a south-facing private garden, separate garden studio, secure bike storage and proximity to excellent primary schools, parks and local shops. The location benefits from fast broadband, excellent mobile signal and low local crime in an affluent, family-oriented area with easy access to Mortlake station and bus routes.
Important considerations are stated plainly. The house is a solid-brick end-terrace likely built 1930s–1940s and the walls are assumed to lack cavity insulation, which may mean additional insulation works if desired. Double glazing is present but install date is unknown. The plot is described as small overall despite a generous rear garden footprint, and council tax is Band D (moderate). Buyers should account for potential ongoing maintenance typical of period properties.
3 bedroom semi-detached house for sale in Medcroft Gardens, SW14 — £1,325,000 • 3 bed • 2 bath • 1272 ft²
5 bedroom detached house for sale in Penrhyn Crescent, East Sheen, SW14 — £2,000,000 • 5 bed • 3 bath • 3190 ft²
5 bedroom terraced house for sale in Palewell Park, Parkside, SW14 — £2,250,000 • 5 bed • 3 bath • 2702 ft²
4 bedroom town house for sale in Shrewsbury Avenue, East Sheen, SW14 — £1,250,000 • 4 bed • 2 bath • 1487 ft²
4 bedroom semi-detached house for sale in St Leonards Road, SW14 , SW14 — £1,250,000 • 4 bed • 2 bath • 1573 ft²
3 bedroom terraced house for sale in Lewin Road, East Shen, SW14 — £975,000 • 3 bed • 2 bath • 1132 ft²


























































































