Single-level living moments from beach, quay and local amenities.
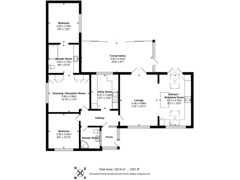
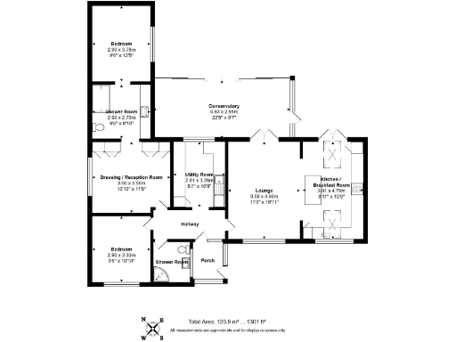
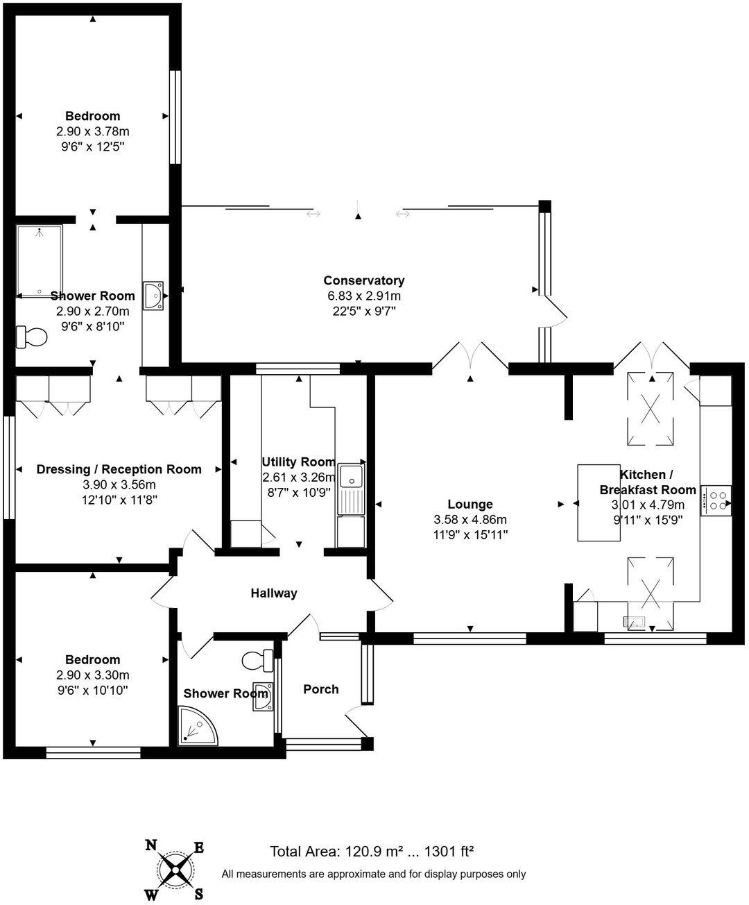
Detached two-bedroom bungalow with en suite and dressing room
Set just moments from Avon Beach and Mudeford Quay, this two-bedroom detached bungalow combines single-level convenience with a generous plot and ample parking. The home’s extended, vaulted open-plan kitchen/living/dining space, conservatory and modern fittings create a bright, comfortable living hub ideal for downsizers or anyone seeking coastal proximity without stairs. The principal bedroom includes an en suite and dressing room, previously used as extra accommodation, adding flexibility for guests or a home office.
Externally the plot is large for the street with a gravel forecourt providing multiple off-street parking spaces and a single garage. The rear garden is designed for low maintenance with lawn, shingle and mature shrub borders, giving privacy and easy upkeep. The location is a major draw: short walks to Mudeford harbour, beaches, ferry access to the sandbar and local amenities, with Christchurch town and shops a short drive away.
Practical points to note: the house was built in the late 1960s/early 1970s and cavity walls are assumed to lack insulation, so energy improvements may be possible. There is a dormer/skylight suggesting loft alteration or extension potential subject to planning. While many rooms are well presented, parts of the property may benefit from targeted modernisation to maximise long-term value. Freehold tenure, low flood risk and fast broadband add to everyday convenience.
2 bedroom bungalow for sale in Sheldrake Road, Mudeford, Christchurch, Dorset, BH23 — £539,000 • 2 bed • 1 bath • 970 ft²
2 bedroom bungalow for sale in Merlin Way, Mudeford, Christchurch, Dorset, BH23 — £500,000 • 2 bed • 1 bath • 667 ft²
4 bedroom bungalow for sale in Falcon Drive, Mudeford, Christchurch, Dorset, BH23 — £750,000 • 4 bed • 1 bath • 920 ft²
2 bedroom bungalow for sale in Merlin Way, Mudeford, Christchurch, Dorset, BH23 — £500,000 • 2 bed • 1 bath • 696 ft²
2 bedroom bungalow for sale in Foxwood Ave, Mudeford, Christchurch, Dorset, BH23 — £525,000 • 2 bed • 1 bath • 1045 ft²
2 bedroom bungalow for sale in Dunlin Close, Mudeford, Christchurch, Dorset, BH23 — £525,000 • 2 bed • 1 bath • 665 ft²






































































