Chain-free three-bed home with garage, garden and good local schools.
Chain-free three-bedroom semi-detached family home
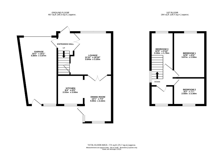
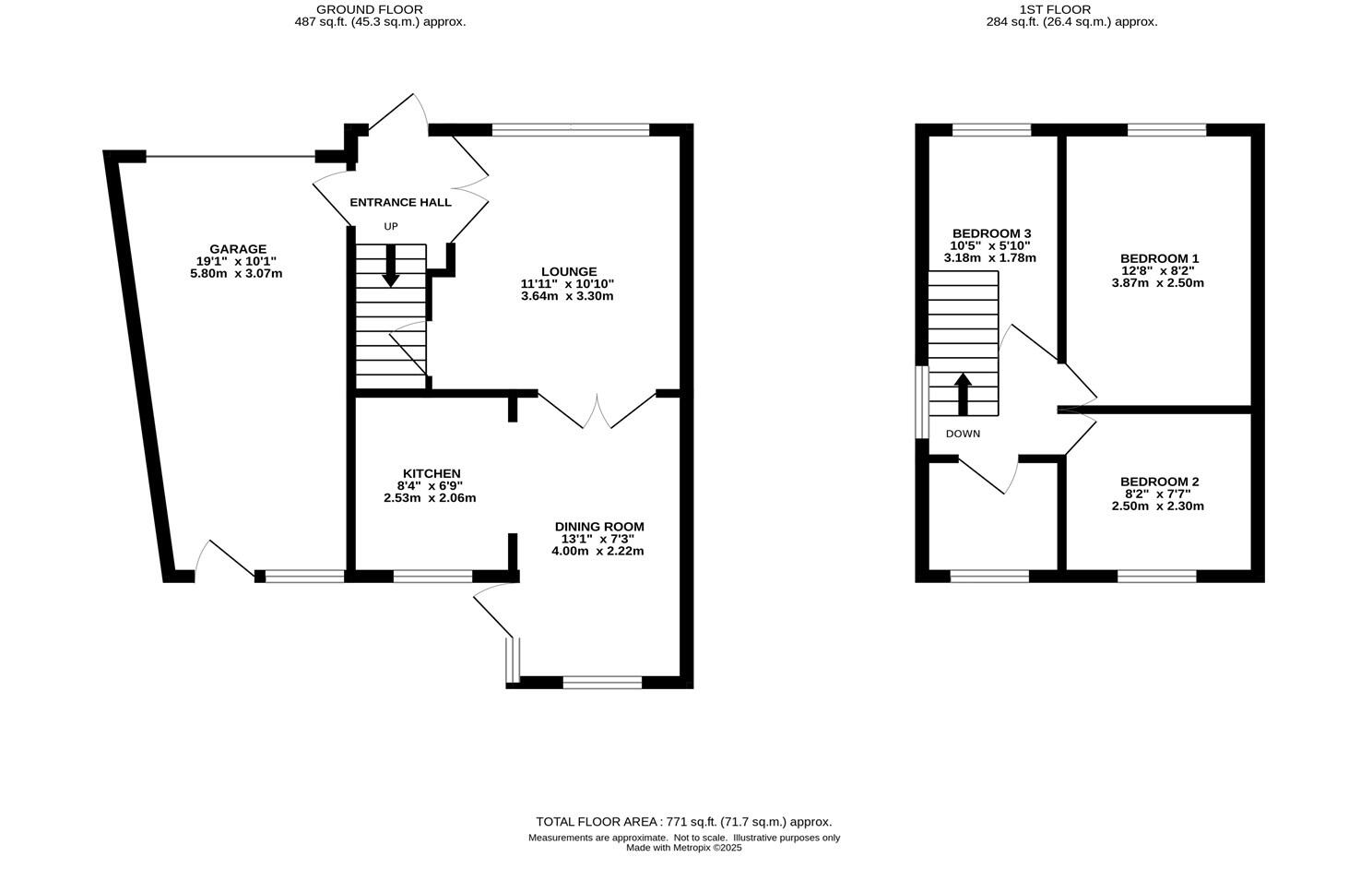
This three-bedroom semi-detached home on Newlyn Avenue sits in a peaceful, sought-after Macclesfield suburb ideal for growing families. Offered chain-free, the house benefits from an attached garage with electrically operated door, private front and rear gardens, and off-street parking — practical features for everyday family life.
The interior is traditionally laid out with an extended dining room opening to the kitchen, a bay-fronted lounge and useful under-stairs storage. The property has gas central heating with a boiler in the kitchen and uPVC double glazing; the family bathroom has been attractively refitted and includes a shower over the bath.
Measureable limitations are straightforward: the overall floor area is modest at about 771 sq ft, there is a single family bathroom, and the tenure is not specified. The house dates from the late 1960s–1970s, so some buyers may wish to update cosmetic finishes or services over time. Double glazing install date is unknown.
For families, the location is a genuine strength — very low local crime, excellent mobile and broadband, and several well-regarded primary and secondary schools within easy reach. The generous garden, garage with power and lighting, and no onward chain make this a convenient, low-hassle purchase for those seeking a comfortable family home with scope to personalise.
3 bedroom semi-detached house for sale in Kenilworth Road, Macclesfield, Cheshire, SK11 — £350,000 • 3 bed • 1 bath • 1182 ft²
3 bedroom semi-detached house for sale in 86 Tytherington Drive, SK10 — £289,950 • 3 bed • 1 bath • 819 ft²
3 bedroom semi-detached house for sale in Ecton Avenue, Macclesfield, SK10 — £375,000 • 3 bed • 1 bath • 1046 ft²
3 bedroom semi-detached house for sale in Sunningdale Road, Macclesfield, Cheshire, SK11 — £325,000 • 3 bed • 1 bath • 997 ft²
3 bedroom semi-detached house for sale in Renfrew Close, Macclesfield, Cheshire, SK10 — £225,000 • 3 bed • 1 bath • 751 ft²
3 bedroom detached house for sale in Kenilworth Road, Macclesfield, SK11 — £275,000 • 3 bed • 1 bath • 955 ft²










































