**Key Features:**
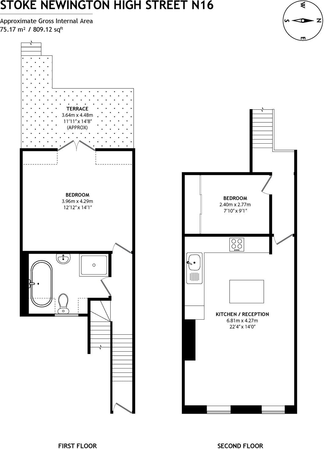
- Modern two-bedroom split-level flat
- Large private terrace for outdoor enjoyment
- Chic, contemporary open-plan living space with exposed brick and solid wood flooring
- Fully integrated kitchen with stylish island and pendant lighting
- Well-appointed bathroom with modern fixtures
- Located on the vibrant Stoke Newington High Street
This stunning two-bedroom flat is a perfect blend of period charm and contemporary design, ideally situated in a vibrant urban area ripe for exploration. Occupying the first and second floors of an elegant Victorian building, the property impresses with its spacious open-plan living area, characterized by exposed brickwork and ample natural light. The fully integrated kitchen makes entertaining a breeze, while the primary bedroom opens directly onto a large terrace—offering an exclusive outdoor space for relaxation and gatherings.
Families will appreciate the proximity to highly-rated schools and essential amenities, including cafes, shops, and transport links, enhancing the suitability for both young professionals and investors alike. With a moderate council tax and an average-sized footprint of 809 square feet, this property offers an excellent opportunity for comfortable city living. While some may desire personalization, the modern fittings require minimal immediate maintenance. Don’t miss out on this unique opportunity to own a property that combines stylish aesthetics with a prime location—schedule a viewing today!











































































