Quiet cul-de-sac home backing onto protected green space, ideal for families.
Four bedrooms including loft-level master with modern en-suite
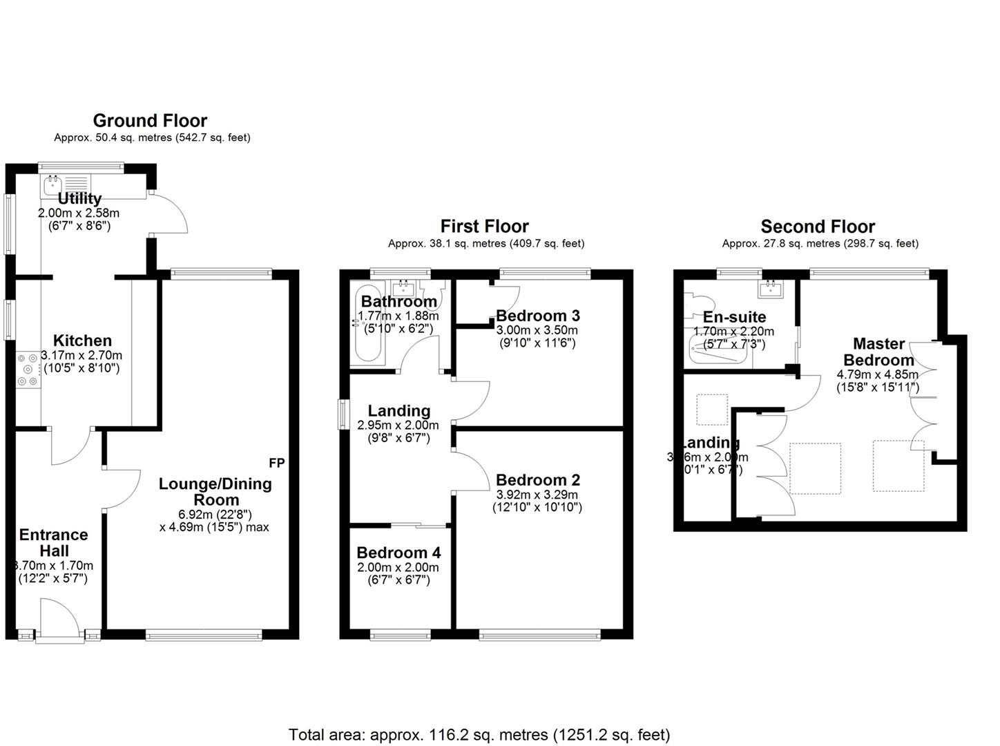
Located at the end of a quiet cul‑de‑sac on Fullerton Way, this four‑bedroom semi offers a practical family layout with a loft‑level master suite and direct views over Surrey Wildlife Trust land. The ground floor provides a generous lounge/dining room, sizeable kitchen with adjoining utility, and easy indoor‑outdoor flow to a private rear lawn and patio — ideal for family life and weekend entertaining.
The second‑floor master bedroom is a standout, with large rooflights, fitted wardrobes and a contemporary en‑suite. Off‑street parking is provided by a block‑paved driveway and a single garage; broadband and mobile signal are strong, and local primary and independent schools are highly rated, making this a convenient choice for families.
The house dates from the 1950s–60s and retains a 1970s character; it will benefit from modernization throughout to meet contemporary tastes. The plot is small, and there are electricity pylons visible from the garden. There is a medium flood risk and modest council tax; any extension or major alteration would be subject to planning and building consents.
Overall this freehold property suits a family seeking peaceful green outlooks and good local schools, and buyers should budget for updating and be aware of site constraints before committing.
4 bedroom semi-detached house for sale in Church Road, Byfleet, KT14 — £630,000 • 4 bed • 2 bath • 1124 ft²
3 bedroom semi-detached house for sale in Fullerton Road, Byfleet, Surrey, KT14 — £475,000 • 3 bed • 1 bath • 918 ft²
4 bedroom semi-detached house for sale in Chertsey Road, Byfleet, Surrey, KT14 — £625,000 • 4 bed • 1 bath • 1392 ft²
4 bedroom detached house for sale in Spence Avenue, Byfleet, West Byfleet, Surrey, KT14 — £760,000 • 4 bed • 2 bath • 2006 ft²
4 bedroom detached house for sale in Spence Avenue, Byfleet, West Byfleet, Surrey, KT14 — £700,000 • 4 bed • 2 bath • 2275 ft²
4 bedroom house for sale in Birchwood Drive, West Byfleet, KT14 — £750,000 • 4 bed • 2 bath • 1398 ft²






































































