Four double bedrooms, garage and generous enclosed garden near excellent schools.
Four double bedrooms including re-fitted principal en-suite and walk-in wardrobe
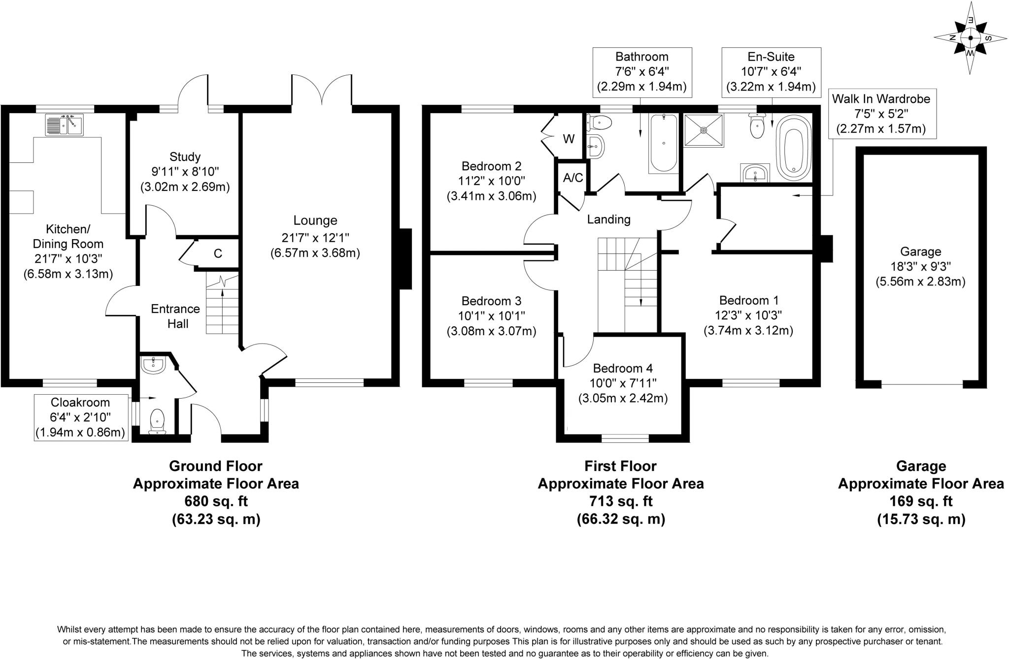
Set back on a quiet street in Costessey, this deceptively spacious detached house offers flexible accommodation across multiple floors — ideal for growing households. The ground floor combines a generous lounge, a well-equipped kitchen/diner and a separate study/play room, giving clear separation between family, work and social spaces. A cloakroom completes the practical layout downstairs.
Upstairs are four double bedrooms, with the principal bedroom benefiting from a walk-in wardrobe and a re-fitted four-piece en-suite. A modern three-piece family bathroom serves the remaining rooms. The house is presented in neutral tones, double-glazed throughout and heated by a mains gas boiler and radiators, ready for immediate occupation with scope to personalise over time.
Externally the property sits on a decent, enclosed rear plot with patio and lawn, safe for children and low-maintenance for adults. A driveway leads to an integral single garage providing parking and storage. Local green space, good schools and straightforward bus links into Norwich make this a practical suburban choice.
Buyers should note the wider area records higher crime levels and local deprivation indicators, and the property falls into Council Tax Band E. The EPC rating is C. These factors are balanced by the size, sensible modern finishes and the family-focused layout that make this a strong option for those needing flexible space close to amenities.
4 bedroom detached house for sale in Vanguard Chase, Norwich, Norfolk, NR5 — £500,000 • 4 bed • 2 bath • 1788 ft²
4 bedroom town house for sale in Vanguard Chase, Costessey, NR5 — £325,000 • 4 bed • 2 bath • 1482 ft²
4 bedroom detached house for sale in Breydon Drive North, Costessey, Norwich, NR8 — £350,000 • 4 bed • 2 bath • 1232 ft²
5 bedroom detached house for sale in Knappers Way, Costessey, Norwich, Norfolk, NR8 — £375,000 • 5 bed • 3 bath • 2138 ft²
4 bedroom semi-detached house for sale in Britannia Way, Costessey, NR5 — £300,000 • 4 bed • 2 bath • 1259 ft²
3 bedroom detached house for sale in Hill Road, Costessey, Norwich, NR5 — £525,000 • 3 bed • 2 bath • 2441 ft²






















































































































