**Standout Features:**
- **Location:** Elevated position in Birch Grove, Whitby, with stunning views.
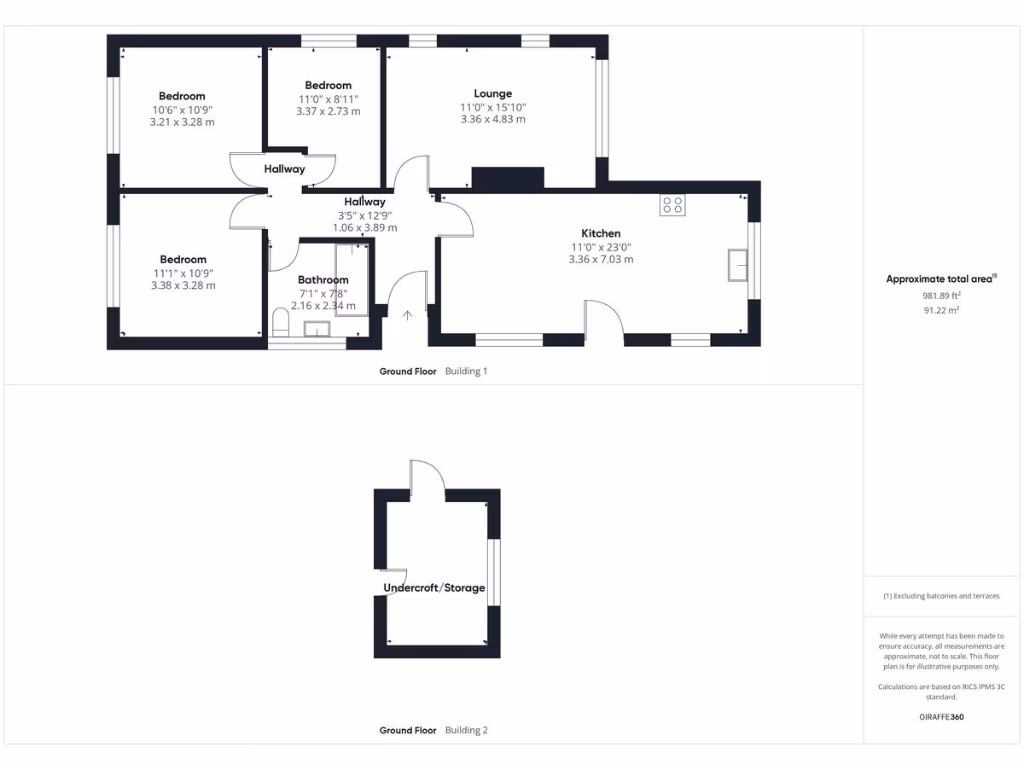
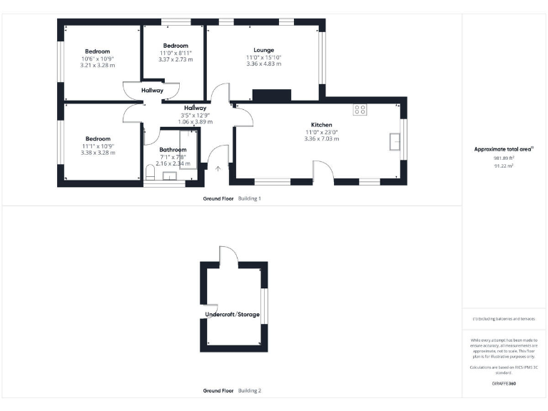
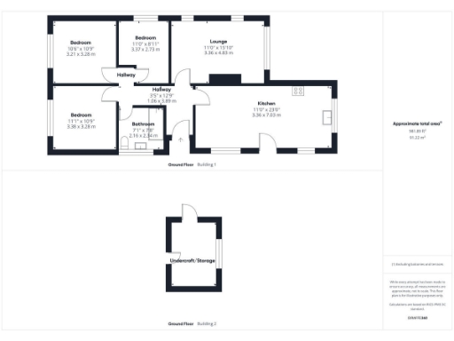
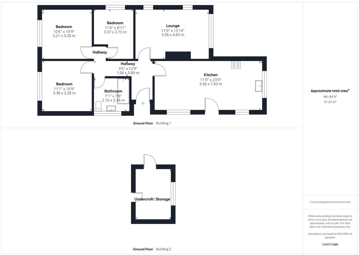
- **Size:** Approximately 981 sq ft with three bedrooms.
- **Outdoor Space:** Generous south-facing rear garden and mature front gardens.
- **Parking:** Private off-street parking plus garage and undercroft.
- **Potential:** Scope for renovation to enhance value.
- **Community Amenities:** Close proximity to schools, shops, and local services.
This charming three-bedroom detached bungalow offers both comfort and potential in the picturesque village of Sleights. Spanning approximately 981 square feet, this home boasts an elevated position that delivers breathtaking views of the Esk Valley. Enter through a welcoming hallway to discover a spacious lounge filled with natural light—a perfect retreat for family gatherings. The modern kitchen/diner is equipped with stylish Shaker-style units and a Rangemaster stove, ideal for culinary adventures and entertaining.
Each of the three well-proportioned bedrooms provides flexible living space, making this property perfect for families or those seeking to downsize. Outdoors, the large south-facing rear garden invites landscaping opportunities for your personal touch, while the front gardens enhance curb appeal. With a garage, ample parking, and an undercroft for additional storage, this bungalow combines practical living with potential for improvement and customization.
Located within easy reach of essential amenities, including schools, a local butchers, bakery, and a doctor’s surgery, this bungalow presents a unique opportunity for first-time buyers or those looking for a peaceful retreat in a friendly community. Don’t miss out—properties like this don’t stay on the market long!
3 bedroom detached bungalow for sale in 8 Smiddyfields, Sleights, YO22 — £325,000 • 3 bed • 1 bath • 1012 ft²
4 bedroom detached house for sale in Derwent Bungalow, Sleights, YO22 — £375,000 • 4 bed • 3 bath • 1757 ft²
4 bedroom detached bungalow for sale in 6 Whin Green, Sleights, YO22 — £349,950 • 4 bed • 3 bath • 1775 ft²
3 bedroom detached bungalow for sale in 21 Selstone Crescent, Sleights, YO22 — £325,000 • 3 bed • 1 bath • 941 ft²
2 bedroom detached bungalow for sale in Heworth Drive, Whitby, YO21 — £265,000 • 2 bed • 1 bath • 663 ft²
2 bedroom detached bungalow for sale in 2 Selstone Crescent, Sleights, YO22 — £253,000 • 2 bed • 1 bath • 1115 ft²






































































































































