Spacious family home with garage, garden and estuary access.
Detached executive four-bedroom home with large plot and countryside views
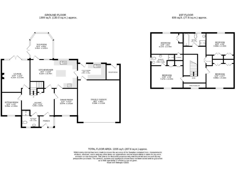
Set on a large plot within an executive estate in Burton, this detached four-bedroom home balances family living with impressive countryside and estuary views. The ground floor offers multiple reception rooms—lounge with gas fireplace, formal dining room, snug, conservatory and a well-equipped kitchen with integrated Neff and Bosch appliances—creating flexible space for everyday life and entertaining. A utility room and a cloakroom with shower add practical convenience.
All four bedrooms are doubles with fitted wardrobes; the principal bedroom includes an en-suite and the family bathroom offers both bath and corner shower. Outside, a block-paved driveway leads to an integral double garage and a landscaped rear garden with a spacious patio and far-reaching views toward open farmland and the Pembrokeshire coastline. Fourteen solar panels help reduce running costs and improve energy efficiency.
Important practical notes: heating is by oil-fired boiler and the property is on individual mains services; broadband speeds are slow in the area. Council Tax is in Band F which reflects running costs. The village location brings estuary access, boating facilities and local pubs, while Haverfordwest and Milford Haven are around six miles away for wider services.
This house will suit buyers seeking a large, well-appointed family home in a peaceful coastal village, with scope to personalise or update services if desired. The combination of space, outlook and riverside leisure opportunities makes it a strong proposition for families and buyers who value countryside living with coastal access.
4 bedroom detached house for sale in Oxland Lane, Burton, Milford Haven, SA73 — £550,000 • 4 bed • 3 bath • 3014 ft²
4 bedroom detached house for sale in Glenfield Park, Burton, Milford Haven, Pembrokeshire, SA73 — £525,000 • 4 bed • 3 bath • 2557 ft²
5 bedroom detached house for sale in Hawn Lake, Burton, Milford Haven, Pembrokeshire, SA73 — £575,000 • 5 bed • 4 bath • 3463 ft²
4 bedroom detached bungalow for sale in Barnlake Point, Burton, Milford Haven, SA73 — £599,950 • 4 bed • 2 bath • 1747 ft²
4 bedroom detached house for sale in Holly Tree Cottage, Church Road, Burton, SA73 — £399,950 • 4 bed • 3 bath • 2028 ft²
3 bedroom cottage for sale in Westcroft, Burton, Milford Haven, SA73 — £259,999 • 3 bed • 1 bath • 1361 ft²










































































































































