Modern town-edge living with parking, lift access and nearby amenities.
Built 2021 with NHBC warranty remaining
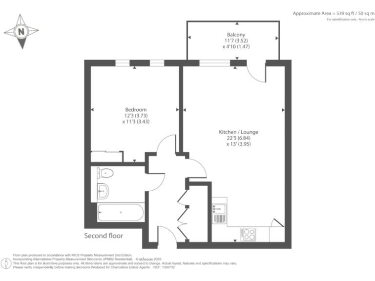
This bright one-bedroom flat was built in 2021 and offers a low-maintenance, open-plan layout across approximately 539 sq ft. The property includes an allocated off-street parking space in a secure area, lift access to all floors and is covered by an NHBC warranty. Located within a mile of local shops, schools and transport links, it suits someone wanting ready-to-move-in town-edge living.
The apartment is chain-free and finished in a contemporary style with integrated kitchen fittings and a balcony. Broadband speeds are fast, mobile signal is excellent and the surrounding area is very low crime with mainly family terraces and flats.
Buyers should note the property is leasehold (approx. 145 years remaining from 2020). Heating is electric via room heaters which can be more expensive than gas central heating; check recent running costs. Also confirm current service charge and any ground rent commitments before exchange.
Overall this is a straightforward, modern one-bed with practical parking and lift access — a good fit for a first-time buyer or investor seeking a low-maintenance, centrally convenient flat with near-term warranty cover.
2 bedroom apartment for sale in Roberts Drive, Bicester, OX25 — £280,000 • 2 bed • 2 bath • 803 ft²
1 bedroom flat for sale in Trinity House North, 1 Anniversary Avenue West, Bicester, Oxfordshire, OX25 2DQ, OX25 — £220,000 • 1 bed • 1 bath • 531 ft²
2 bedroom flat for sale in Graven Hill, Bicester, Oxfordshire, OX25 — £270,000 • 2 bed • 2 bath • 731 ft²
1 bedroom apartment for sale in Anniversary Avenue West, Ambrosden, OX25 — £222,500 • 1 bed • 1 bath • 536 ft²
1 bedroom flat for sale in Westacott Road, Ambrosden, OX25 — £210,000 • 1 bed • 1 bath • 549 ft²
2 bedroom flat for sale in Graven Hill, Bicester, Oxfordshire, OX25 — £300,000 • 2 bed • 2 bath • 785 ft²


















































































