**Standout Features:**
- Three-bedroom mid mews in a popular residential area
- Chain-free sale, offering immediate availability
- Generous room sizes with potential for personalized upgrades
- Good-sized rear garden and off-street parking
- Convenient proximity to amenities, parks, and transport links
**Overview:**
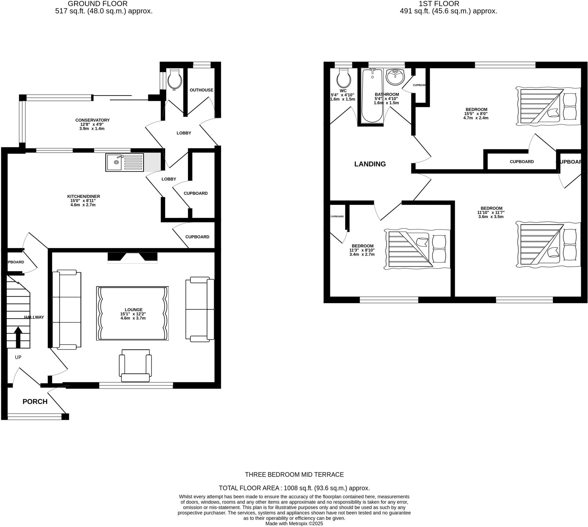
This three-bedroom mid mews property offers an exciting opportunity for renovation enthusiasts. Situated in a well-established area near Daisy Nook Country Park, the home features a spacious layout that includes a lounge, kitchen, utility space, and a family bathroom, all waiting for your personal touch. Although it requires complete refurbishment, this chain-free property presents significant potential to create your dream home.
Equipped with part UPVC double glazing and mains gas heating, the house is complemented by a private rear garden and off-street parking—you’ll have all the essentials for comfortable living. Located minutes from Ashton-under-Lyne town center and close to excellent rail and bus links, you'll enjoy fantastic accessibility and a vibrant local community.
While the property currently needs work, its size and location make it a strong contender for anyone looking to invest in a family-friendly space with room for improvement. Don’t miss out—properties like this, which offer both comfort and renovation possibilities, are in high demand!
3 bedroom terraced house for sale in Pavilion Drive, Ashton-under-Lyne, Greater Manchester, OL6 — £180,000 • 3 bed • 1 bath • 764 ft²
3 bedroom end of terrace house for sale in Richmond Street, Ashton-under-Lyne, Greater Manchester, OL7 — £250,000 • 3 bed • 1 bath • 980 ft²
3 bedroom mews property for sale in Parry Walk, Ashton-Under-Lyne, OL6 — £160,000 • 3 bed • 1 bath • 848 ft²
3 bedroom semi-detached house for sale in Wood Lane, Ashton-under-Lyne, OL6 — £190,000 • 3 bed • 1 bath • 985 ft²
3 bedroom terraced house for sale in Newmarket Road, Ashton-under-Lyne, Greater Manchester, OL7 — £240,000 • 3 bed • 1 bath • 775 ft²
3 bedroom semi-detached house for sale in Rowley Street, Ashton-under-Lyne, Greater Manchester, OL6 — £195,000 • 3 bed • 1 bath • 734 ft²


































































