**Standout Features**:
- 2-bedroom ground floor apartment in a sought-after cul-de-sac
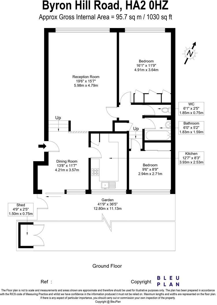
- Spacious living room (19'6" x 15'7") and adjoining dining area with garden access
- Private rear garden perfect for relaxation and outdoor activities
- Share of freehold with a long lease of 939 years remaining
- Resident parking plus garage in a block
- Double glazing and gas central heating for comfort
- Scope for renovation and personal touch
**Potential Concerns**:
- Requires renovation, allowing for customization to buyer’s taste
- Service charge of £2,620 P.A
- Average mobile signal and slow broadband speeds
Nestled in the tranquil cul-de-sac of Byron Hill Road, this spacious two-bedroom ground floor apartment is a gem waiting for your personal touch. With a large living room that opens into a bright dining room and access to a private rear garden, it’s perfect for family gatherings or quiet evenings outdoors. The property offers a share of freehold and an impressive square footage of 1,030, making it an excellent choice for couples, small families, or even investors looking to tap into a promising rental market.
Though the apartment requires some renovation, this presents a fantastic opportunity to tailor the space to your liking. Enjoy the peace of knowing you have low crime rates and a selection of local amenities, as well as well-rated schools nearby. With resident parking and a garage included, convenience is at your fingertips. Don't miss your chance to own this charming apartment in a desirable part of Harrow.
1 bedroom apartment for sale in South Hill Avenue, Harrow on the Hill, HA1 — £369,950 • 1 bed • 1 bath • 738 ft²
2 bedroom apartment for sale in Leigh Court, Harrow on the Hill Village Conservation Area, HA2 — £479,950 • 2 bed • 2 bath • 1000 ft²
2 bedroom apartment for sale in Lower Road, Harrow, HA2 — £450,000 • 2 bed • 2 bath • 925 ft²
2 bedroom flat for sale in London Road, Harrow on The Hill, HA1 — £375,000 • 2 bed • 1 bath • 609 ft²
2 bedroom flat for sale in Wendela Court, Sudbury Hill, Harrow On The Hill, HA1 — £399,950 • 2 bed • 2 bath • 781 ft²
2 bedroom flat for sale in Apsley Close, Harrow, HA2 — £320,000 • 2 bed • 1 bath • 689 ft²






























































