Bright period home with private south-facing garden and close transport links.
Grade II listed Georgian maisonette with original cornicing and fireplaces
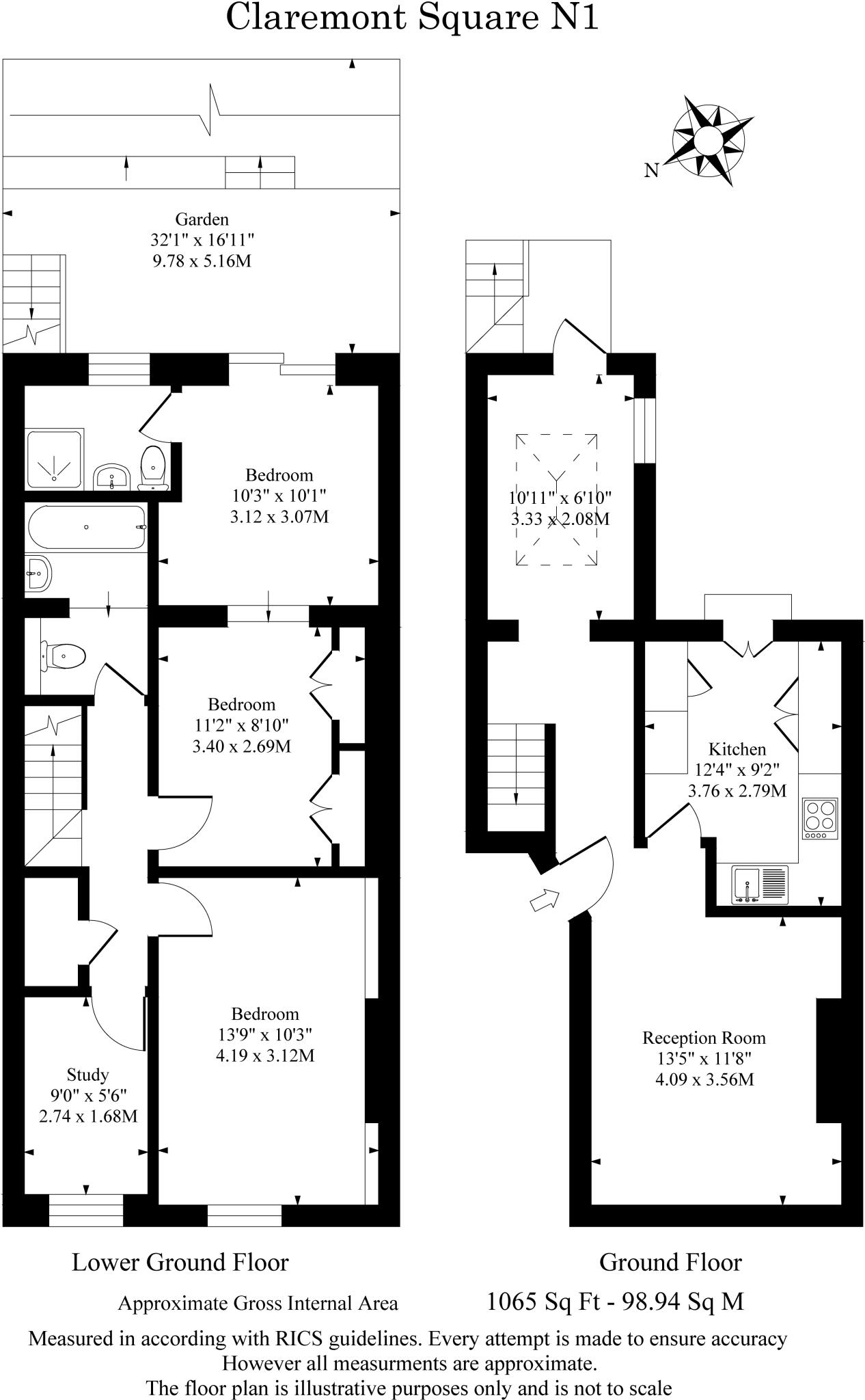
Set across the raised ground and lower floors of a Grade II listed Georgian terrace, this three-bedroom maisonette combines period character with usable garden space in the heart of Claremont Square. Large sash windows, ornate cornicing and an elegant fireplace give the principal reception genuine historic charm, while the eat-in kitchen opens via French windows to a private south-facing garden. The layout suits family life or professionals wanting separate reception and bedroom wings.
Practical information is straightforward: the property is leasehold with approximately 101 years remaining, an annual service charge around £1,900 and a low ground rent. Council Tax is Band F. Being listed will restrict external and some internal alterations — buyers should budget for specialist consent and maintenance of historic fabric. Built in 1820, the main walls are solid brick and assumed uninsulated, which may affect heat retention despite double glazing and gas central heating.
The setting in Amwell Village places local shops, cafes and transport within easy walking distance; Angel, Farringdon and Kings Cross are close by. Broadband and mobile signal are strong. Note the area records higher crime and relative deprivation statistics, which prospective buyers should consider alongside the square’s leafy character and school options nearby.
Overall this maisonette is best suited to buyers who prioritise period features and a private south-facing garden in a central Islington location, and who accept the practical implications of listed status, solid-wall construction and leasehold ownership.
2 bedroom maisonette for sale in Myddelton Square,
Islington, EC1R — £1,200,000 • 2 bed • 1 bath • 872 ft²
3 bedroom maisonette for sale in Lonsdale Square, Islington, London, N1 — £1,695,000 • 3 bed • 1 bath • 1238 ft²
2 bedroom maisonette for sale in Milner Square, London, N1 — £900,000 • 2 bed • 1 bath • 942 ft²
2 bedroom flat for sale in Milner Square,
Islington, N1 — £950,000 • 2 bed • 1 bath • 962 ft²
3 bedroom maisonette for sale in New North Road, Islington, N1 — £1,300,000 • 3 bed • 2 bath • 1134 ft²
4 bedroom maisonette for sale in College Cross,
Barnsbury, N1 — £1,750,000 • 4 bed • 2 bath • 1406 ft²










































































