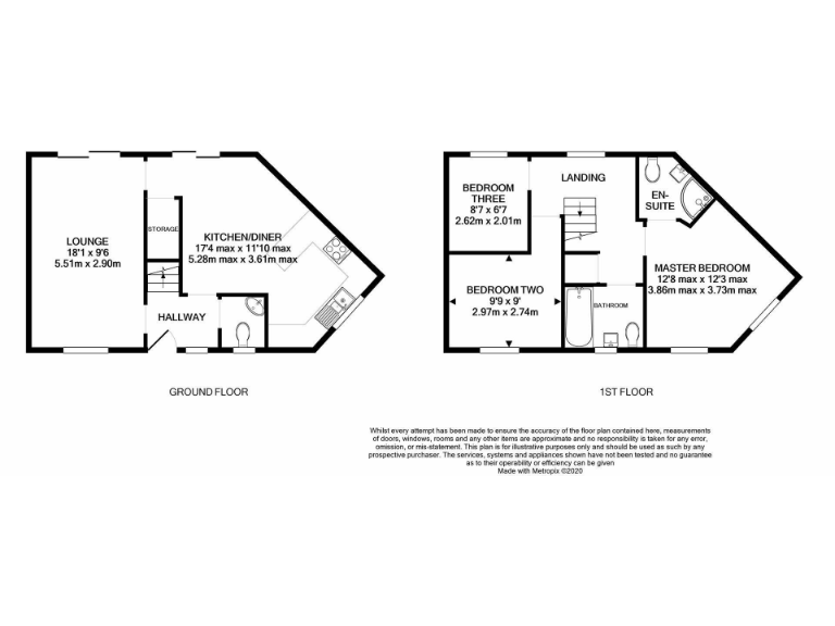
**Standout Features:**
- Modern end-terraced property built in 2010.
- Three spacious bedrooms, including a master with en-suite.
- Open-plan kitchen/diner and separate lounge.
- Enclosed garden with paved and lawned areas, accessible via side access.
- Garage and parking located at the rear.
- Located in a family-friendly area with low crime rates.
**Potential Concerns:**
- Average-sized rooms may limit options for extensive renovations.
- Floor plan could require adjustments for more open family spaces.
This modern end-terraced property offers a wonderful opportunity for families seeking a comfortable home in the desirable Stockmoor Village, Bridgwater. The spacious three-bedroom layout features an inviting master suite with an en-suite shower, perfect for privacy. The open-plan kitchen/diner flows into a separate lounge, making it a hub for family gatherings. The enclosed garden provides a safe play area for children and a lovely outdoor retreat, complemented by convenient side access.
With a garage and additional parking available at the rear, your family will enjoy the ease and security of modern living. Conveniently located just a mile from Bridgwater's vibrant shops and amenities, you’ll also benefit from quick access to the M5 and A38 for commuting.
This home stands as both a comfortable residence and a potential canvas for your future improvements. Act quickly—properties in this family-friendly neighborhood don’t stay on the market long!
2 bedroom terraced house for sale in Cotton Patch Walk, Stockmoor Village, Bridgwater, TA6 — £210,000 • 2 bed • 1 bath • 689 ft²
3 bedroom semi-detached house for sale in Vienna Way, Stockmoor Village, Bridgwater, TA6 — £250,000 • 3 bed • 2 bath • 988 ft²
3 bedroom end of terrace house for sale in Chillingham Drove, Stockmoor, Bridgwater, TA6 — £229,950 • 3 bed • 2 bath
5 bedroom detached house for sale in Tokaro Close, Stockmoor Village, Bridgwater, TA6 — £425,000 • 5 bed • 2 bath • 1582 ft²
3 bedroom end of terrace house for sale in Citrine Close, Bridgwater, TA6 — £235,000 • 3 bed • 2 bath • 709 ft²
3 bedroom end of terrace house for sale in Cheviot Street, Bridgwater, Somerset, TA6 — £264,500 • 3 bed • 2 bath • 659 ft²










































































