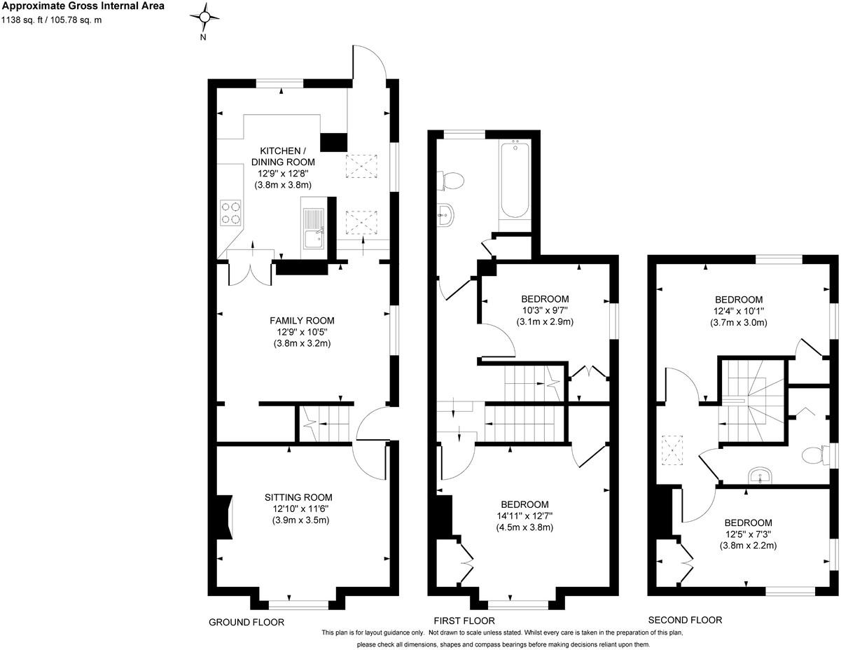
Character home with transport links and flexible four-bedroom layout for families.
- Extended Victorian semi with high ceilings and sash windows
- Four double bedrooms including 2017 loft conversion
- Vaulted kitchen/diner with Velux and French doors to garden
- South‑east garden: sunny but modest in size
- Off‑street brick‑paved parking and two garden sheds
- Single family bathroom plus loft cloakroom (shower plumbing)
- Secondary glazing; not full modern double glazing
- Freehold; council tax band C
A well-presented Victorian semi with extended living on a quiet Queens Road street, close to Haywards Heath station. Period features — high ceilings, sash windows and a central fireplace — sit alongside a light, vaulted kitchen/diner that opens onto a sunny south‑east garden. The loft conversion (2017) creates two additional double bedrooms and a cloakroom with plumbing for a shower, giving flexible four‑bedroom accommodation over three levels.
Practical strengths include off‑street brick‑paved parking, useful outbuildings, and plentiful built‑in storage in the principal bedroom. The location is a major draw: fast trains to London and Brighton, Waitrose by the station, excellent primary and secondary schools nearby, and easy access to local parks and countryside attractions. Council tax band C is confirmed and the property is described as freehold.
Notable points to consider: the overall plot and garden are relatively small, and there is a single family bathroom serving four bedrooms. The house retains secondary glazing rather than full double glazing. Despite attractive presentation, buyers seeking large outdoor space or multiple bathrooms should factor in these limitations. The home is well suited to families wanting character, commuters needing rail links, or buyers seeking a largely move‑in property with scope to update further.
3 bedroom semi-detached house for sale in Queens Road, Haywards Heath, RH16 — £475,000 • 3 bed • 1 bath • 1025 ft²
3 bedroom semi-detached house for sale in Queens Road, Haywards Heath, RH16 — £590,000 • 3 bed • 2 bath • 1148 ft²
4 bedroom house for sale in College Road, Haywards Heath, RH16 — £550,000 • 4 bed • 2 bath • 1131 ft²
4 bedroom semi-detached house for sale in Queens Road, Haywards Heath, RH16 — £625,000 • 4 bed • 2 bath • 1346 ft²
2 bedroom house for sale in Gower Road, Haywards Heath, RH16 — £475,000 • 2 bed • 1 bath • 797 ft²
4 bedroom semi-detached house for sale in 23 Bolnore Road, Haywards Heath, RH16 — £750,000 • 4 bed • 3 bath • 1581 ft²






















































































