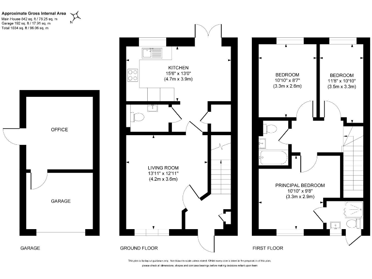
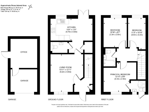
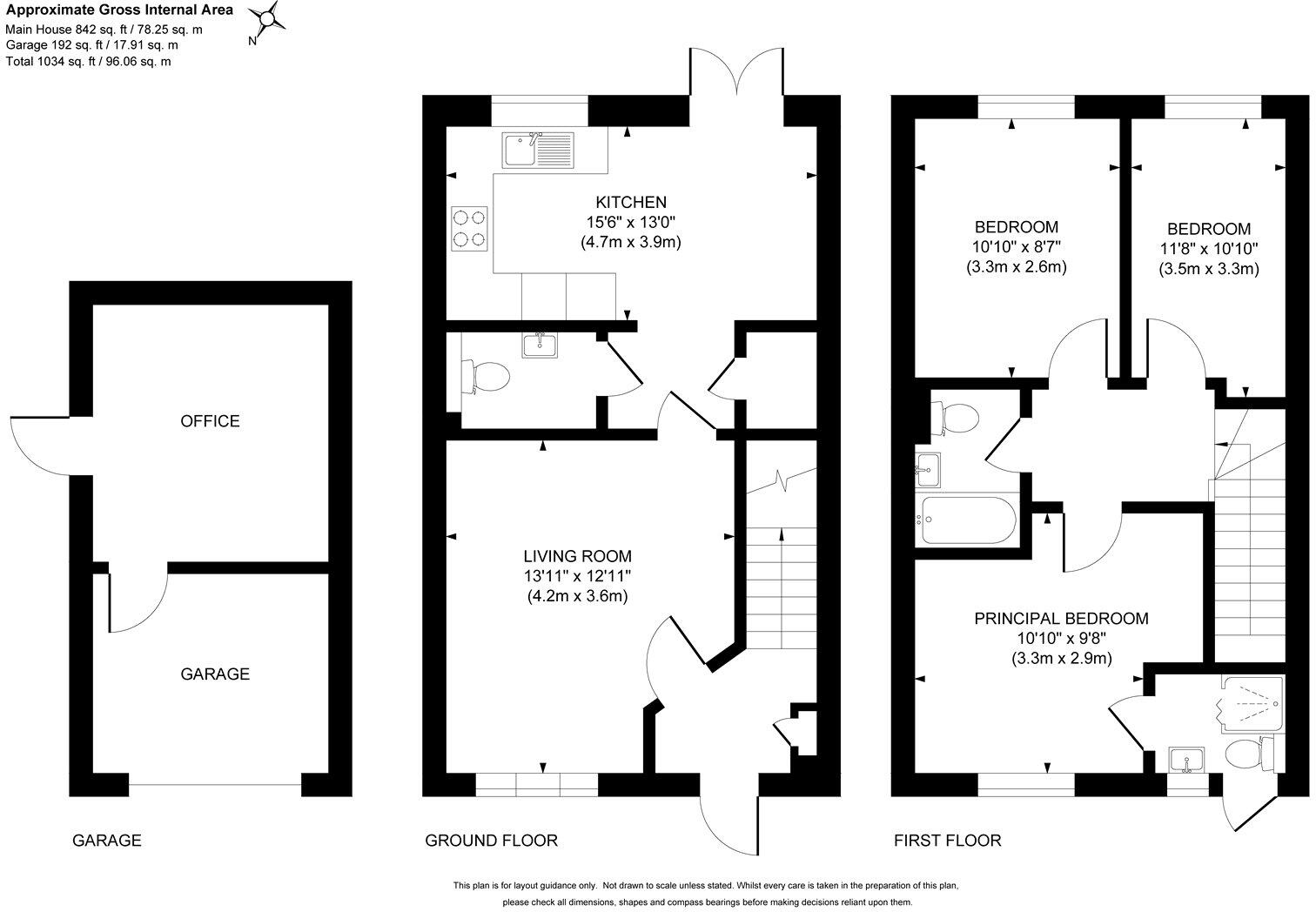
**Standout Features:**
- No onward chain
- Open plan kitchen/dining room
- Ensuite to master bedroom
- Downstairs cloakroom
- Detached garage (partly converted into home office)
- Large rear garden (approximately 55ft)
- Driveway parking for two cars
- Cul-de-sac location, walking distance to Holy Trinity School
- Quick access to M3 and Brookwood station
This charming, semi-detached three-bedroom home in the desirable West End village offers an excellent opportunity for families or first-time buyers seeking modern comfort in a peaceful setting. The property boasts a welcoming open plan kitchen/dining room with integrated appliances, a bright living room, and convenient downstairs cloakroom. Upstairs, enjoy the spacious master bedroom with an ensuite, alongside two additional double bedrooms and a stylish family bathroom.
The sizeable garden extends approximately 55ft and features a lovely lawn, mature plants, and a relaxing decking area—perfect for outdoor activities or gatherings. Additional flexibility comes from a detached garage, with part of it already converted into a cozy home office. Ample off-street parking and a cul-de-sac location enhance the feeling of safety and community.
Conveniently located near excellent schools, shops, and transport links to the M3 and Brookwood station, this property combines comfort with practicality. **Don’t miss the chance to make this delightful house your new home!**



















































































