Spacious family living with modern kitchen and large garden.
Five double bedrooms with high ceilings and period features
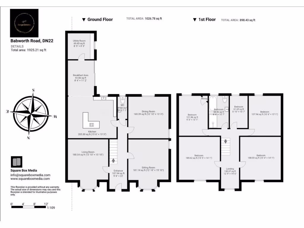
This extended five-bedroom Victorian home on Babworth Road blends original character with recent high-quality renovation. Tall sash windows, original marble fireplaces and high ceilings provide classic period charm, while the bespoke kitchen with premium Neff appliances, quartz worktops and bi-fold doors creates a light, contemporary hub for family life.
The house sits on a large wrap-around garden with a low‑maintenance rear lawn and a substantial detached outbuilding ideal for a home office, studio or gym. Practical features include underfloor heating to parts of the ground floor, a cellar and partial loft boarding for extra storage. A full camera security system is already fitted.
Buyers should note off-street parking is being added by the sellers and is not yet available on completion. The property offers two main bathrooms (one family bathroom plus a ground-floor WC) for five bedrooms. The renovation has been extensive, but services and appliances have not been independently tested — prospective purchasers should commission their own surveys.
Some marketing images use virtual staging to illustrate potential room layouts. Overall, this substantial period residence will suit growing families seeking generous living space, strong school links and a blend of historic character with modern conveniences.
5 bedroom semi-detached house for sale in Lime Tree Avenue, Retford, DN22 — £350,000 • 5 bed • 2 bath • 2000 ft²
5 bedroom detached house for sale in Grosvenor Close, Retford, DN22 — £300,000 • 5 bed • 2 bath • 1271 ft²
4 bedroom character property for sale in Chapelgate, Retford, Nottinghamshire, DN22 — £600,000 • 4 bed • 3 bath • 2125 ft²
5 bedroom semi-detached house for sale in Queen Street, Retford, DN22 — £320,000 • 5 bed • 3 bath • 2064 ft²
4 bedroom terraced house for sale in West Carr Road, Retford, DN22 — £190,000 • 4 bed • 2 bath • 932 ft²
5 bedroom semi-detached house for sale in The Gables, Grove Coach Road, Retford, DN22 — £575,000 • 5 bed • 3 bath • 2651 ft²






















































































































































































































































