Chain-free Victorian four-bed end-terrace near Meanwood Park and city links.
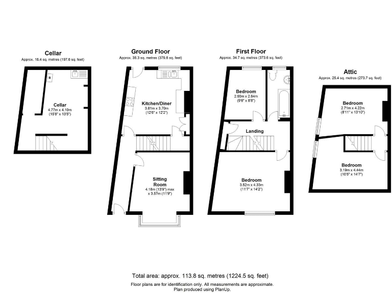
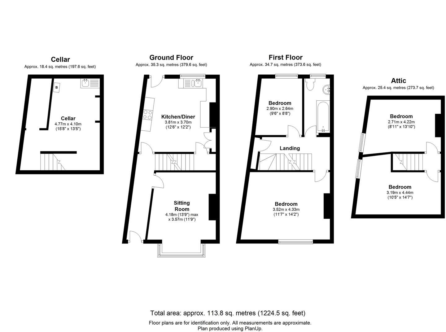
Chain-free freehold end-terrace with four double bedrooms
Sizable bay-front sitting room with high ceilings and chimney feature
Modern kitchen-diner, integrated oven, hob and dishwasher included
Useful cellar storage; paved low-maintenance rear garden
Approximately 1,124 sq ft; Council Tax Band B (relatively cheap)
Solid brick construction; assumed no cavity wall insulation
Single family bathroom only; may be tight for four occupants
Local crime levels above average — consider security measures
This four-bedroom end-terrace on Bentley Grove is a spacious, characterful home in Meanwood, offered chain-free and freehold. High ceilings, a bay-fronted sitting room with a brick chimney breast and a well-equipped kitchen-diner give the house traditional charm alongside practical living spaces. At about 1,124 sq ft the layout suits family life or sharers seeking roomy bedrooms and versatile living areas.
The location is a strong selling point: quiet cobbled street, short walks to Meanwood’s shops, cafés and Waitrose Home, and easy links into Leeds city centre and Headingley. Meanwood Park and several good primary and secondary schools are nearby, making the property convenient for families and commuters. Fast broadband and excellent mobile signal support home working.
Notable positives include a useful cellar for storage, low-maintenance front and paved rear gardens, and recent kitchen fittings with integrated oven and dishwasher. Council Tax Band B and freehold tenure add running-cost clarity.
Buyers should note some practical drawbacks: the plot is small and outdoor space limited; the property is an older solid-brick build with assumed no wall insulation; there is one family bathroom only; and local recorded crime is above average. These factors may affect running costs, thermal comfort, or suitability for those wanting large gardens. Overall, the house offers strong location value and character, but some buyers may want to budget for insulation, heating checks, or cosmetic updating.
4 bedroom terraced house for sale in Monk Bridge Street, Meanwood, Leeds, West Yorkshire., LS6 — £299,950 • 4 bed • 1 bath • 1346 ft²
3 bedroom semi-detached house for sale in Bentley Parade, Meanwood, Leeds, West Yorkshire., LS6 — £295,000 • 3 bed • 2 bath • 1199 ft²
3 bedroom terraced house for sale in The Vale, Meanwood, Leeds, West Yorkshire., LS6 — £275,000 • 3 bed • 1 bath • 788 ft²
2 bedroom end of terrace house for sale in Beckhill Approach, Meanwood, Leeds, West Yorkshire., LS7 — £179,950 • 2 bed • 1 bath • 862 ft²
4 bedroom detached house for sale in Stonegate Lane, Meanwood, Leeds, West Yorkshire., LS7 — £425,000 • 4 bed • 2 bath • 1114 ft²
3 bedroom semi-detached house for sale in Church Avenue, Meanwood, Leeds, West Yorkshire., LS6 — £325,000 • 3 bed • 1 bath • 955 ft²


































































































