Freehold 3-bed holiday retreat near Woolsery village and golf.
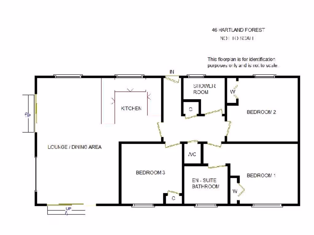
Three bedrooms with main ensuite shower room
Tucked into Hartland Forest Golf Club, this three-bedroom chalet is arranged as a cosy, single-storey holiday home that suits families or groups seeking a peaceful countryside retreat. The L-shaped living room opens to an open-plan kitchen and private garden, and a wall-mounted air-conditioning unit (with warm-air function) offers year-round comfort despite the property’s compact footprint.
Practical comforts include an en-suite to the main bedroom, a family bathroom, private driveway parking for two cars and freehold tenure. The chalet sits in a tucked-away position with forest and golf-course surroundings and is within easy reach of Woolsery village amenities, making it an attractive base for weekend breaks, golf trips or family stays.
Important considerations: the chalet is sold with a 12-month holiday occupancy restriction, so it is not for unrestricted permanent residence. There is an annual service charge (2024: £2,478). Heating is by electric room heaters and the building is timber-framed, which can require more regular external maintenance than masonry homes. Broadband speeds are very slow — suitable for breaks but limiting for full-time homeworking.
Overall this detached log-style chalet offers a low-maintenance, freehold holiday base with clear family appeal, good on-site parking and forest-edge character — best suited to buyers accepting holiday-use limits, modest living space and the ongoing service charge.
3 bedroom chalet for sale in Hartland Forest Golf Club, Woolsery, EX39 — £89,950 • 3 bed • 2 bath
2 bedroom chalet for sale in Hartland Forest Golf Club, Woolsery, Bideford, EX39 — £85,000 • 2 bed • 2 bath
3 bedroom chalet for sale in Woolsery, Bideford, EX39 — £79,000 • 3 bed • 2 bath • 743 ft²
3 bedroom chalet for sale in Hartland Forest, Bideford, EX39 — £80,000 • 3 bed • 2 bath • 700 ft²
3 bedroom bungalow for sale in Hartland Forest Golf and Leisure, Bideford, Devon, EX39 — £85,000 • 3 bed • 2 bath • 684 ft²
2 bedroom chalet for sale in Hartland Forest, Woolsery, Bideford, EX39 — £74,750 • 2 bed • 2 bath • 808 ft²


















































































