**Standout Features:**
- Fully fitted modern office space ready for immediate occupation
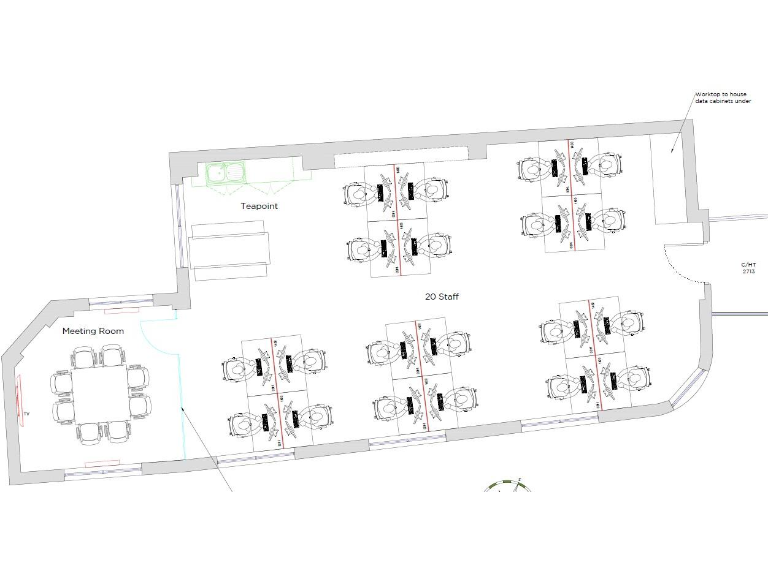
- Open-plan area with space for 20 desks and an 8-person glazed meeting room
- Kitchette equipped with white goods and VRF air conditioning
- DDA compliant access via an 8-person lift
- Secure cycle storage and shower facilities
- Prime location just a 5-minute walk from Bristol Temple Meads Station
**Summary:**
Seize the opportunity to own a stylish contemporary office space located in Bristol’s bustling commercial district. This newly fitted 1109 sq. ft. office features an open-plan design that accommodates up to 20 desks, perfect for a growing team or collaborative workspace. The modern décor is enhanced by natural light pouring in through large arched windows, evoking an industrial yet refined atmosphere. An 8-person meeting room, kitchenette with essential appliances, and convenient amenities such as a secure cycle storage and showers add significant value to your work environment.
Situated on St Thomas Lane opposite the Bristol County Court, this office benefits from excellent transport links and local conveniences. Although the surrounding area is classified as deprived, the multicultural neighbourhood offers vibrant amenities, ensuring your team has everything they need at their fingertips. Don't miss this chance to secure a well-located, move-in-ready office space in a city that thrives on creativity and collaboration. Act fast—spaces like this don’t last long on the market!
Office for sale in St Thomas Court, St. Thomas Court, Thomas Lane, Bristol, BS1 6JG, BS1 — £399,000 • 1 bed • 1 bath • 1109 ft²
Office for sale in QC30 201, Queen Charlotte Street, Bristol, BS1 4HJ, BS1 — £260,000 • 1 bed • 1 bath • 1099 ft²
Office for sale in Office 1, Number One Bristol, Lewins Mead, City Centre , Bristol, City of Bristol, BS1 — £1,350,000 • 1 bed • 1 bath • 5088 ft²
Office for sale in Suite 102 , B&C QC30, 30 Queen Charlotte Street, Bristol, BS1 — £275,000 • 1 bed • 1 bath • 1511 ft²
Office for sale in King Square Avenue, Bristol, BS2 — £350,000 • 1 bed • 2 bath • 1714 ft²
Office for sale in 14 - 16 Hotwell Road, 16 Hotwell Road, Bristol, BS8 4UD, BS8 — £380,000 • 1 bed • 1 bath • 1173 ft²


















































