Ready-let near university with strong rental return and recent refurbishment.
Refurbished Summer 2022, minimal immediate spend expected
Currently let for 2023/24; steady student income stream
Gross rental income £22,640; quoted gross yield 9.06% pa
Freehold with documented historic C4 HMO use
Six small-to-average student-sized bedrooms; two bathrooms
High local flood risk—buyer's insurance and mitigation needed
Solid brick walls assumed uninsulated; potential EPC/insulation cost
Small plot with limited external space typical of terraced houses
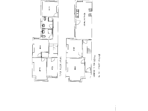
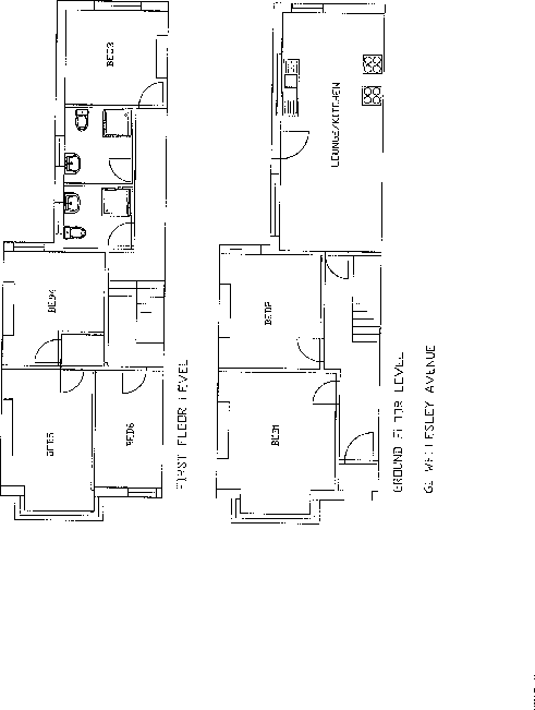
This mid-terrace property has been adapted as a six-bedroom HMO and refurbished in Summer 2022, making it a turn‑key asset for buy‑to‑let investors targeting the student market. It is currently let for the 2023/24 academic year, producing a gross rental income of £22,640 and a quoted gross yield of 9.06%.
Accommodation is compact and purpose-built for sharers: two ground-floor bedrooms plus an open-plan kitchen/lounge, and four first-floor bedrooms served by two shower rooms. Room sizes are typical student proportions rather than family living space, which supports stable demand from nearby university tenants but narrows the buyer pool to investors or landlords experienced with HMOs.
Practical considerations are straightforward: freehold tenure, mains gas central heating, double glazing installed post‑2002, and documented historic C4 HMO use. The recent refurbishment reduces immediate capital spend, though the property’s small footprint and modest external space reflect its inner‑city terrace character.
Material drawbacks are stated clearly: the site is in a high flood‑risk area and the original solid brick walls are assumed to lack cavity insulation, which could affect energy performance. Current tenancies reduce void risk but may limit vacant possession options for alternative uses.
6 bedroom house share for sale in Wellesley Ave, Hull, HU6 — £240,000 • 6 bed • 2 bath • 1744 ft²
4 bedroom property for sale in Sidmouth Street, Hull, HU5 — £145,000 • 4 bed • 1 bath • 1088 ft²
6 bedroom terraced house for sale in Hutt Street, Hull, HU3 — £225,000 • 6 bed • 3 bath • 1233 ft²
5 bedroom house share for sale in Beresford Avenue, Hull, HU6 — £200,000 • 5 bed • 2 bath • 868 ft²
3 bedroom end of terrace house for sale in Sidmouth Street, Hull, HU5 — £130,000 • 3 bed • 1 bath • 872 ft²
3 bedroom house share for sale in Raglan Street, Hull, HU5 — £115,000 • 3 bed • 1 bath • 527 ft²






























