**Standout Features:**
- Recently renovated with modern finishes
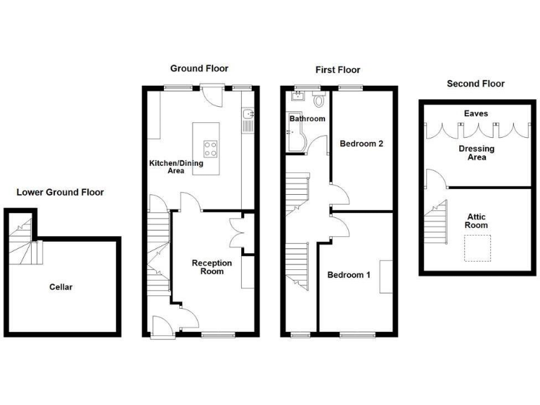
- Two well-proportioned bedrooms plus two versatile attic rooms
- Stunning open-plan dining kitchen with integrated appliances
- Low-maintenance backyard ideal for relaxation
- On-street parking
- Leasehold tenure, Council Tax Band A (very affordable)
Nestled in the vibrant community of Rossendale, this exceptional two-bedroom semi-detached home on Burnley Road East is perfect for first-time buyers or small families. Newly renovated, it boasts a contemporary design throughout, featuring an open-plan dining kitchen equipped with high-end appliances, an inviting reception room with a log burner, and two stylish bedrooms. The added versatility of two attic rooms—ideal as a third bedroom or dressing area—gives this home significant potential for personalization and expansion.
The property's low-maintenance rear yard is perfect for enjoying quiet outdoor moments or hosting friends. While the property's EPC rating is E and broadband speeds are categorized as slow, the home's condition ensures a comfortable living experience, with a cozy atmosphere inviting you to make it your own. Located in a community-oriented environment with schools rated 'Good' and 'Outstanding' nearby, this charming home is a rare find that won’t be on the market for long. Explore the warmth and comfort that awaits in this stunning property before it's gone!
2 bedroom terraced house for sale in Burnley Road, Loveclough, Rossendale, BB4 — £210,000 • 2 bed • 1 bath • 872 ft²
3 bedroom end of terrace house for sale in Hareholme Lane, Rossendale, BB4 — £259,950 • 3 bed • 1 bath • 1163 ft²
2 bedroom end of terrace house for sale in Burnley Road East, Waterfoot, Rossendale, BB4 — £170,000 • 2 bed • 1 bath • 819 ft²
3 bedroom detached house for sale in Newbigging Avenue, Rossendale, BB4 — £360,000 • 3 bed • 3 bath • 1694 ft²
2 bedroom terraced house for sale in Beech Street, Rawtenstall, BB4 — £165,000 • 2 bed • 1 bath • 754 ft²
2 bedroom semi-detached house for sale in Booth Crescent, Waterfoot, Rossendale, BB4 — £154,950 • 2 bed • 1 bath • 636 ft²






























































































































