Spacious three-bedroom house with garage and countryside views.
10-year NHBC warranty included
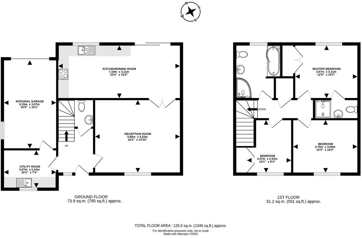
A brand-new, energy-efficient detached family home with a 10-year NHBC warranty, built by a reputable local developer. The house occupies a central position in Cilmery on a select development of six homes and offers far-reaching Mid-Wales countryside views from the front bedrooms. Finished to a modern standard, the ground floor features a generous entrance hall, main reception room, wide kitchen/dining space with sliding doors to the rear garden, utility room and integral single garage.
Upstairs provides three good-sized bedrooms with an en-suite to the master, plus a family bathroom with separate shower. Practical details include LPG central heating, uPVC windows and fascias, private front and rear lawns, driveway parking and an integral garage. The property is freehold and has no flood risk, with very low local crime and excellent mobile signal.
Buyers should note the property is new and some external landscaping is ongoing; carpets are not included in the price (kitchen and bathroom floors are). Broadband guidance shows an average speed around 58 Mbps but buyers should confirm with providers. The location is rural and classified as remoter/agricultural with higher measured area deprivation, which may affect local services and demographics despite good transport links to Builth Wells and the Heart of Wales rail line.
3 bedroom semi-detached house for sale in Maeshendre, Cilmery, Builth Wells, LD2 — £220,000 • 3 bed • 2 bath • 919 ft²
3 bedroom detached house for sale in Maeshendre, Cilmery, Builth Wells, LD2 — £295,000 • 3 bed • 2 bath • 919 ft²
4 bedroom detached house for sale in Cilmery, Builth Wells, LD2 — £420,000 • 4 bed • 2 bath • 1895 ft²
3 bedroom detached house for sale in Cilmery, Builth Wells, LD2 — £295,000 • 3 bed • 2 bath • 906 ft²
3 bedroom semi-detached house for sale in Maeshendre, Cilmery, Builth Wells, LD2 — £220,000 • 3 bed • 2 bath • 919 ft²
3 bedroom detached house for sale in Cilmery, Builth Wells, LD2 — £365,000 • 3 bed • 2 bath • 1356 ft²


















































































































