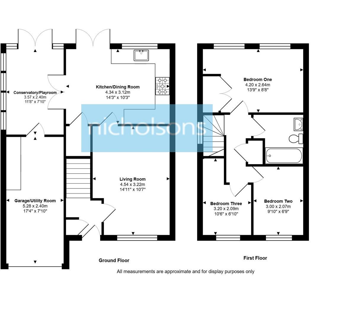
**Standout Features:**
- Newly renovated end of terrace family home
- Three comfortable bedrooms with built-in wardrobes in the master
- Modern, open-plan kitchen and dining area
- Generous conservatory/playroom for added space
- New carpets and flooring throughout
- Integral garage with utility room
- Driveway parking for multiple vehicles
- Good-sized rear garden with lawn, patio, and decking
- Walking distance to local shops and close to M3 motorway
**Summary:**
Discover the charm of this beautifully modernized three-bedroom end of terrace home in the sought-after Ancells Farm development. Newly renovated, this inviting residence boasts an open-plan kitchen/dining area with integrated appliances, perfect for family gatherings. The spacious living room extends into a delightful conservatory, providing extra space for play or relaxation. Upstairs, you will find three well-appointed bedrooms, ensuring comfort for the entire family.
With new carpets and flooring throughout, this home is move-in ready while offering a garage and driveway parking for your convenience. The decent-sized garden is an oasis for outdoor enjoyment, making it ideal for families looking for a welcoming atmosphere. Located within easy reach of local shops and the M3 motorway, this property combines suburban tranquillity with urban accessibility. Don’t miss the opportunity to make this family haven yours—a perfect blend of modern living and practicality awaits!
2 bedroom terraced house for sale in Colbred Corner, Fleet, GU51 — £365,000 • 2 bed • 1 bath • 802 ft²
3 bedroom semi-detached house for sale in Swaledale Gardens, Fleet, Hampshire, GU51 — £375,000 • 3 bed • 1 bath • 710 ft²
2 bedroom end of terrace house for sale in Lime Drive, Fleet, GU51 — £375,000 • 2 bed • 1 bath • 792 ft²
3 bedroom end of terrace house for sale in Nether Vell-Mead, Church Crookham, GU52 — £475,000 • 3 bed • 1 bath • 1121 ft²
3 bedroom detached house for sale in Galloway Close, Fleet, Hampshire, GU51 — £525,000 • 3 bed • 1 bath • 1033 ft²
2 bedroom terraced house for sale in Drovers End, Fleet, GU51 — £350,000 • 2 bed • 1 bath • 657 ft²






































































