Quiet cul-de-sac near Stratford amenities and excellent transport links.
Freehold mid-terrace with off-street driveway parking
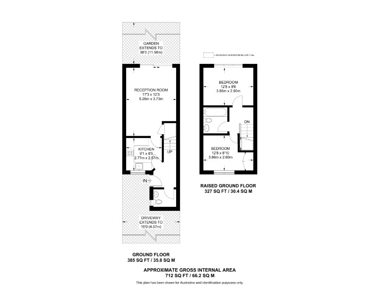
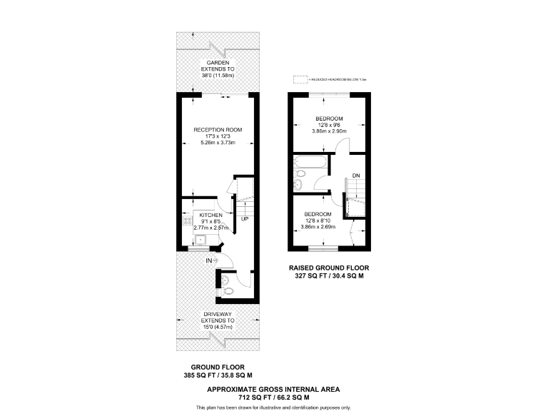
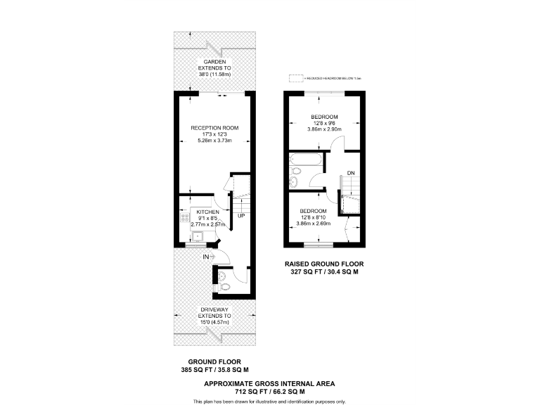
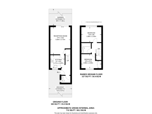
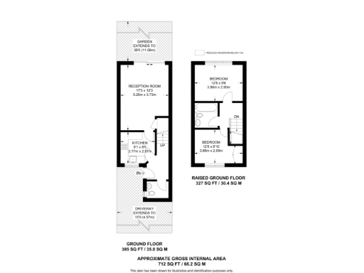
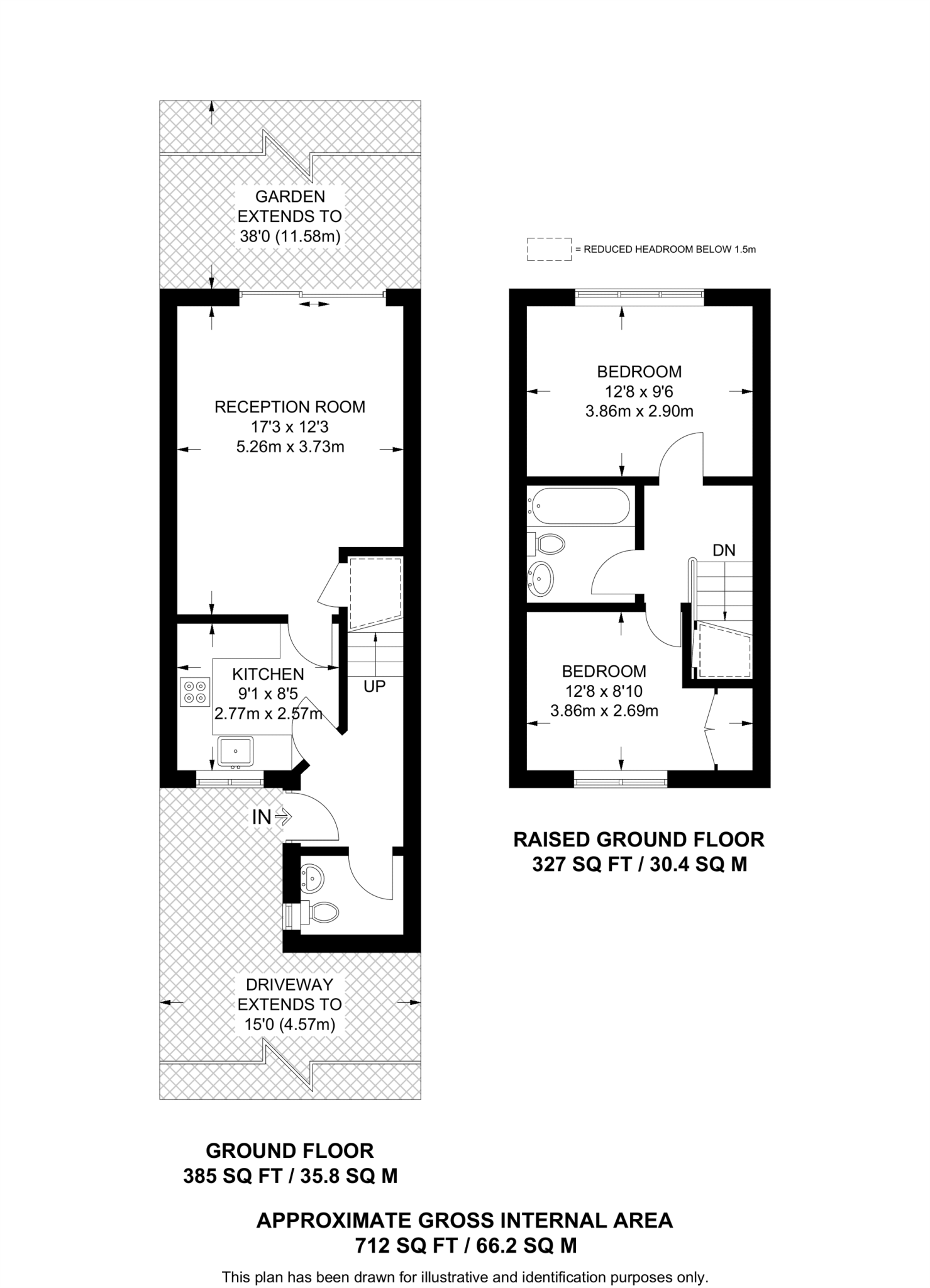
Bright, practical and well located, this freehold two-bedroom mid-terrace sits over two light-filled floors with off-street parking and a large private garden. The sizeable reception room offers space to dine and relax, while the separate kitchen keeps mealtimes functional. At about 712 sq ft, the layout is straightforward and suits a first home or buy-to-let.
Maryland Street is a quiet residential road close to Stratford’s transport hubs and Westfield shopping complex, making commutes and weekend shopping effortless. Broadband and mobile signal are strong, and local schools include an Outstanding-rated primary, which will appeal to young families.
The house is modern in style, built in the 1980s, and presents good potential to add value with modest updating. Note there is a single family bathroom plus an additional separate WC, which helps morning routines but may feel limited for some buyers.
Be candid about the location: the immediate area shows higher-than-average crime and levels of deprivation, so buyers should visit at different times and consider security measures. There is no flood risk and the property benefits from mains gas heating and assumed cavity wall insulation.
2 bedroom terraced house for sale in Faringford Road E15, Stratford, London, E15 — £475,000 • 2 bed • 1 bath • 663 ft²
2 bedroom terraced house for sale in Faringford Road, Stratford, London, E15 — £485,000 • 2 bed • 2 bath • 771 ft²
2 bedroom terraced house for sale in WIDDIN STREET, Stratford, London, E15 — £475,000 • 2 bed • 1 bath • 661 ft²
2 bedroom end of terrace house for sale in Vernon Road, Stratford, London, E15 — £475,000 • 2 bed • 1 bath • 577 ft²
3 bedroom terraced house for sale in Potters Row, Stratford, London, E20 — £1,170,000 • 3 bed • 2 bath • 1484 ft²
3 bedroom house for sale in Windmill Lane, London, E15 — £800,000 • 3 bed • 1 bath • 861 ft²


















































































































