**Standout Features:**
- Three-bedroom terraced house in good condition
- Potential for rear and loft extensions (STPP)
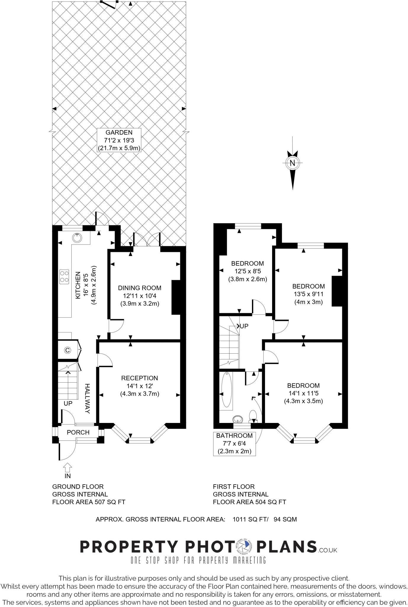
- Generous south-facing garden (approx. 71 feet)
- Well-maintained, significantly updated in 2013
- Convenient location near Harrow town centre and excellent schools
**Property Summary:**
Discover this charming three-bedroom terraced house on Sussex Road, Harrow, offering a blend of comfort, modern living, and future potential. With over 1,000 sq ft of well-maintained space, this home features a bright and spacious layout, including two reception rooms, a modern kitchen, and three well-proportioned bedrooms upstairs. The standout south-facing garden provides ample outdoor space for entertaining, gardening, or future expansions, subject to planning permission.
Built in 2013, this property has undergone significant renovations, including a full rewire, replumb, and the installation of new windows and doors. Situated within a short distance from Harrow town centre, you’ll find highly regarded schools and excellent transport links nearby, perfect for families and commuters alike. This opportunity is not to be missed—viewings are highly recommended to fully appreciate the comfort and potential that this delightful home has to offer.
3 bedroom terraced house for sale in Sussex Road, Harrow, HA1 — £550,000 • 3 bed • 1 bath • 1000 ft²
4 bedroom terraced house for sale in Sussex Road, Harrow, HA1 — £699,950 • 4 bed • 3 bath • 1609 ft²
3 bedroom terraced house for sale in Hill Crescent, Harrow, HA1 — £495,000 • 3 bed • 1 bath • 804 ft²
3 bedroom terraced house for sale in Somerset Road, Harrow, HA1 — £650,000 • 3 bed • 1 bath • 1343 ft²
3 bedroom end of terrace house for sale in Radcliffe Road, Harrow, HA3 — £615,000 • 3 bed • 1 bath • 888 ft²
3 bedroom end of terrace house for sale in Ravenswood Crescent, Harrow, Middlesex, HA2 — £625,000 • 3 bed • 1 bath • 1338 ft²


















































