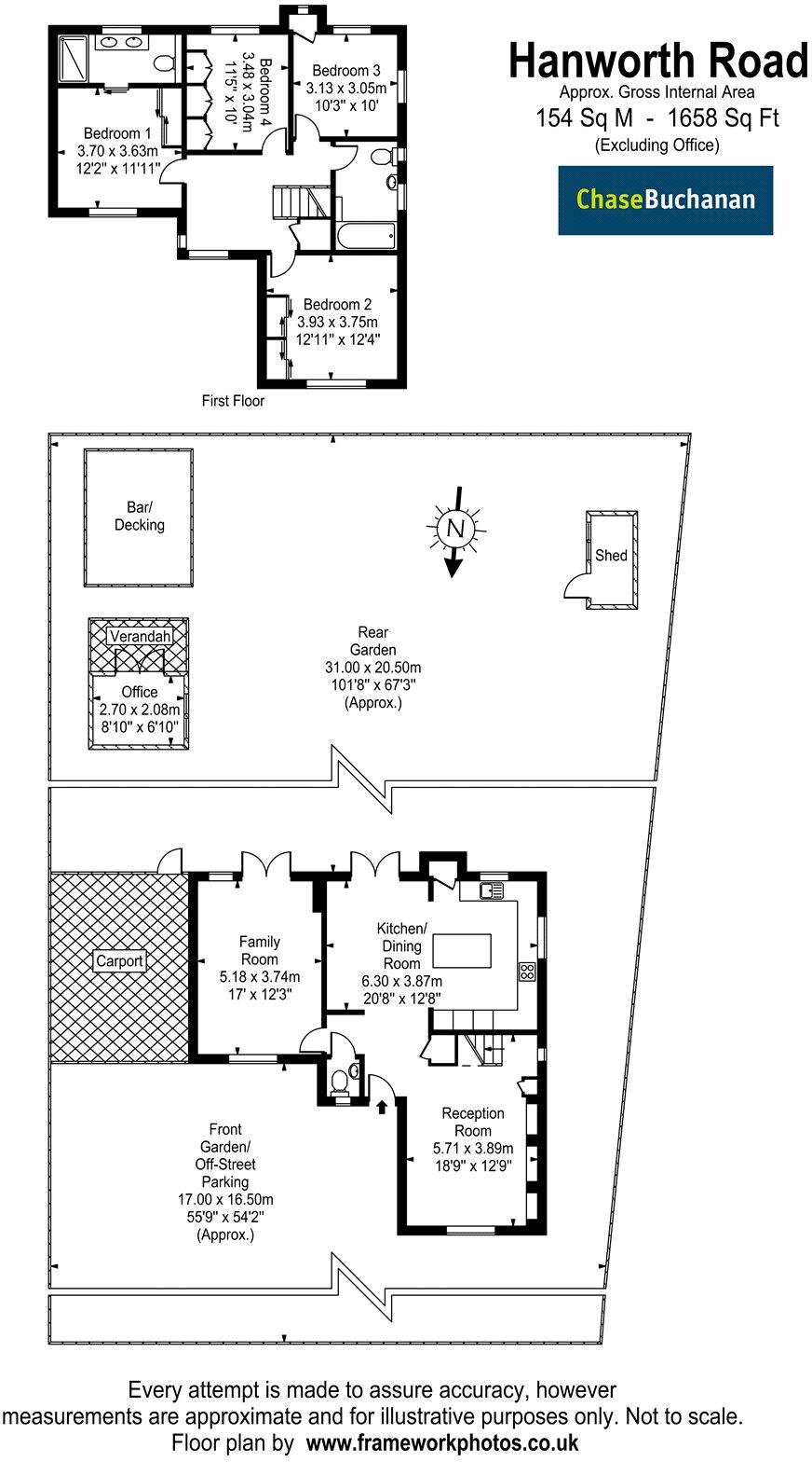
Large 4-bedroom detached house with huge south garden, parking and extension potential.
Completely renovated throughout to a high standard
1,658 sq ft; four double bedrooms and two bathrooms
South-facing garden over 110ft with office and kitchen/bar
Off-street parking for several cars plus garage
Planning permission in place for further extension (STTP)
No central heating system recorded; electric heaters assumed
Solid brick walls (no cavity insulation assumed) — potential efficiency costs
Chain free sale; opposite well-regarded schools
This detached 1930s family house on Hanworth Road has been completely renovated to a high standard and offers 1,658 sq ft of thoughtfully arranged living space. The ground floor features an elegant reception room with a fireplace, a large open-plan kitchen/dining area, a separate family room and a guest cloakroom. Upstairs are four double bedrooms, a luxury family bathroom and an en-suite shower room. The property is offered chain free.
The south-facing garden extends to over 110ft and includes a dedicated office and a kitchen/bar area — ideal for family outdoor living, entertaining or multi-use space. Off-street parking for several cars and a garage add practical convenience. Planning permission is already in place for a further extension (subject to the consented plans), so there is clear scope to increase living space and future value.
Important practical points: the property currently has no central heating system recorded (electric heaters assumed) and the walls are solid brick with no cavity insulation assumed. These factors may require investment to improve energy efficiency and comfort. Council tax is described as quite expensive, which buyers should factor into running costs.
Situated opposite several highly regarded schools and within walking distance of Hampton Hill high street, the location suits families seeking strong local amenities, parks and good commuter links. The house combines period character with contemporary finishes and offers a spacious, flexible layout for family life and future growth.
4 bedroom detached house for sale in Hanworth Road, Hampton, TW12 — £1,295,000 • 4 bed • 2 bath • 2164 ft²
4 bedroom detached house for sale in Uxbridge Road, Hampton, TW12 — £1,295,000 • 4 bed • 2 bath • 2675 ft²
5 bedroom detached house for sale in Uxbridge Road, Hampton, TW12 — £1,150,000 • 5 bed • 3 bath • 1968 ft²
3 bedroom detached house for sale in Hanworth Road, Hampton, TW12 — £1,150,000 • 3 bed • 1 bath • 1102 ft²
4 bedroom semi-detached house for sale in Hanworth Road, Hampton, TW12 — £1,050,000 • 4 bed • 2 bath • 1497 ft²
5 bedroom detached house for sale in Longford Close, Hampton Hill, TW12 — £1,100,000 • 5 bed • 4 bath • 2275 ft²


















































































































