Chain-free two-bedroom home with large garage and garden, ready for refurbishment.
Detached bungalow set back on prime Fens estate plot
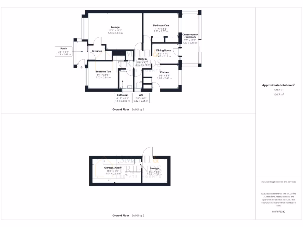
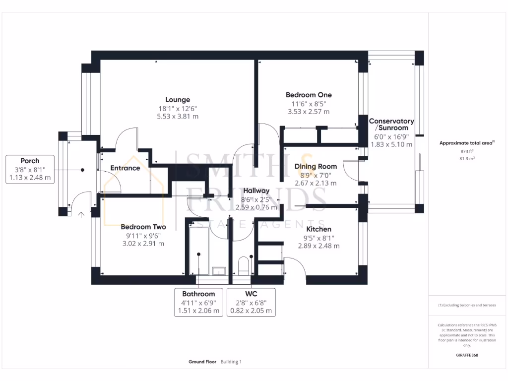
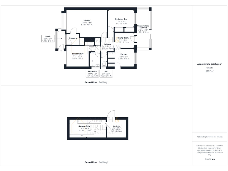
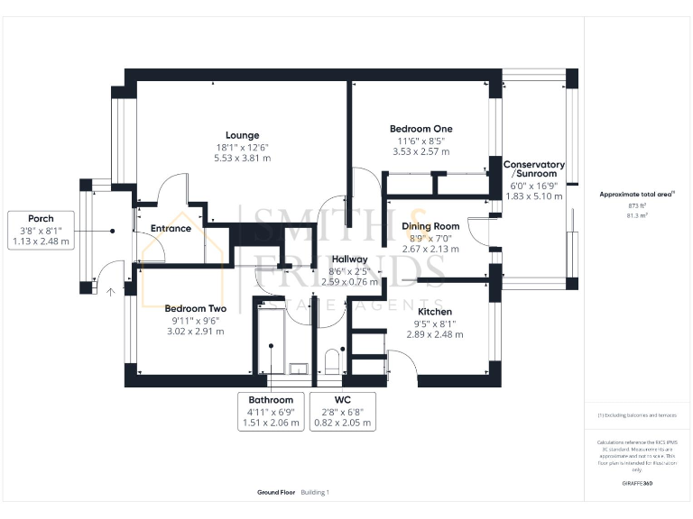
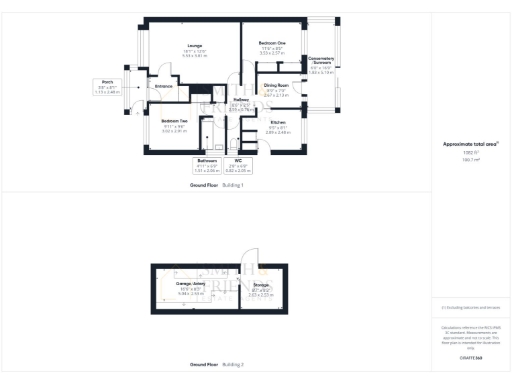
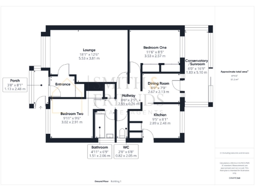
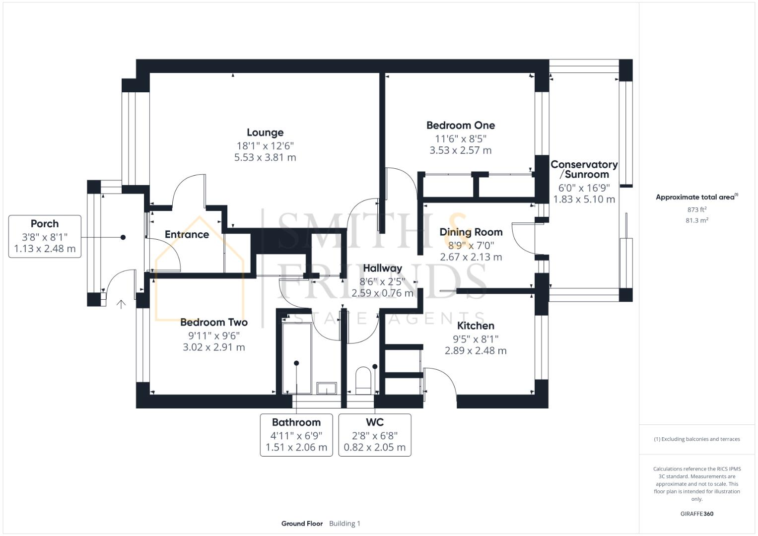
This detached two-bedroom bungalow sits set back in a popular part of the Fens estate and is offered chain free for immediate occupation. The layout is spacious for a bungalow — generous lounge, separate dining room (originally the third bedroom), conservatory and a kitchen — making it well suited to downsizers who still want room for visits and hobbies. Built in the late 1960s/70s, the house benefits from mains gas central heating, uPVC double glazing and cavity-filled walls, and sits on a decent plot with private rear garden, long driveway and a larger-than-average divided garage.
The property does require modernisation throughout: internal fixtures, kitchen and bathroom are dated and there is clear scope to reconfigure the former aviary/garage space into utility or workshop areas. The bungalow’s original three-bedroom layout has been altered to two bedrooms, which may limit some buyers unless reinstatement is planned. The single bathroom plus separate WC is functional but will suit buyers willing to update to contemporary standards.
Location is a strength — close to local shops, bus links and several well-rated primary schools, with easy road access via the A689. Practical details include freehold tenure, no flood risk and affordable council tax banding. An internal viewing is recommended to appreciate the plot, garage potential and scope for a sympathetic renovation to increase comfort and value.
2 bedroom detached bungalow for sale in Catcote Road, Fens, Hartlepool, TS25 — £250,000 • 2 bed • 1 bath • 1059 ft²
2 bedroom semi-detached bungalow for sale in Welland Road, Hartlepool, TS25 — £210,000 • 2 bed • 1 bath • 667 ft²
2 bedroom semi-detached bungalow for sale in Witham Grove, Fens, Hartlepool, TS25 — £180,000 • 2 bed • 1 bath • 562 ft²
2 bedroom detached bungalow for sale in Fenton Road, Hartlepool, TS25 — £200,000 • 2 bed • 1 bath • 797 ft²
3 bedroom detached bungalow for sale in Spalding Road, Hartlepool, TS25 — £189,950 • 3 bed • 1 bath • 769 ft²
2 bedroom semi-detached house for sale in Catcote Road, Hartlepool, TS25 — £150,000 • 2 bed • 1 bath • 745 ft²






















































































