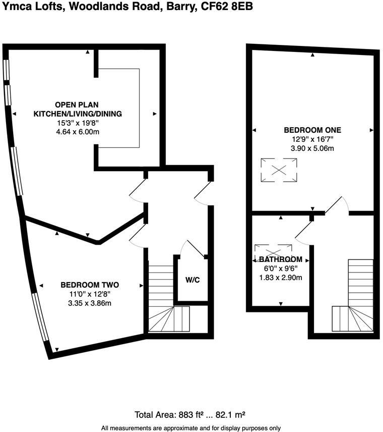
Chain-free two-bedroom with parking and striking double-height living space.
- Chain-free two-bedroom split-level maisonette, 775–776 sq ft
- Double-height living room with abundant natural light
- Designated off-street parking to the rear
- Leasehold: 105 years remaining; service charge ~£1,812 pa
- Ground rent circa £227 pa; council tax described as affordable
- Electric room heaters (no gas central heating) — running costs may be higher
- No private outdoor space; town-centre setting with limited green areas
- Local area: very deprived classification and above-average crime rates
Set over a split-level layout, this chain-free two-bedroom maisonette offers a rare combination of generous internal space and designated off-street parking in the heart of Barry town centre. The living area benefits from double-height ceilings and large windows that create a bright, airy feel; the open-plan kitchen/living is well suited to professionals, small families or buy-to-let tenants.
The property is offered as a leasehold with 105 years remaining. Annual costs include a service charge of approximately £1,812 and a ground rent of £227. Heating is by electric room heaters and mains electricity supplies the property; broadband and mobile signals are described as fast and excellent respectively.
This is a practical investment or first home: the flat is chain-free, broadly well presented and occupies a convenient central location close to shops, transport and local amenities. Note the local area records higher-than-average crime rates and ranks as very deprived, which may affect long-term capital growth and rental demand in parts of the town.
Buyers should be aware there is no private outdoor space and that the building appears as a period-style red-brick conversion. Constructed or converted in the early 2000s, the maisonette combines character features with modern finishes but will need standard ongoing maintenance. Viewing is recommended to assess finish and layout in person.
2 bedroom flat for sale in Main Street, Barry, CF63 — £160,000 • 2 bed • 1 bath • 1238 ft²
2 bedroom ground floor flat for sale in Woodlands Road, Barry, The Vale Of Glamorgan. CF62 8EB, CF62 — £85,000 • 2 bed • 1 bath • 558 ft²
2 bedroom flat for sale in Romilly Road, Barry, CF62 — £165,000 • 2 bed • 1 bath • 614 ft²
1 bedroom apartment for sale in Gerddi Margaret, Barry, CF62 — £125,000 • 1 bed • 1 bath • 431 ft²
2 bedroom flat for sale in 4 Park Road, Barry, CF62 — £170,000 • 2 bed • 1 bath • 522 ft²
2 bedroom apartment for sale in Romilly Road, Barry, CF62 — £180,000 • 2 bed • 1 bath • 625 ft²






































