**Standout Features:**
- Modern detached home with four spacious bedrooms
- Two bedrooms with en-suite bathrooms
- Generous living spaces including two reception rooms
- Newly renovated with stylish finishes throughout
- Landscaped rear garden, perfect for outdoor gatherings
- Off-street parking and single garage
- Conveniently located near local amenities and transport links
**Potential Concerns:**
- High local crime rate may raise security concerns
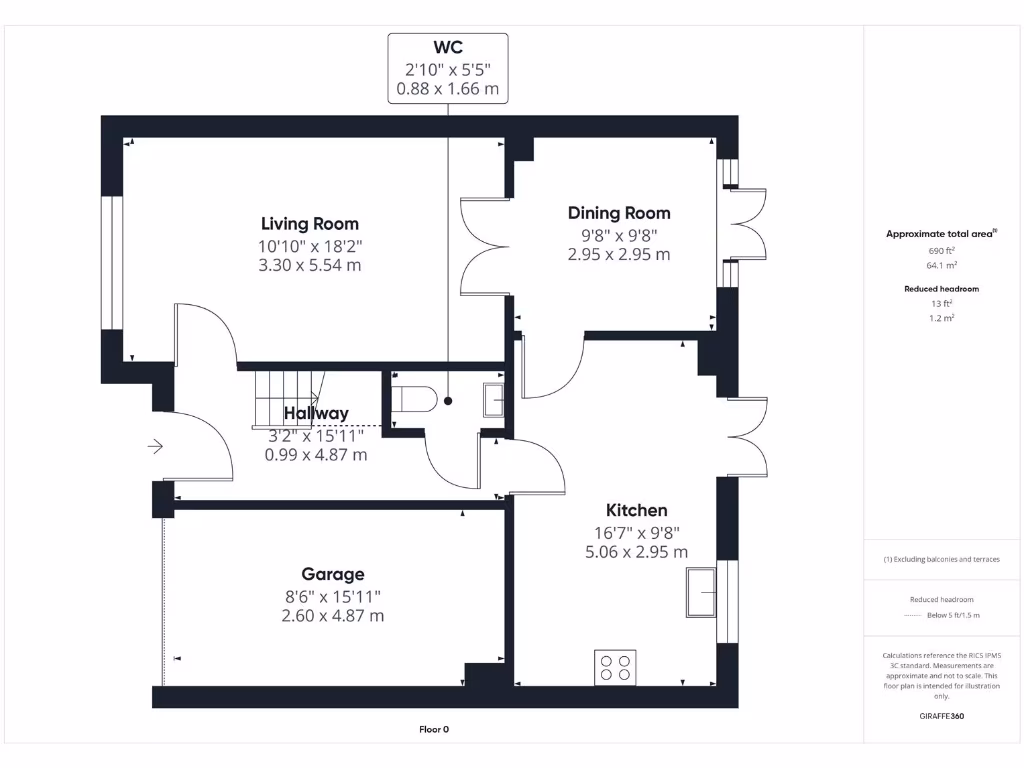
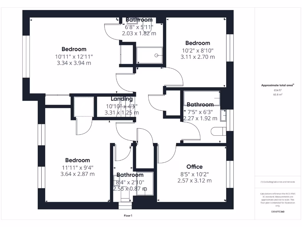
Step into this immaculately presented four-bedroom detached family home, offering a blend of modern luxury and functionality. Perfect for growing families or investors, this property boasts two en-suite double bedrooms, providing optimal privacy and convenience. The spacious layout showcases two versatile reception rooms—ideal for both casual gatherings and sophisticated entertaining.
The modern kitchen, adorned with white cabinetry and integrated appliances, flows seamlessly into a beautifully landscaped rear garden, offering a tranquil setting for summer evenings. Enjoy off-street parking in the double driveway and additional storage in the single garage. Despite the high crime rate in the area, the property’s appeal remains strong, thanks to its excellent broadband and mobile signal, enhancing your lifestyle to suit today's demands.
This home is more than just a place to live; it’s a lifestyle waiting to be embraced. Ideal for those seeking a meticulously maintained property with renovation potential, this exceptional listing won't last long—arrange your viewing today to secure your future in a home that perfectly balances comfort and style!
4 bedroom semi-detached house for sale in Haydock Avenue, Castleford, WF10 — £295,000 • 4 bed • 3 bath • 1435 ft²
4 bedroom detached house for sale in Craig Hopson Avenue, Castleford, WF10 — £350,000 • 4 bed • 2 bath • 1378 ft²
4 bedroom detached house for sale in Craig Hopson Avenue, Castleford, West Yorkshire, WF10 — £325,000 • 4 bed • 2 bath • 1054 ft²
4 bedroom house for sale in Haydock Avenue, Castleford, WF10 — £420,000 • 4 bed • 2 bath • 1433 ft²
4 bedroom detached house for sale in Mapplewell Road, Castleford, WF10 — £290,000 • 4 bed • 2 bath • 1152 ft²
3 bedroom detached house for sale in Birch Mews, Castleford, West Yorkshire, WF10 — £270,000 • 3 bed • 2 bath • 979 ft²


























































































































