**Standout Features:**
- Traditional Tudor Revival semi-detached family home
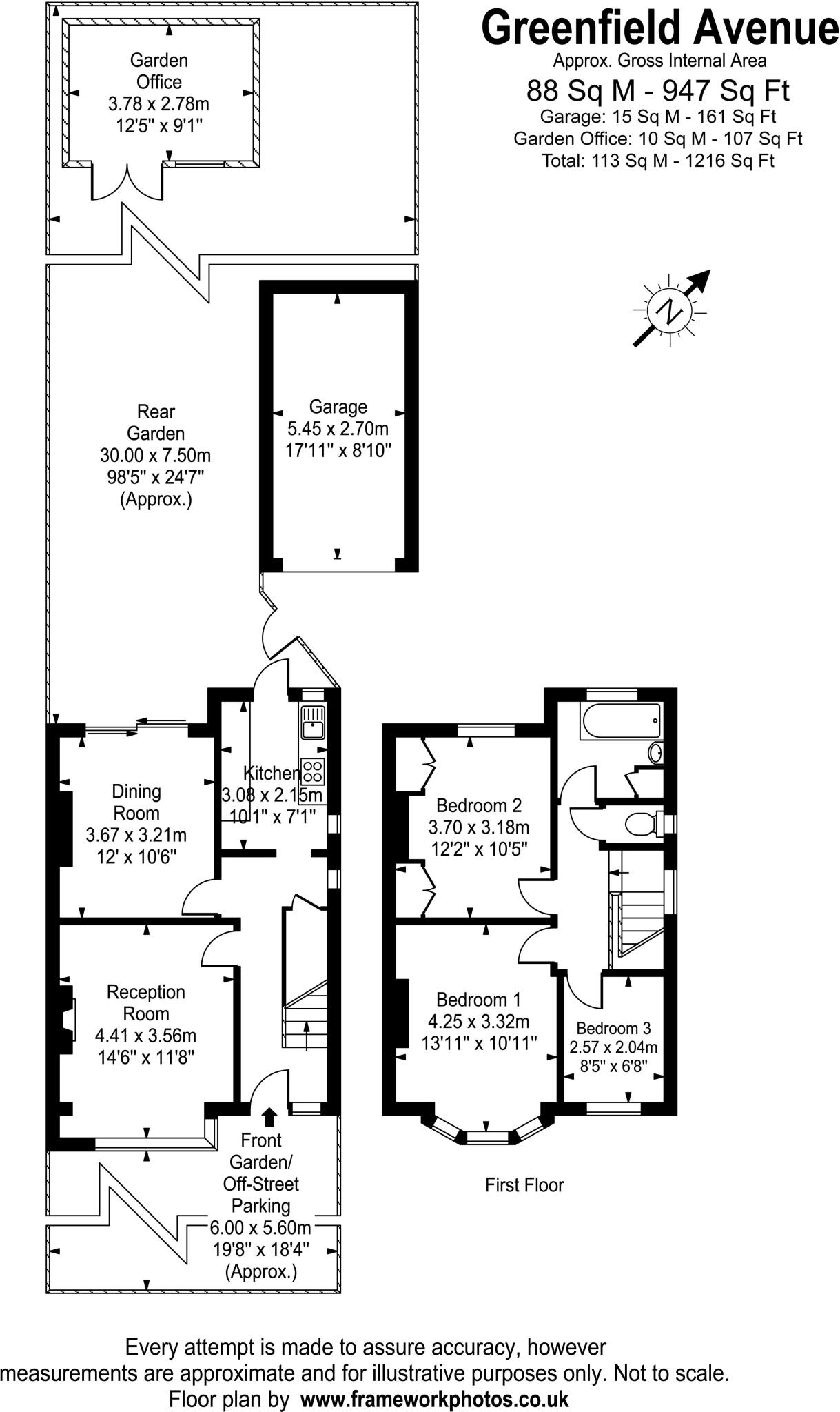
- Three bedrooms, including two doubles and one single
- Generous 100ft private rear garden with garden cabin/home office
- Elegant period features: high Victorian ceilings, stripped wood floorboards, and panelled doors
- Excellent parking with shared driveway and garage
- Planning consent for extensions is likely obtainable
**Potential Concerns:**
- Original layout may require modernization
- Limited insulation in solid brick walls
Nestled in the heart of a picturesque residential neighborhood, this charming three-bedroom Tudor Revival semi-detached home on Greenfield Avenue offers an ideal blend of tradition and modern living. Stepping inside, you'll find inviting reception rooms adorned with period features that add character and warmth. The expansive 100ft garden is a standout feature, complete with a versatile garden cabin perfect for a home office or creative space, offering seclusion and tranquility.
While some modernization may be needed in the original layout, this home retains its quaint charm and provides an exciting opportunity for future renovations, including the potential for a kitchen/dining extension or loft conversion. Families will appreciate its close proximity to outstanding schools and the community-rich environment, along with convenient amenities just moments away. With off-street parking and low crime rates in the area, this home effortlessly combines comfort, security, and family-friendly living.
Don’t miss your chance to own this delightful property in a vibrant community – it’s a rare find that may not last long on the market!
3 bedroom semi-detached house for sale in Greenfield Avenue, Surbiton, KT5 — £825,000 • 3 bed • 1 bath • 1196 ft²
4 bedroom semi-detached house for sale in Grand Avenue, Surbiton, KT5 — £975,000 • 4 bed • 3 bath • 1372 ft²
3 bedroom semi-detached house for sale in Greenfield Avenue, Surbiton, KT5 — £825,000 • 3 bed • 1 bath • 1945 ft²
4 bedroom semi-detached house for sale in Highfield Road, Surbiton, KT5 — £889,950 • 4 bed • 2 bath • 1612 ft²
4 bedroom end of terrace house for sale in Largewood Avenue, Surbiton, KT6 — £600,000 • 4 bed • 2 bath • 1290 ft²
3 bedroom semi-detached house for sale in Princes Avenue, Surbiton, KT6 — £625,000 • 3 bed • 1 bath • 910 ft²


























































