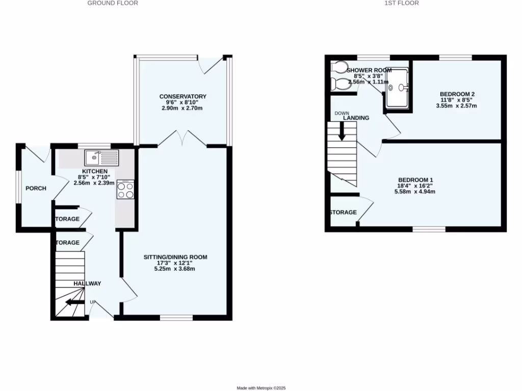
**Standout Features:**
- Spacious 2-bedroom end-of-terrace home
- Large south-facing garden with patio for outdoor relaxation and entertaining
- Bright interiors including a conservatory and utility room
- Block-built outbuilding, perfect for storage or a workshop
- Ample off-street parking with a paved driveway
- No onward chain for easier transaction
- Average council tax, making it budget-friendly
**Concise Property Summary:**
This charming 2-bedroom end-of-terrace home in a sought-after location offers an ideal environment for young families or couples seeking comfort and space. Enjoy the expansive south-facing garden, featuring a large patio perfect for gatherings or quiet evenings outdoors. Inside, the bright and airy living area, functional kitchen with modern finishes, and a delightful conservatory seamlessly connect to your private outdoor oasis.
With off-street parking for multiple vehicles and a block-built outbuilding for additional storage or workshop space, this property caters to practical living needs. Situated in a family-friendly neighborhood, you’ll appreciate the proximity to well-regarded schools and essential amenities. Being chain-free means you can move in swiftly—don’t miss this opportunity to create lasting memories in a welcoming home. Schedule your viewing today!































































