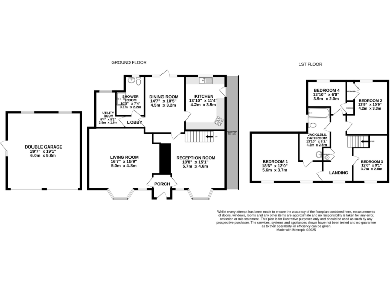
**Standout Features:**
- Built in 1856, charming terraced character home
- Four spacious bedrooms and two modern bathrooms
- Three inviting reception rooms, ideal for family living
- Large landscaped garden, perfect for relaxation and entertaining
- Double garage and driveway accommodating 3-4 cars
- Tranquil rural setting with convenient access to walking trails
**Summary Description:**
Discover the enchanting Hilldrop Cottage, a unique four-bedroom terraced home that blends classic charm with contemporary comfort. Spanning 1,701 sq ft on a generous 0.19-acre plot, this property features three welcoming reception rooms, an airy kitchen, and a convenient ground floor shower room. The standout Jack and Jill bathroom enhances practicality for families. Experience the beauty of the stunning landscaped garden, complete with established plants and serene walkways, making it an ideal space for entertaining or unwinding after a long day.
Nestled in the picturesque village of White Colne, enjoy leisurely walks through scenic countryside and easy access to local pubs and shops. Families will appreciate the nearby primary schools and strong community ties, while the fast broadband and average mobile signals cater to modern needs. Though the home presents some careful maintenance considerations due to its historic nature, it offers ample renovation potential to personalize further. This property epitomizes tranquility and charm—a perfect fit for families seeking a spacious home in a sought-after rural locale. Don’t miss this opportunity to make Hilldrop Cottage your own!
1 bedroom terraced house for sale in Colchester Road, White Colne, Colchester, CO6 — £250,000 • 1 bed • 1 bath • 578 ft²
2 bedroom cottage for sale in Colneford Hill, White Colne, Colchester, CO6 — £240,000 • 2 bed • 1 bath • 599 ft²
4 bedroom semi-detached house for sale in Colchester Road, White Colne, Colchester, Essex, CO6 — £475,000 • 4 bed • 3 bath • 1370 ft²
3 bedroom semi-detached house for sale in Brickhouse Road, Colne Engaine, Colchester, CO6 — £650,000 • 3 bed • 2 bath • 1881 ft²
2 bedroom semi-detached house for sale in Colchester Road, White Colne, CO6 — £325,000 • 2 bed • 1 bath • 919 ft²
2 bedroom character property for sale in Colneford Hill, White Colne, Colchester, CO6 — £220,000 • 2 bed • 1 bath • 528 ft²


















































































































































































































