Newly renovated bungalow with garage, conservatory and generous garden ideal for downsizers..
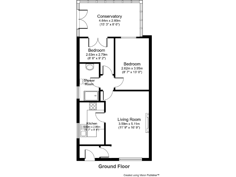
Two double bedrooms with built-in storage
Newly fitted modern kitchen and updated electrics
New boiler installed within last two years
Conservatory overlooking a private rear garden
Detached garage plus driveway for two cars
Modest overall size (circa 569 sq ft)
Recorded high local crime; area classified as deprived
Double glazing fitted; install date not confirmed
A neatly renovated two-bedroom semi-detached bungalow on Penny Hill Drive, presented to move-into standard. The property benefits from a brand new kitchen, recently fitted boiler, updated electrics and new external joinery, giving immediate comfort and lower short-term maintenance costs. A bright living room with a large bay window and a sizeable conservatory provide flexible living space that opens onto a well-kept garden and decked entertaining area.
Set on a decent plot the bungalow includes a private driveway for two cars and a detached garage for storage or parking. Rooms are neutrally decorated and double glazed; the layout suits a couple, small family or someone downsizing who wants single-storey living close to local shops and schools. Freehold tenure and no flood risk add practical reassurance.
Buyers should note wider-location factors: this part of Clayton sits in a deprived area profile and local crime levels are recorded as high. While the house is newly renovated internally, the glazing install date is unknown and the overall property footprint is modest at around 569 sq ft. Early viewing is advised to assess space and local amenities in person.
2 bedroom semi-detached bungalow for sale in Penny Hill Drive, Clayton BD14 — £199,500 • 2 bed • 1 bath • 516 ft²
2 bedroom semi-detached bungalow for sale in Ryefield Avenue, Clayton, BD14 — £225,000 • 2 bed • 1 bath • 897 ft²
2 bedroom semi-detached bungalow for sale in Oakleigh Avenue, Clayton, Bradford, BD14 — £230,000 • 2 bed • 1 bath • 645 ft²
3 bedroom semi-detached house for sale in Ryefield Avenue, Clayton, Bradford, BD14 — £250,000 • 3 bed • 2 bath • 682 ft²
2 bedroom detached house for sale in Brook Lane, Clayton, Bradford, BD14 — £325,000 • 2 bed • 1 bath • 892 ft²
2 bedroom semi-detached bungalow for sale in Ryefield Avenue, Clayton, BD14 — £220,000 • 2 bed • 1 bath • 514 ft²






















































































