Catchment for outstanding and good schools, near station and park.
Three well-proportioned bedrooms suitable for family use
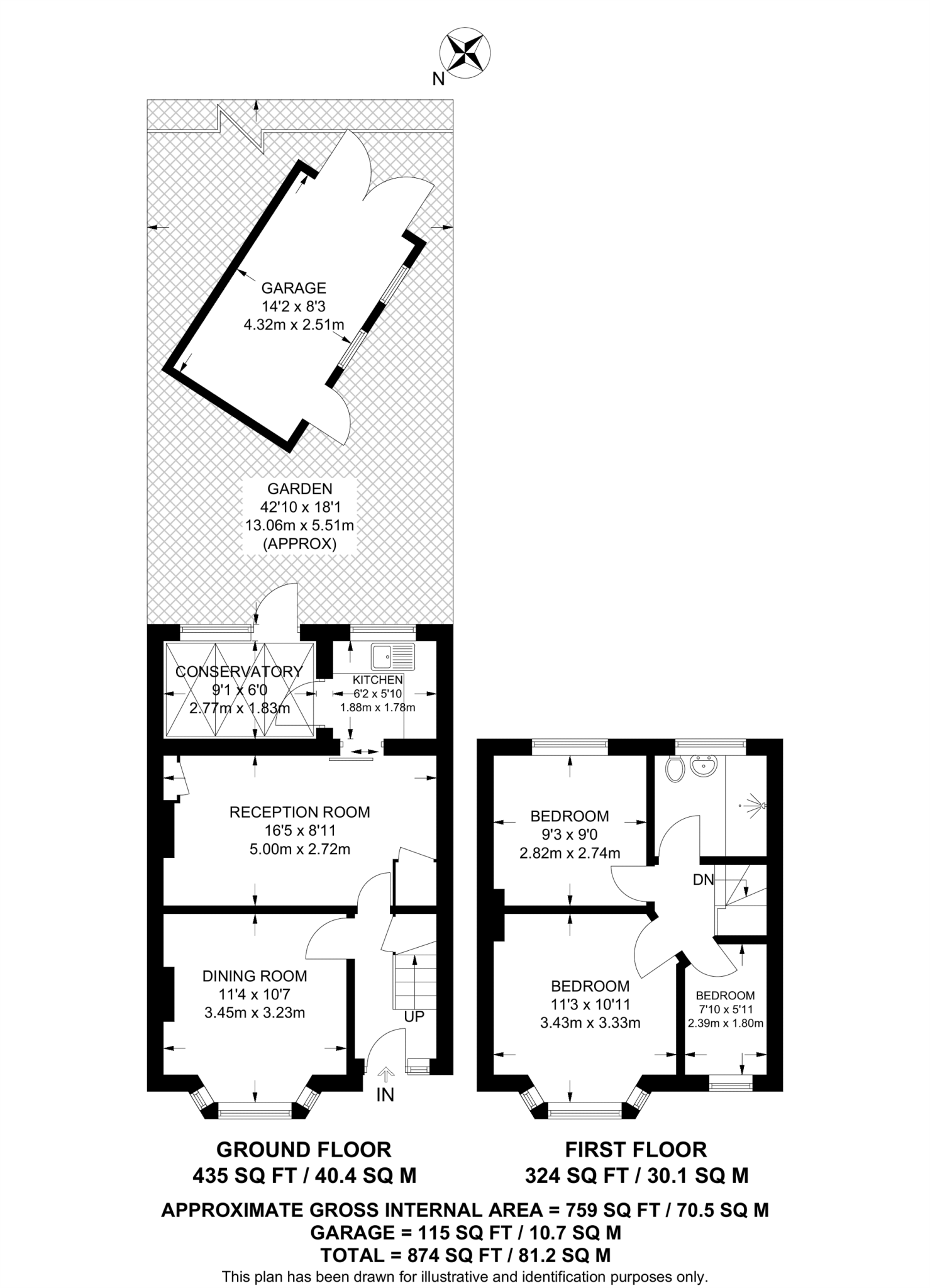
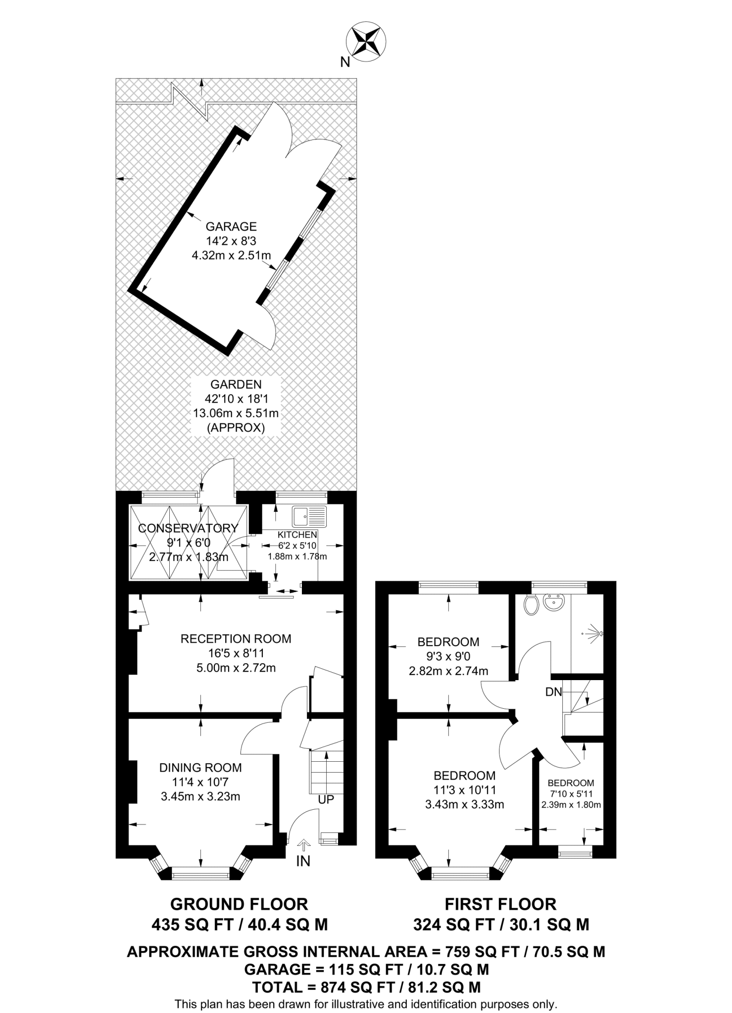
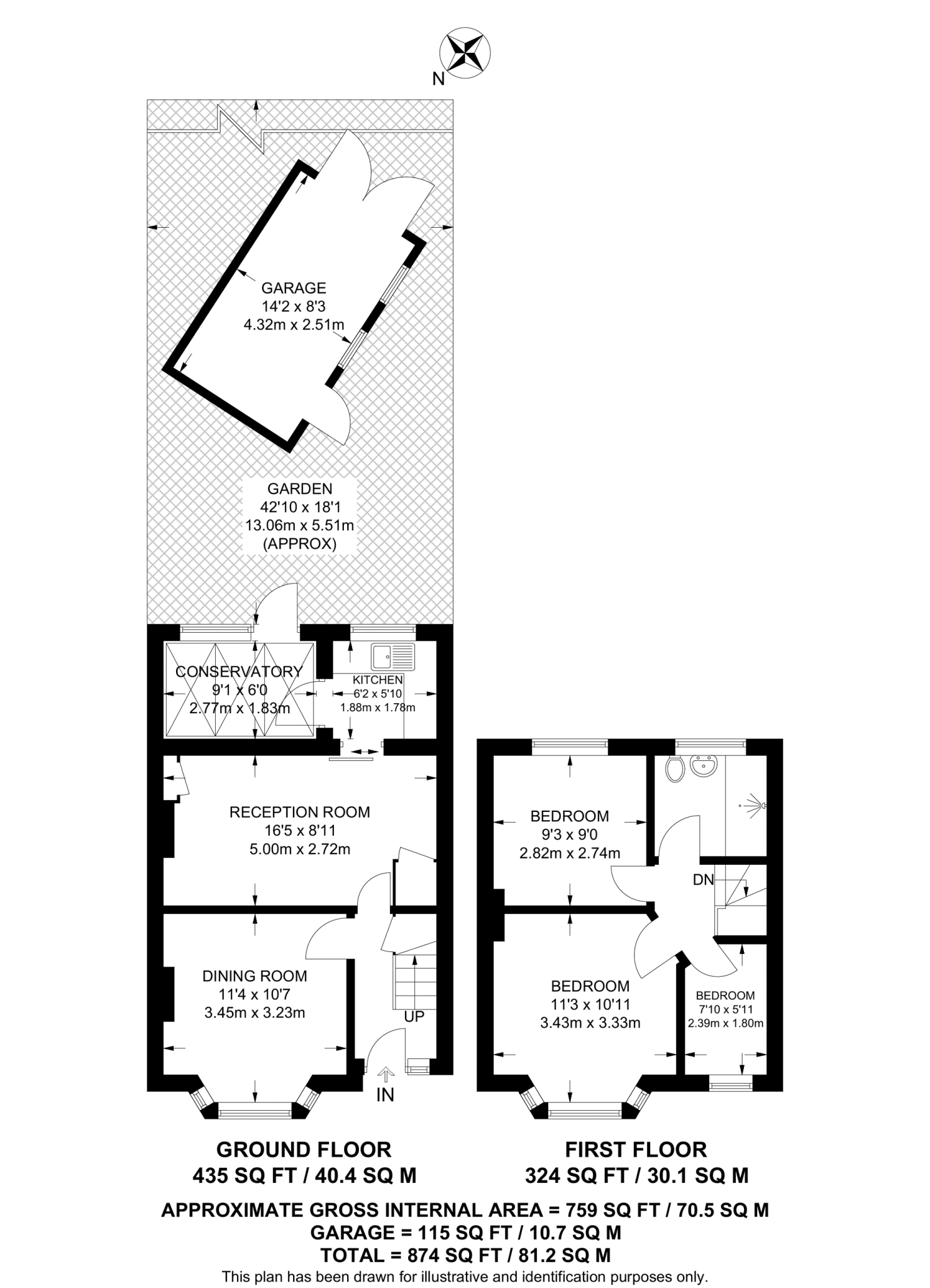
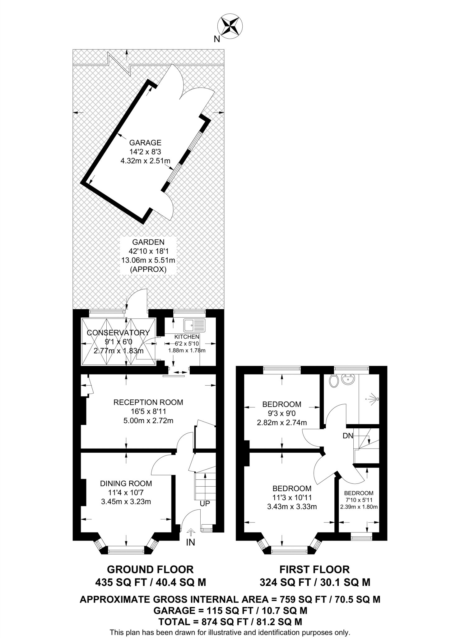
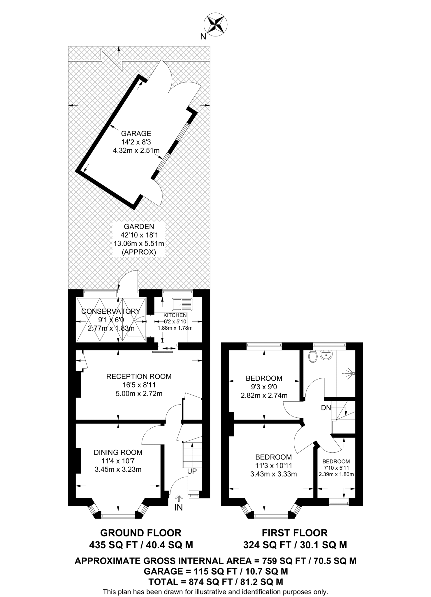
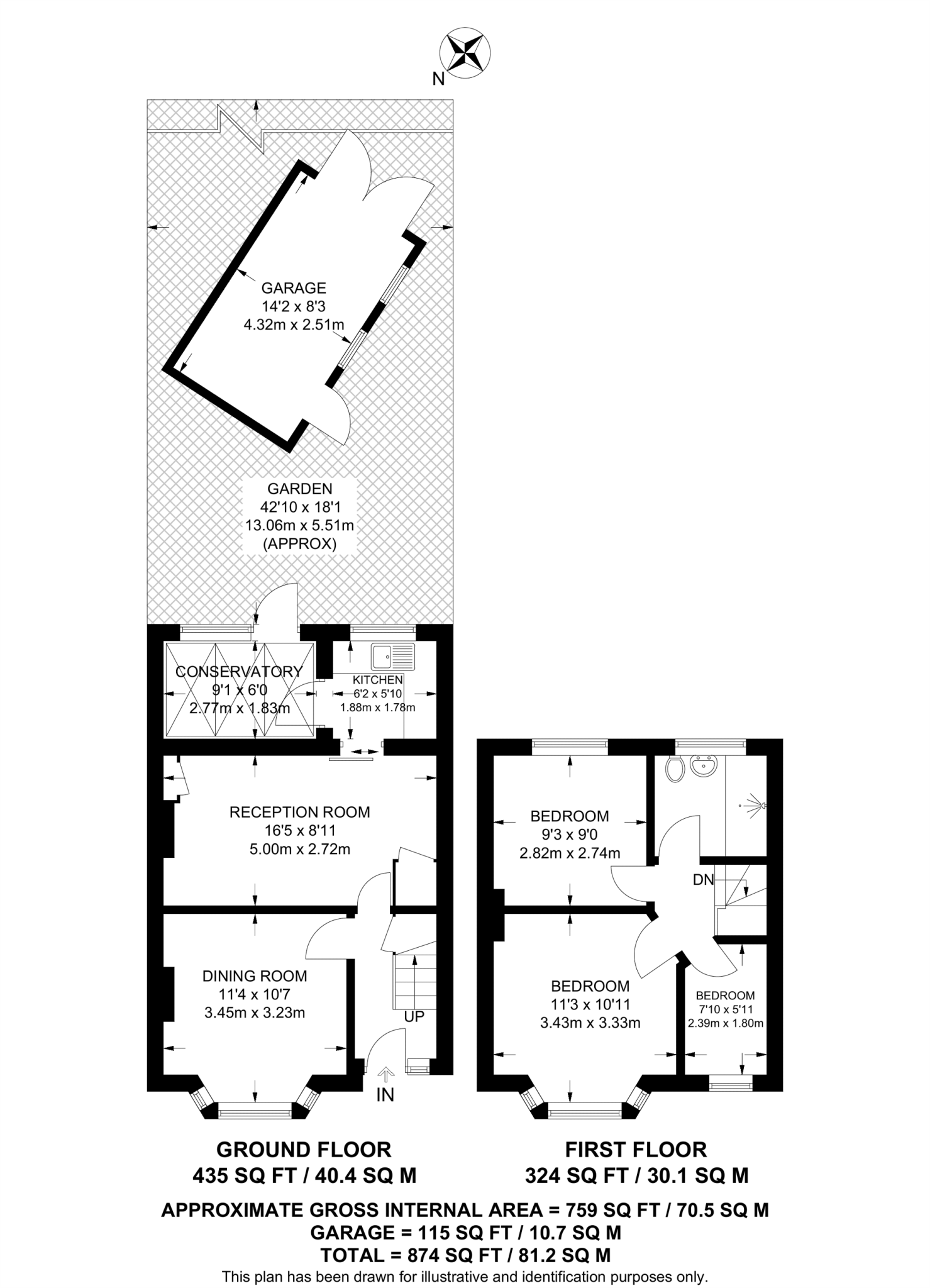
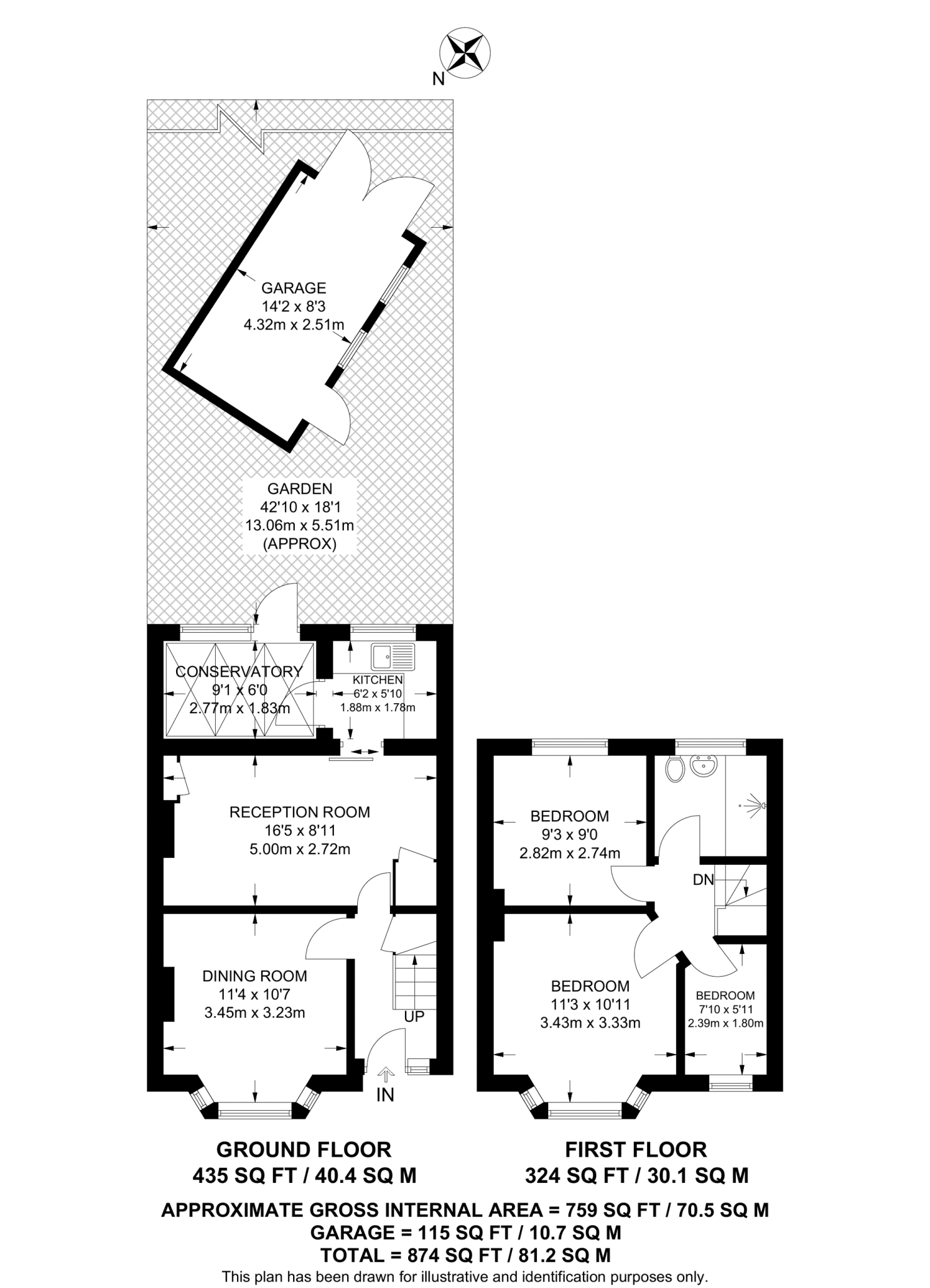
Located in a prime Twickenham pocket, this three-bedroom semi-detached home sits within the sought-after Waldegrave and Trafalgar school catchments. The property offers two reception rooms, a separate fitted kitchen leading to a conservatory space, and a private rear garden with a garage — practical features for family life and everyday storage.
The house dates from the 1930s–1940s and is presented with period bones but requires modernization throughout; the kitchen, bathroom and some interiors are dated and would benefit from updating. There is potential to extend subject to planning permission (STPP), offering scope to create additional living space or reconfigure the layout to better suit growing families.
The plot is modest in size but private, and the property benefits from fast broadband, excellent mobile signal, low local crime and convenient transport links including nearby Fulwell station and local shops. Buyers should note the home has solid brick walls with assumed no insulation, an unknown-age double glazing installation, a single bathroom and average overall size — factors to consider when budgeting improvements.
3 bedroom terraced house for sale in Fulwell Park Avenue, Middlesex, TW2 — £750,000 • 3 bed • 1 bath • 915 ft²
3 bedroom semi-detached house for sale in Alton Gardens, Twickenham, TW2 — £670,000 • 3 bed • 1 bath • 952 ft²
3 bedroom terraced house for sale in Fulwell Park Avenue, Twickenham, TW2 — £650,000 • 3 bed • 1 bath • 1171 ft²
3 bedroom terraced house for sale in Dorset Way, Twickenham, TW2 — £750,000 • 3 bed • 1 bath • 820 ft²
3 bedroom end of terrace house for sale in Fulwell Park Avenue, Twickenham, TW2 — £575,000 • 3 bed • 1 bath • 672 ft²
3 bedroom semi-detached house for sale in Waverley Avenue, Whitton, Twickenham, TW2 — £699,950 • 3 bed • 1 bath • 1115 ft²






















































































































































































































































































































































