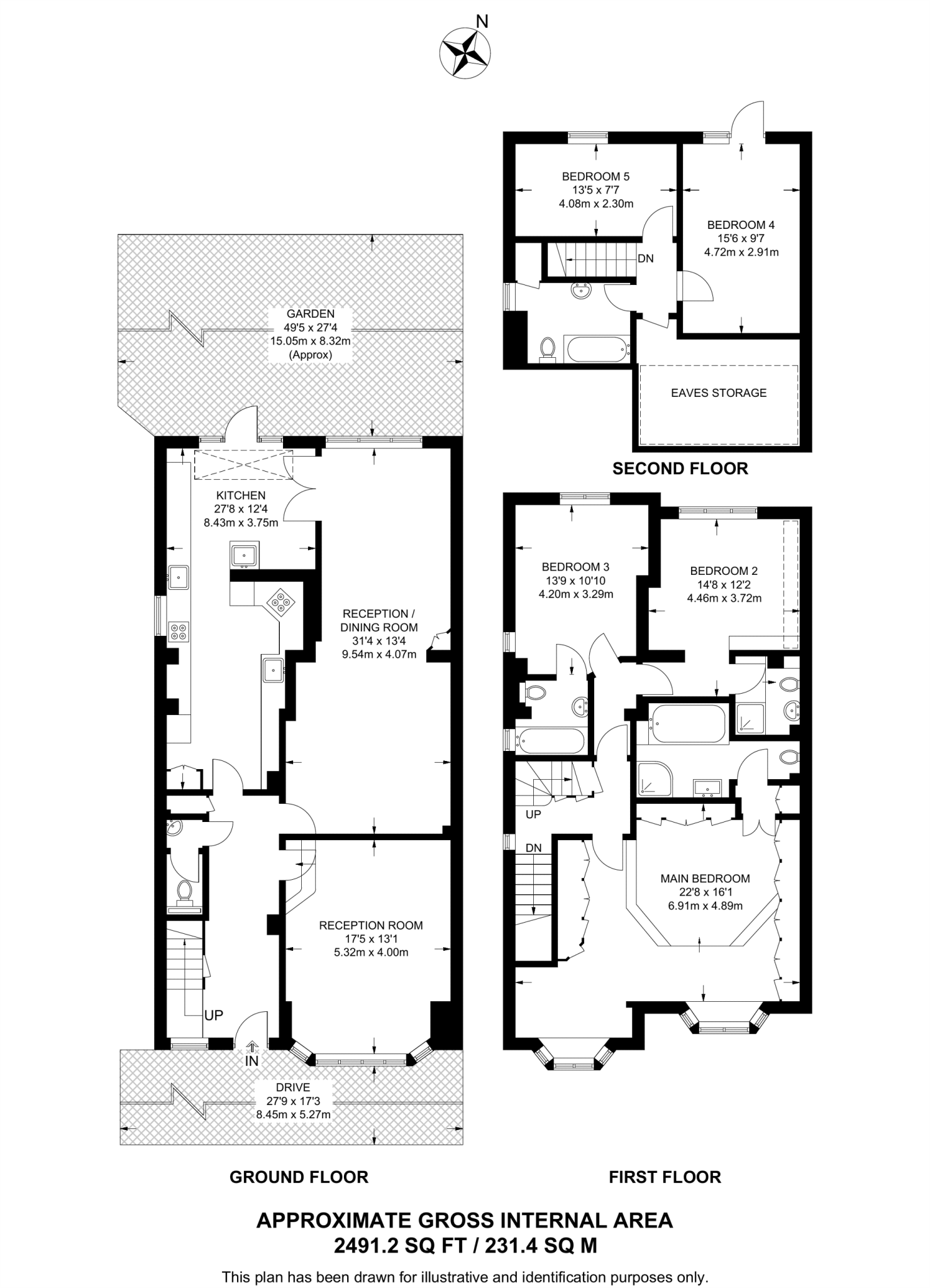
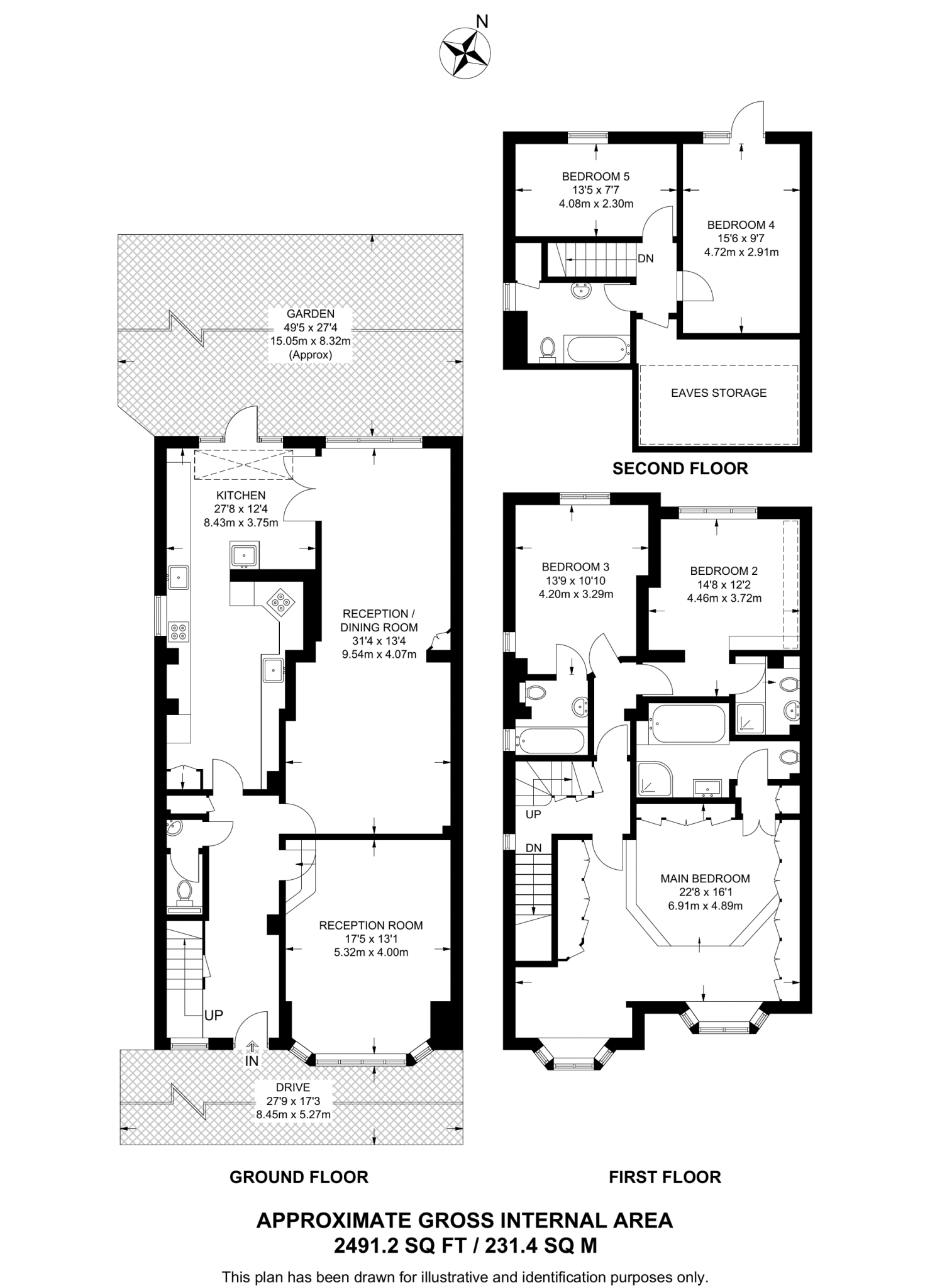
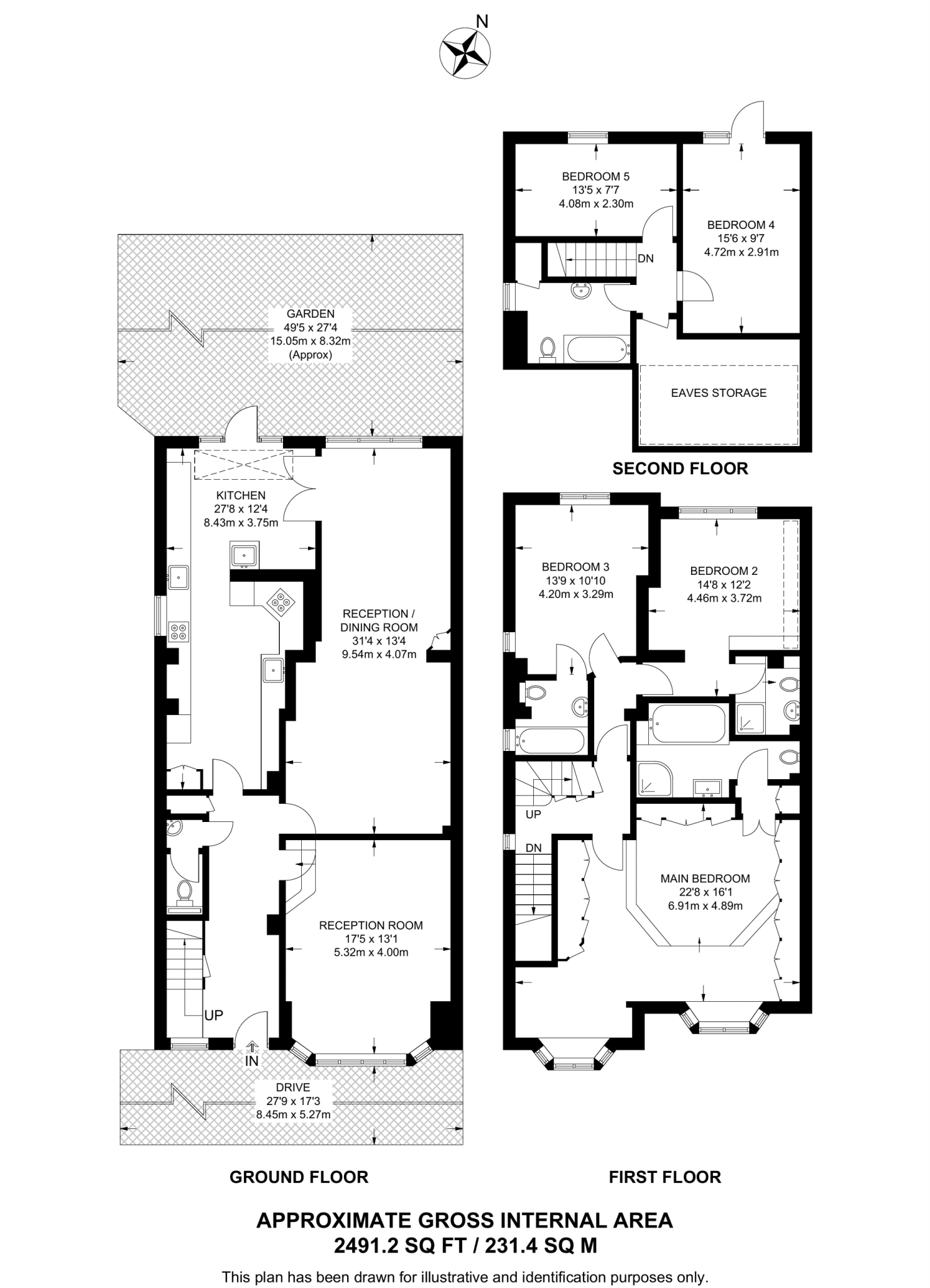
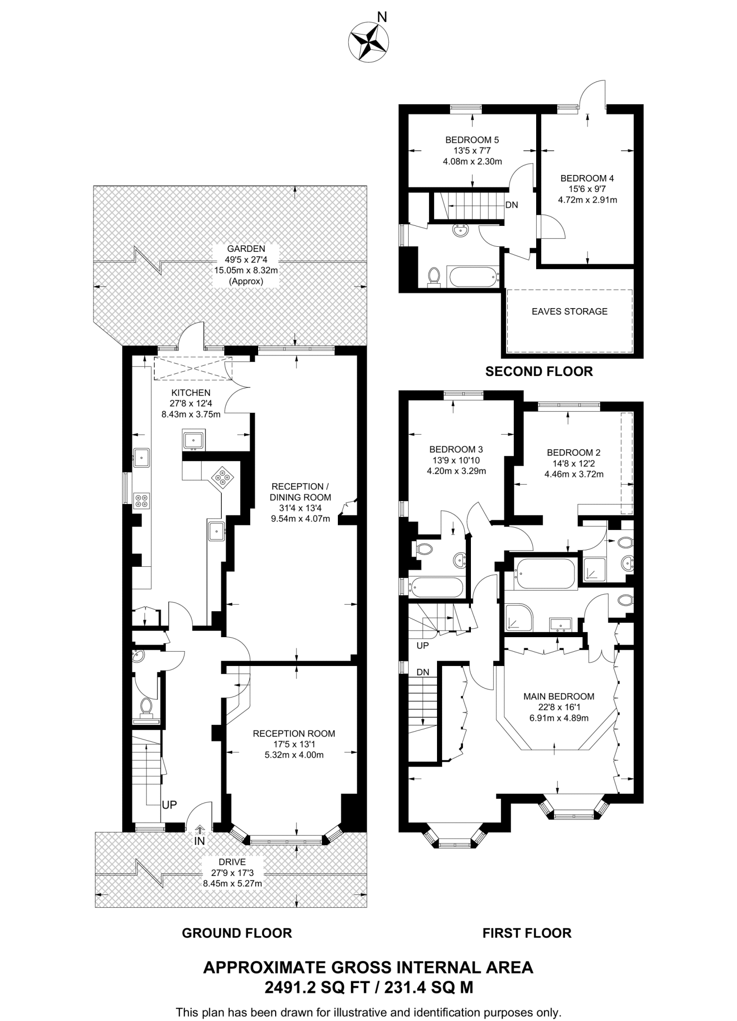
Large five-bedroom home near Brent Street amenities and green spaces.
- Large high-spec kitchen with dining space
- Double reception and additional front reception room
- Five well-proportioned bedrooms; main with en suite
- Off-street parking for one vehicle only
- Security shutters to the rear
- Dated decor in parts; requires modernization
- Solid brick walls likely lack insulation; upgrade advised
- Freehold, 2,491 sq ft family home in affluent area
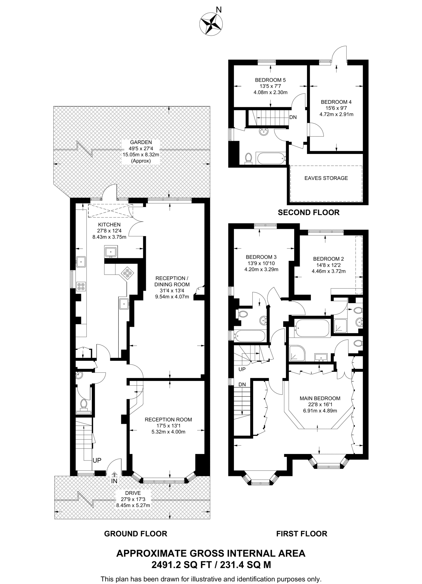
Set on an affluent Hendon street, this spacious five-bedroom semi-detached home spans three floors and offers 2,491 sq ft of family living. The house centres on a large, high-spec kitchen with dining space, a double reception room and an additional front reception — all arranged for flexible family use and entertaining.
The main bedroom includes generous built-in storage and an en suite; four further well-proportioned bedrooms provide room for children, guests or a home office. Practical features include double glazing (installed post-2002), security shutters to the rear and off-street parking for one vehicle.
The property does show some dated decor and will benefit from modernization to realise its full potential. The original solid brick walls are likely uninsulated, so buyers should budget for insulation and energy-efficiency improvements. Overall this freehold home offers strong family appeal close to Brent Street shops, cafes, Hendon Park and a range of local schools.
For families seeking generous space in a well-connected, inner-city cosmopolitan setting, this house delivers scope to personalise and add value while enjoying nearby amenities and transport links.
5 bedroom detached house for sale in Queens Way, London, NW4 — £2,000,000 • 5 bed • 4 bath • 2784 ft²
4 bedroom house for sale in Florence Street, Hendon, London, NW4 — £750,000 • 4 bed • 3 bath • 1310 ft²
4 bedroom semi-detached house for sale in London, NW4 — £1,250,000 • 4 bed • 3 bath • 1943 ft²
5 bedroom house for sale in Rundell Crescent, Hendon NW4 — £1,250,000 • 5 bed • 2 bath • 2077 ft²
5 bedroom detached house for sale in Meadow Drive, London, NW4 — £1,000,000 • 5 bed • 5 bath • 2100 ft²
6 bedroom semi-detached house for sale in Cheyne Walk, Hendon, NW4 — £1,250,000 • 6 bed • 5 bath • 2203 ft²






























































































































































































































































































