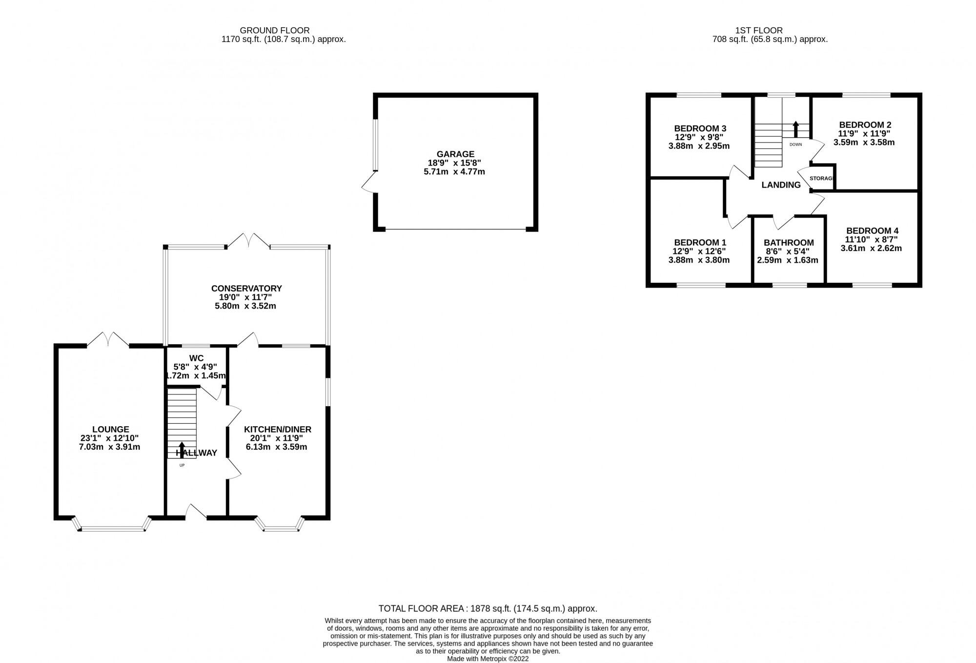
**Standout Features:**
- Four spacious double bedrooms and a modern shower room
- Generous living space with a bright kitchen/diner and conservatory
- Detached property with a large plot and off-street parking
- Double garage with electric door
- Convenient location near shops, schools, and transport links
- Very low crime rate in an affluent area
- Offers renovation potential to suit personal tastes
**Concise Summary:**
Discover the perfect family retreat in this beautifully presented four-bedroom detached house located in the desirable Shore Green area of Thornton. This home offers an impressive 1,878 sq ft of living space, featuring a stylish modern kitchen with integrated appliances, a spacious lounge with a cozy gas fire, and a delightful conservatory that opens to the private east-facing garden—ideal for outdoor gatherings.
With four good-sized double bedrooms and a modern shower room, this property caters to family living while offering ample storage and off-street parking for multiple vehicles. The large plot, which includes a detached double garage, provides renovation potential, allowing you to personalize it to your needs. Enjoy being surrounded by good schools and local amenities, all within a highly regarded, low-crime suburban neighborhood. This property won't last—seize the opportunity to create your dream family home today!
4 bedroom detached house for sale in Stoneyhurst Avenue, Thornton-cleveleys, FY5 — £345,000 • 4 bed • 2 bath • 1468 ft²
4 bedroom detached house for sale in Sandiways Close, Thornton, FY5 — £350,000 • 4 bed • 2 bath • 2291 ft²
4 bedroom detached house for sale in Balfour Close, THORNTON-CLEVELEYS, Lancashire, FY5 — £415,000 • 4 bed • 3 bath • 1916 ft²
4 bedroom detached house for sale in Tallington Close, Thornton-Cleveleys, FY5 — £319,950 • 4 bed • 2 bath • 534 ft²
5 bedroom detached house for sale in Southdown Close, Thornton, FY5 — £460,000 • 5 bed • 3 bath • 2810 ft²
4 bedroom detached house for sale in Denbigh Avenue - Thornton Cleveleys - FY5 3PU, FY5 — £295,000 • 4 bed • 1 bath • 1707 ft²










































































































