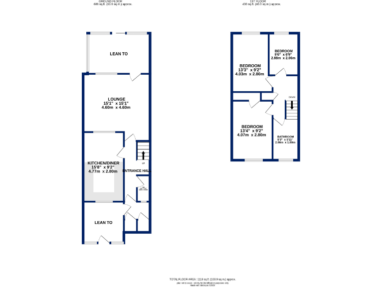
Chain free freehold three-bed terrace with guest WC
Chain-free three-bedroom terrace offering solid potential in sought-after Adel. The house is a traditional layout with a ground-floor kitchen-diner, guest WC, living room and enclosed rear garden — plus convenient off-street parking. The property is freehold, has mains gas central heating, double glazing overall and low council tax, making it economical to run.
This is a renovation project: the kitchen dates from the 1980s and shows signs of age (single-glazed kitchen window, vinyl flooring, older fittings), and the conservatory and general interior require updating to modern standards. The build dates from the late 1960s–1970s and the plot is small; buyers should expect cosmetic and functional improvements rather than an extension opportunity.
Location is a strong selling point for families: a short walk to Adel Primary School and several well-regarded schools nearby, easy access to local shops, green spaces and good transport links into Leeds and beyond. Crime levels in the area are very low and the neighbourhood is described as very affluent with excellent mobile and fast broadband speeds.
Suitable for first-time buyers seeking a chain-free purchase they can personalise, or investors targeting refurbishment for rental. Be realistic about refurbishment costs and the small plot when assessing value.
3 bedroom semi-detached house for sale in Adel Wood Road, Adel, Leeds, West Yorkshire, UK, LS16 — £205,000 • 3 bed • 1 bath • 922 ft²
3 bedroom terraced house for sale in Holtdale Garth, Adel, LS16 — £160,000 • 3 bed • 2 bath • 934 ft²
3 bedroom detached house for sale in Church Lane, Adel, Leeds, West Yorkshire, LS16 — £525,000 • 3 bed • 2 bath • 1594 ft²
3 bedroom semi-detached house for sale in Gainsborough Drive, Adel, Leeds, LS16 — £400,000 • 3 bed • 1 bath • 1098 ft²
4 bedroom detached house for sale in Adel Towers Court, Adel, LS16 — £600,000 • 4 bed • 2 bath • 1464 ft²
3 bedroom detached house for sale in St. Helens Way, Leeds, West Yorkshire, LS16 — £425,000 • 3 bed • 2 bath • 1243 ft²














































