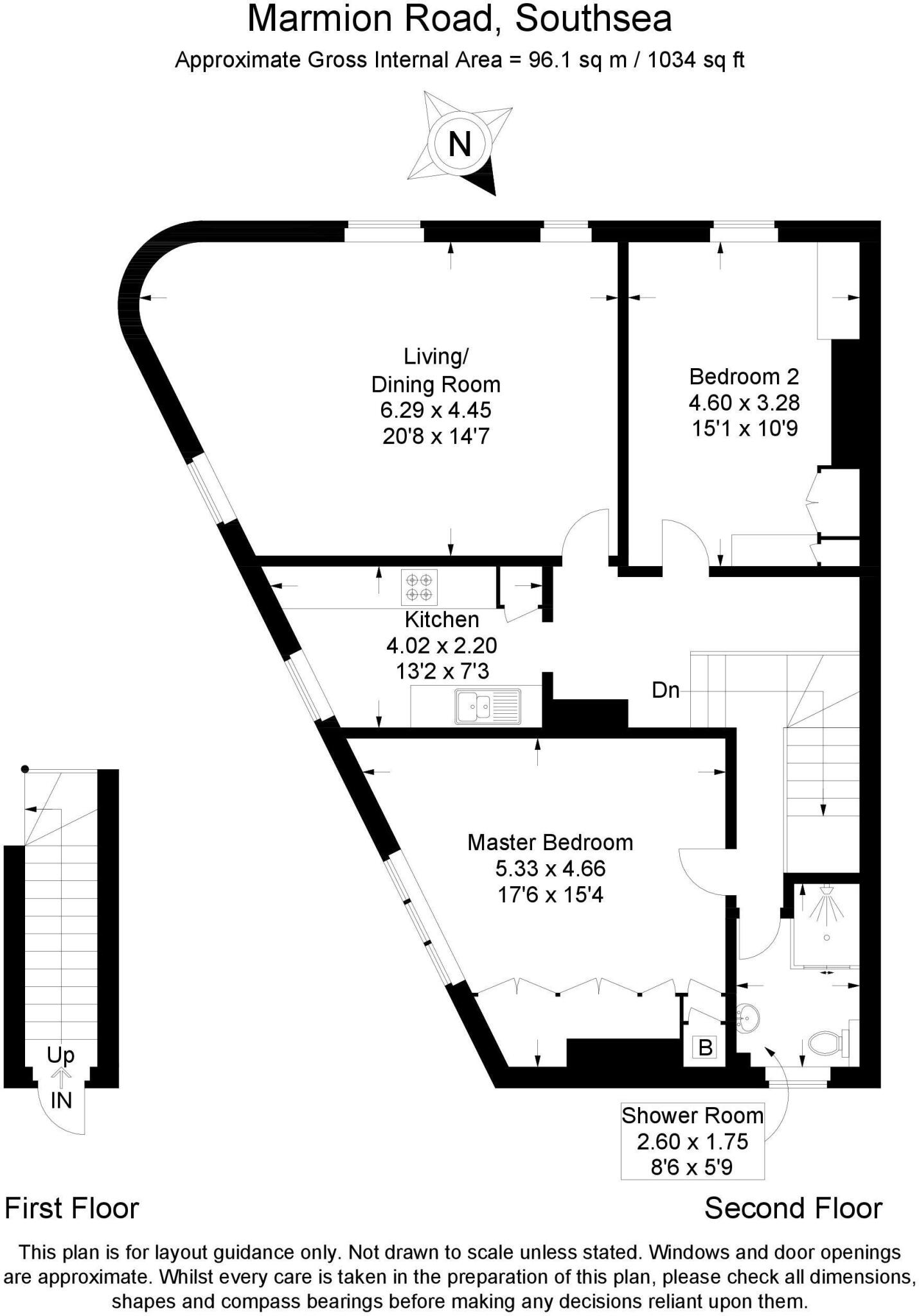
Generous two-bedroom duplex in a characterful Victorian corner building, sold with no chain..
Large duplex apartment — approx. 1,034 sq ft (96.1 m²)
Two double bedrooms with built-in storage
Modern kitchen with integrated appliances
Communal courtyard and dual-aspect living room
Share of freehold; sold with no forward chain
Gas central heating and double glazing throughout
Cavity walls assumed uninsulated — potential energy upgrades needed
Located in very high crime area — consider security and insurance
Bright, spacious and characterful, this duplex apartment occupies the second floor of a Victorian corner building on Marmion Road. At about 1,034 sq ft it offers unusually generous rooms for a two-bedroom flat: dual-aspect living space, high ceilings and large sash windows flood the rooms with natural light. The modern kitchen and bathroom mean you can move in straight away, while built-in storage helps keep spaces uncluttered.
Practical features include gas central heating, double glazing and a share of freehold. A communal courtyard provides private outdoor space in an otherwise urban setting, and the location places shops, cafés and restaurants within comfortable walking distance. The property is sold with no forward chain, which may speed completion for a first-time buyer.
Important truths: the building dates from the 1930s–40s and has cavity walls assumed to have no added insulation, so heating bills and thermal comfort could be improved with further works. The wider area records very high crime levels, which some buyers will want to factor into security and insurance planning. The duplex layout means internal stairs between levels — useful for character but less suitable for mobility limitations.
Overall this apartment suits a first-time buyer or city-dweller seeking generous living space, period character and a low-maintenance start. It’s ready to occupy while offering straightforward scope for energy efficiency upgrades and cosmetic personalisation.
2 bedroom duplex for sale in Marmion Road, Southsea, PO5 — £249,950 • 2 bed • 1 bath • 1100 ft²
2 bedroom apartment for sale in Wilton Place, Southsea, Hampshire, PO5 — £169,995 • 2 bed • 1 bath • 636 ft²
2 bedroom flat for sale in Marmion Road, Southsea, Portsmouth, PO5 — £200,000 • 2 bed • 1 bath • 647 ft²
2 bedroom flat for sale in Elphinstone Road, Southsea, PO5 — £200,000 • 2 bed • 1 bath • 636 ft²
2 bedroom flat for sale in Lennox Road North, Southsea, PO5 — £230,000 • 2 bed • 1 bath • 818 ft²
2 bedroom flat for sale in Ashburton Road, Southsea, PO5 — £229,950 • 2 bed • 2 bath • 919 ft²






































































































