**Standout Features:**
- **Price:** £575,000 - £600,000
- **Bedrooms:** 3
- **Bathrooms:** 1
- **Parking:** Driveway for 3 cars + garage with power
- **Garden:** Large 80' rear garden with potential for development (STPP)
- **Proximity:** 0.8 miles from Romford Station
- **Condition:** Well-maintained, modern kitchen
- **Potential:** Planning permission for extension available (STPP)
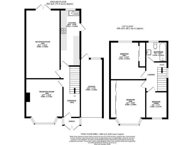
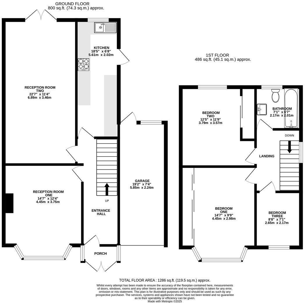
This charming Tudor Revival semi-detached home offers a comfortable and spacious living environment, making it an excellent choice for families and first-time buyers. Boasting approximately 1,286 square feet, the property features three well-sized bedrooms, a bright reception room complemented by a generous dining area, and a contemporary, fully-equipped kitchen ideal for everyday cooking. The expansive 80-foot rear garden provides endless possibilities for outdoor enjoyment or future extensions, subject to planning approval.
Nestled in an affluent neighborhood with very low crime rates, this home is just a short stroll from Romford Station, offering convenient access to local amenities and exceptional schools, including several rated 'Good' or 'Outstanding' by Ofsted. While the property maintains a solid brick structure with no insulation (assumed), it presents an inviting atmosphere and significant room for personalization or enhancement. Don’t miss out on securing this family-friendly haven in a desirable area—ideal for those looking to blend classic charm with modern convenience!
3 bedroom semi-detached house for sale in Globe Road, Hornchurch, RM11 — £450,000 • 3 bed • 1 bath • 788 ft²
3 bedroom semi-detached house for sale in Medora Road, Romford, RM7 — £440,000 • 3 bed • 1 bath • 996 ft²
3 bedroom terraced house for sale in Laurel Crescent, Romford, RM7 — £525,000 • 3 bed • 1 bath • 1219 ft²
3 bedroom semi-detached house for sale in Rainsford Way, Hornchurch, RM12 — £425,000 • 3 bed • 1 bath • 860 ft²
3 bedroom semi-detached house for sale in Havering Road, Romford, RM1 — £450,000 • 3 bed • 1 bath • 936 ft²
3 bedroom end of terrace house for sale in Havering Road, Romford, RM1 — £450,000 • 3 bed • 1 bath • 864 ft²


































































