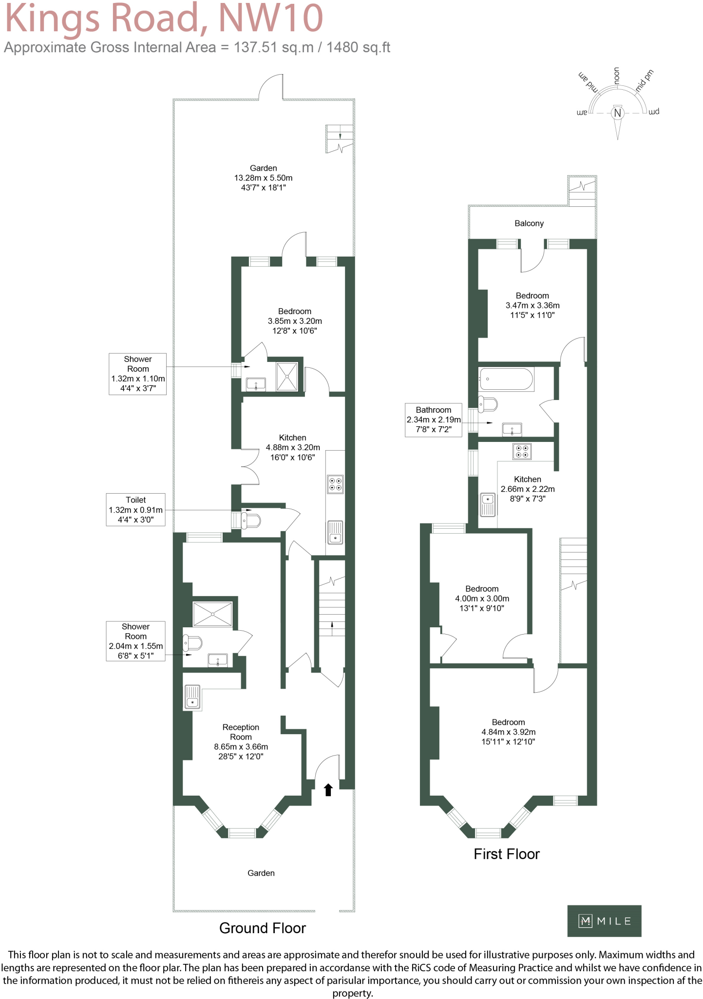
**Standout Features:**
- Charming period terraced house with classic Victorian architecture.
- Three bedrooms that are currently configured as self-contained units.
- Potential for extension (subject to planning permission).
- Spacious interior of approximately 1,480 sq ft.
- Chain free and sold as a freehold.
- Private garden, perfect for outdoor relaxation.
- Located on a quiet, tree-lined residential road.
**Concerns:**
- Requires renovation to achieve its full potential.
- High crime rate in the local area.
Welcome to your future dream home on Kings Road, a charming Victorian terraced house ready for transformation! Nestled in a tranquil, tree-lined residential street, this property spans approximately 1,480 sq ft and currently comprises three self-contained flats, presenting a unique opportunity to convert back into a spacious family home. With potential extensions available—whether through attic development or a rear addition—this home offers endless possibilities to make it your own.
Despite needing renovation, the generous dimensions and beautiful period features assure a character-filled environment with room for modern upgrades. The private garden adds an appealing outdoor space for relaxation or entertaining. Located conveniently close to vibrant shops and transport links, this home is perfect for families, investors, or first-time buyers looking to carve out their own unique space. Don't miss out on the potential this property holds—envision your future here and act fast!
3 bedroom house for sale in Kingsley Road, Queens Park, NW6 — £1,250,000 • 3 bed • 1 bath • 1201 ft²
3 bedroom terraced house for sale in College Road, London, NW10 — £800,000 • 3 bed • 1 bath • 1072 ft²
3 bedroom terraced house for sale in Holberton Gardens, London, NW10 — £950,000 • 3 bed • 2 bath • 1121 ft²
3 bedroom house for sale in High Street, Harlesden, London, NW10 — £740,000 • 3 bed • 1 bath • 1398 ft²
3 bedroom terraced house for sale in Minet Gardens, London, NW10 — £650,000 • 3 bed • 1 bath • 1344 ft²
3 bedroom terraced house for sale in Carlisle Road, London, NW6 — £1,799,950 • 3 bed • 1 bath • 1328 ft²


















































